賃貸や不動産はアットホーム-賃貸マンション・賃貸物件・不動産なら アットホーム

愛知県名古屋市中区栄3丁目(矢場町駅)の貸店舗:物件詳細

  • 物件詳細
  • 情報の見方
  • 印刷用画面
交通
所在地
駅徒歩 賃料
管理費等
敷金/保証金
礼金
使用部分面積
坪数/坪単価
物件種目
築年月

名古屋市名城線/矢場町

愛知県名古屋市中区栄3丁目

2分

154万円

なし / 6ヶ月

なし

185.12m²

55.99坪/2.7501万円

貸店舗・事務所

1999年12月(築26年1ヶ月)

おすすめコメント

名古屋パルコ南側道路に位置する、1・2階建て1棟貸しの路面テナントです。人通り多く視認性がとても良く、地下鉄矢場町駅からも徒歩2分の好立地。ガラス張りでオシャレな外観が目を引きます。飲食店も可能です。

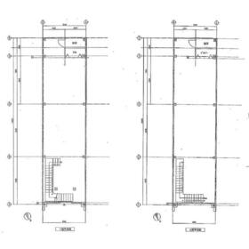
間取図

間取図

<
その他の画像
>
    • お問い合わせ
    交通

    名古屋市名城線 矢場町駅 徒歩2分

    その他の交通

    名古屋市名城線 栄駅 徒歩12分

    名古屋市名城線 上前津駅 徒歩10分

    所在地 愛知県名古屋市中区栄3丁目
    物件種目 貸店舗・事務所
    賃料 154万円 管理費等
    敷金 / 保証金 なし / 6ヶ月 礼金 なし
    敷引 坪単価 2.7501万円
    保証金償却 解約時100% 2年以内100% 5年以内50% 10年以内20% 10年以上なし 権利金
    造作譲渡 その他一時金
    維持費等 保険等
    使用部分面積 185.12m² 坪数 55.99坪
    築年月 1999年12月(築26年1ヶ月) 階建 / 階 2階建 / 1階~2階部分
    駐車場 バイク置き場
    駐輪場 土地面積
    接道状況 用途地域
    間取り 建物構造 鉄骨造
    アピールポイント 名古屋パルコ南側道路に面した、1・2階建ての貴重な一棟貸し路面テナントです。
    周辺は常に人通りが多く、歩行者からの視認性も非常に高いため、業種を問わず集客が期待できます。
    地下鉄矢場町駅から徒歩2分とアクセスも良好で、駅利用のお客様にも来店しやすい立地です。
    建物はガラス張りのスタイリッシュな外観が特徴で、店舗の世界観やブランドイメージを外からも魅力的に演出できます。
    飲食店にも対応しているため、カフェやレストランなど幅広い業態にご検討いただけます。
    建物名・部屋番号 プラザナカソ 1・2階
    リフォーム履歴
    リノベーション履歴
    特記事項
    備考
    管理形態/管理員の勤務形態:-/-
    エネルギー消費性能
    断熱性能
    目安光熱費
    バス・トイレ
    キッチン
    設備・サービス
    その他
    契約期間 2年 条件等
    引渡可能時期 相談 現況
    更新料 物件番号 6988507721
    情報公開日 2025年11月25日 次回更新予定日 2025年12月24日
    ケータイ用バーコード

    QRコード

    スマートフォンでこの物件を見る
    スマートフォンからもこの物件をご覧になれます。
    ※「-」と表示されている項目については、情報提供会社にご確認ください。

    この物件の周辺情報

    周辺施設 名古屋パルコ南館
    距離 52m
    周辺施設 ファミリーマート矢場町店
    距離 114m
    周辺施設 ローソン栄5丁目店
    距離 282m
    周辺施設 スターバックスコーヒー名古屋久屋南店
    距離 140m
    周辺施設 名古屋南大津町郵便局
    距離 186m
    周辺施設 あいち銀行名古屋営業部
    距離 213m
    周辺施設 若宮大通公園
    距離 287m
    周辺施設 名古屋市中区役所
    距離 889m

    クイックお問い合わせ

    ここから簡単にお問い合わせをすることができます。
    (SSLでの暗号化での送信を希望されるお客さまは こちら よりお問い合わせください)

    お問い合わせ内容(必須)
    物件のお問い合わせ理由(必須)
    お名前・ご担当者様名(必須) 姓  名 
    メールアドレス(必須)
    ※携帯電話のメールアドレスをご入力される方はこちらをご確認ください
    電話番号(必須)
    - -
    備考欄 希望条件、物件案内希望日、質問などがございましたらご記入ください。
    お問い合わせを行う前に「個人情報の取り扱いについて」を必ずお読みください。
    「個人情報の取り扱いについて」に同意いただいた場合は「上記にご同意の上 確認画面へ進む」のボタンをクリックしてください。

    個人情報の取り扱いについて

    皆さまが送付された個人情報はアットホーム(株)のサーバを経由し、お問い合わせ先の不動産会社にメールまたはFAXにて転送されるためアットホーム(株)にも保管されます。アットホーム(株)で保管された個人情報の取り扱いについては、【こちら】をご覧ください。
    また、本画面でご記入いただいた個人情報は、お問い合わせ先の不動産会社でも保管します。 お問い合わせ先の不動産会社が保管する個人情報の取り扱いについては、不動産会社に直接お問い合わせください。

    情報提供会社

    情報提供会社

    (株)オフィスワーク

    愛知県知事免許(6)第18219号

    交通:
    名古屋市名城線/久屋大通駅 徒歩3分
    愛知県名古屋市東区泉1丁目17-3 Orange Town3F
    TEL:
    052-953-6200
    FAX:
    052-953-4500
    所属団体:
    (公社)全日本不動産協会会員
    東海不動産公正取引協議会加盟

    取引態様:仲介

    • 会社情報
    • 40004046
    スマートフォンで
    この不動産会社を見る
    QRコード
    • お問い合わせ
    • 提携サイト等より掲載されている物件情報につきましては、不動産会社詳細情報にリンクされていないものがあります。
    • 物件に関するお問合せは、物件詳細ページの「情報提供会社」に表示されている不動産会社へ直接お願いいたします。
    • 間取図は、現況を優先させていただきます。
    • 映像は物件の一部を撮影したものです。物件の契約にあたっての最終判断はご自身の判断に基づいて行ってください。
    • 仲介手数料について仲介手数料

    アットホームは物件情報の適正化に努めております。 内容に誤りがある場合にはこちらへご連絡ください。


    物件画像: