賃貸や不動産はアットホーム-賃貸マンション・賃貸物件・不動産なら アットホーム

京都府京都市上京区東竪町(北野白梅町駅)の貸店舗:物件詳細

  • 物件詳細
  • 情報の見方
  • 印刷用画面
交通
所在地
駅徒歩 賃料
管理費等
敷金/保証金
礼金
使用部分面積
坪数/坪単価
物件種目
築年月

京福電鉄北野線/北野白梅町

京都府京都市上京区東竪町

8分

33万円

なし

なし / 3ヶ月

1ヶ月

160.00m²

48.39坪/0.6819万円

貸店舗・事務所(一括)

1945年1月(築81年)

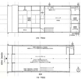
間取図

間取図

外観

外観

その他の画像
  • 外観
  • 室内
  • 室内
  • 室内
  • バス/シャワー
    • お問い合わせ
    交通

    京福電鉄北野線 北野白梅町駅 徒歩8分

    その他の交通

    JR山陰本線 円町駅 徒歩18分

    京福電鉄北野線 等持院・立命館大学衣笠キャンパス前駅 徒歩16分

    所在地 京都府京都市上京区東竪町
    物件種目 貸店舗・事務所(一括)
    賃料 33万円 管理費等 なし
    敷金 / 保証金 なし / 3ヶ月 礼金 1ヶ月
    敷引 坪単価 0.6819万円
    保証金償却 解約時2ヶ月 権利金
    造作譲渡 造作譲渡無償 その他一時金 なし
    維持費等 保険等
    使用部分面積 160.00m² 坪数 48.39坪
    築年月 1945年1月(築81年) 階建 / 階 2階建
    駐車場 バイク置き場
    駐輪場 土地面積
    接道状況 用途地域
    間取り 建物構造 木造
    建物名・部屋番号  
    リフォーム履歴
    リノベーション履歴
    特記事項 居抜き、24時間利用可、土曜日利用可、飲食店可、フリーレント
    備考
    賃貸保証等:加入要(エルズサポート株式会社 初回保証料:賃料等総額50% 次年度より年額10,000円)
    管理形態/管理員の勤務形態:-/-
    フリーレント:1ヶ月(但し1年未満の解約は賃料1か月分)
    エネルギー消費性能
    断熱性能
    目安光熱費
    バス・トイレ
    キッチン
    設備・サービス 給湯、都市ガス
    その他
    契約期間 3年 条件等
    引渡可能時期 即時 現況
    適格請求書発行
    更新料 新賃料 1ヶ月 物件番号 6988456697
    情報公開日 2025年11月20日 次回更新予定日 2025年12月18日
    ケータイ用バーコード

    QRコード

    スマートフォンでこの物件を見る
    スマートフォンからもこの物件をご覧になれます。
    ※「-」と表示されている項目については、情報提供会社にご確認ください。

    この物件の周辺情報

    周辺施設 フレスコ北野白梅町店
    距離 470m
    周辺施設 コーヨー上七軒店
    距離 613m
    周辺施設 イズミヤショッピングセンター白梅町
    距離 582m
    周辺施設 ローソン北野天満宮前店
    距離 434m
    周辺施設 とようけ茶屋
    距離 212m
    周辺施設 私立立命館大学
    距離 1760m
    周辺施設 北野幼稚園
    距離 87m
    周辺施設 北野天満宮
    距離 541m

    クイックお問い合わせ

    ここから簡単にお問い合わせをすることができます。
    (SSLでの暗号化での送信を希望されるお客さまは こちら よりお問い合わせください)

    お問い合わせ内容(必須)
    物件のお問い合わせ理由(必須)
    お名前・ご担当者様名(必須) 姓  名 
    メールアドレス(必須)
    ※携帯電話のメールアドレスをご入力される方はこちらをご確認ください
    電話番号(必須)
    - -
    備考欄 希望条件、物件案内希望日、質問などがございましたらご記入ください。
    お問い合わせを行う前に「個人情報の取り扱いについて」を必ずお読みください。
    「個人情報の取り扱いについて」に同意いただいた場合は「上記にご同意の上 確認画面へ進む」のボタンをクリックしてください。

    個人情報の取り扱いについて

    皆さまが送付された個人情報はアットホーム(株)のサーバを経由し、お問い合わせ先の不動産会社にメールまたはFAXにて転送されるためアットホーム(株)にも保管されます。アットホーム(株)で保管された個人情報の取り扱いについては、【こちら】をご覧ください。
    また、本画面でご記入いただいた個人情報は、お問い合わせ先の不動産会社でも保管します。 お問い合わせ先の不動産会社が保管する個人情報の取り扱いについては、不動産会社に直接お問い合わせください。

    情報提供会社

    情報提供会社

    創業屋 (株)エクイティ

    国土交通大臣免許(1)第10212号

    交通:
    地下鉄谷町線/南森町駅 徒歩3分
    大阪府大阪市北区天神橋3丁目4番10号 
    TEL:
    06-6467-4315
    所属団体:
    (一社)大阪府宅地建物取引業協会会員
    (公社)近畿地区不動産公正取引協議会加盟

    取引態様:仲介

    • 会社情報
    • 50104743
    スマートフォンで
    この不動産会社を見る
    QRコード
    • お問い合わせ
    • 提携サイト等より掲載されている物件情報につきましては、不動産会社詳細情報にリンクされていないものがあります。
    • 物件に関するお問合せは、物件詳細ページの「情報提供会社」に表示されている不動産会社へ直接お願いいたします。
    • 間取図は、現況を優先させていただきます。
    • 映像は物件の一部を撮影したものです。物件の契約にあたっての最終判断はご自身の判断に基づいて行ってください。
    • 仲介手数料について仲介手数料

    アットホームは物件情報の適正化に努めております。 内容に誤りがある場合にはこちらへご連絡ください。


    物件画像: