賃貸や不動産はアットホーム-賃貸マンション・賃貸物件・不動産なら アットホーム

広島県広島市安佐南区大町西1丁目(大町駅)の貸店舗:物件詳細

  • 物件詳細
  • 情報の見方
  • 印刷用画面
交通
所在地
駅徒歩 賃料
管理費等
敷金/保証金
礼金
使用部分面積
坪数/坪単価
物件種目
築年月

広島高速交通アストラムライン/大町

広島県広島市安佐南区大町西1丁目

8分

66万円

6ヶ月 / なし

1ヶ月

334.53m²

101.19坪/0.6523万円

貸店舗・事務所(一括)

1979年10月(築46年7ヶ月)

おすすめコメント  スタッフ: 古賀 純子

なかなか出ない1棟貸!24時間利用可!安川通り沿いの3階建て1棟貸!何商でもOKです。駐車場4台無料(+2台あり)。

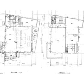
間取図

間取図

外観

外観

<
その他の画像
  • 外観
  • 室内
  • 室内
  • 室内
  • 室内
  • 室内
  • 室内
  • トイレ
  • トイレ
  • 外観
  • 室内
  • 室内
  • 室内
  • キッチン
  • 室内
  • 室内
  • 室内
  • 室内
  • 室内
  • 室内
>
    • お問い合わせ
    交通

    広島高速交通アストラムライン 大町駅 徒歩8分

    その他の交通

    可部線 大町駅 徒歩9分

    広島高速交通アストラムライン 古市駅 徒歩15分

    所在地 広島県広島市安佐南区大町西1丁目
    物件種目 貸店舗・事務所(一括)
    賃料 66万円 管理費等
    敷金 / 保証金 6ヶ月 / なし 礼金 1ヶ月
    敷引 坪単価 0.6523万円
    保証金償却 権利金
    造作譲渡 その他一時金
    維持費等 保険等
    使用部分面積 334.53m² 坪数 101.19坪
    築年月 1979年10月(築46年7ヶ月) 階建 / 階 2階建
    駐車場 有 無料(空き4台) バイク置き場 有 無料
    駐輪場 有 無料 土地面積 773.49m²(公簿)
    接道状況 東 10.7m 公道 ・ 西 2.2m 公道 ・ 二方道路 用途地域 近隣商業
    間取り 建物構造 RC
    アピールポイント ロードサイドの1棟貸!24時間利用可!重飲食や小売・物販など何商でもOK!JR駅もアストラムライン駅も徒歩圏内 何商でもOKです。内見できます!
    外装は貸主負担にて相談できます。内装は現状渡しですのでご自由にリフォームしてお使いできます。
    平面駐車場4台無料。(別途2台分確保できます)
    ◎空室にて内見できます!
    建物名・部屋番号  
    リフォーム履歴
    リノベーション履歴
    特記事項 24時間利用可、土曜日利用可、土日・祝日利用可、飲食店可、駐車場3台分以上、都道府県道沿いに面する
    備考
    賃貸保証等:利用可(日本セーフティー等)
    管理形態/管理員の勤務形態:-/-
    施設内会議室あり:無料
    現状渡しの為、修理取替等は借主様負担となります。お好きに内装・外装リフォーム可能です。
    エネルギー消費性能
    断熱性能
    目安光熱費
    バス・トイレ トイレ2ヶ所、専有部分に男女別トイレあり、共用部分に男女別トイレあり
    キッチン
    設備・サービス 看板取付スペースあり、シャッター付き、空調機あり、排煙設備あり
    エアコン2台以上、電動シャッター、給湯、ビルトインエアコン
    その他
    契約期間 3年 条件等
    引渡可能時期 相談 現況
    仲介手数料 1ヶ月    
    更新料 なし 物件番号 6988446659
    情報公開日 2025年11月19日 次回更新予定日 2026年4月15日
    ケータイ用バーコード

    QRコード

    スマートフォンでこの物件を見る
    スマートフォンからもこの物件をご覧になれます。
    ※「-」と表示されている項目については、情報提供会社にご確認ください。

    この物件の周辺情報

    周辺施設 とれたて元気市広島
    距離 371m
    周辺施設 ユニクロ安佐南大町店
    距離 433m
    周辺施設 ゆめマート大町店
    距離 601m
    周辺施設 ローソン広島大町東2丁目店
    距離 385m
    周辺施設 ローソン広島大町西三丁目店
    距離 365m
    周辺施設 セブンイレブン広島古市3丁目店
    距離 487m
    周辺施設 JA-SS JASS-PORT広島
    距離 254m

    クイックお問い合わせ

    ここから簡単にお問い合わせをすることができます。
    (SSLでの暗号化での送信を希望されるお客さまは こちら よりお問い合わせください)

    お問い合わせ内容(必須)
    物件のお問い合わせ理由(必須)
    お名前・ご担当者様名(必須) 姓  名 
    メールアドレス(必須)
    ※携帯電話のメールアドレスをご入力される方はこちらをご確認ください
    電話番号(必須)
    - -
    備考欄 希望条件、物件案内希望日、質問などがございましたらご記入ください。
    お問い合わせを行う前に「個人情報の取り扱いについて」を必ずお読みください。
    「個人情報の取り扱いについて」に同意いただいた場合は「上記にご同意の上 確認画面へ進む」のボタンをクリックしてください。

    個人情報の取り扱いについて

    皆さまが送付された個人情報はアットホーム(株)のサーバを経由し、お問い合わせ先の不動産会社にメールまたはFAXにて転送されるためアットホーム(株)にも保管されます。アットホーム(株)で保管された個人情報の取り扱いについては、【こちら】をご覧ください。
    また、本画面でご記入いただいた個人情報は、お問い合わせ先の不動産会社でも保管します。 お問い合わせ先の不動産会社が保管する個人情報の取り扱いについては、不動産会社に直接お問い合わせください。

    情報提供会社

    情報提供会社

    一凛ホーム(株)

    広島県知事免許(2)第10705号

    交通:
    広島電鉄本線/西観音町駅 徒歩10分
    広島県広島市西区東観音町17-10-201 
    TEL:
    082-208-3913
    FAX:
    082-208-3914
    所属団体:
    (公社)広島県宅地建物取引業協会会員
    中国地区不動産公正取引協議会加盟

    取引態様:仲介

    • 会社情報
    • 50102438
    スマートフォンで
    この不動産会社を見る
    QRコード
    • お問い合わせ
    • 提携サイト等より掲載されている物件情報につきましては、不動産会社詳細情報にリンクされていないものがあります。
    • 物件に関するお問合せは、物件詳細ページの「情報提供会社」に表示されている不動産会社へ直接お願いいたします。
    • 間取図は、現況を優先させていただきます。
    • 映像は物件の一部を撮影したものです。物件の契約にあたっての最終判断はご自身の判断に基づいて行ってください。
    • 仲介手数料について仲介手数料

    アットホームは物件情報の適正化に努めております。 内容に誤りがある場合にはこちらへご連絡ください。


    物件画像: