賃貸や不動産はアットホーム-賃貸マンション・賃貸物件・不動産なら アットホーム

神奈川県横浜市中区蓬莱町3丁目(関内駅)の貸店舗:物件詳細

  • 物件詳細
  • 情報の見方
  • 印刷用画面
交通
所在地
駅徒歩 賃料
管理費等
敷金/保証金
礼金
使用部分面積
坪数/坪単価
物件種目
築年月

JR京浜東北線/関内

神奈川県横浜市中区蓬莱町3丁目

4分

109.4808万円

なし

12ヶ月 / なし

1ヶ月

137.10m²

41.47坪/2.6399万円

貸店舗

1989年1月(築37年)

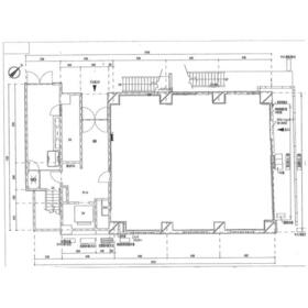
間取図

間取図

外観

外観

その他の画像
  • 案内図
    • お問い合わせ
    交通

    JR京浜東北線 関内駅 徒歩4分

    その他の交通

    ブルーライン 関内駅 徒歩6分

    ブルーライン 伊勢佐木長者町駅 徒歩2分

    所在地 神奈川県横浜市中区蓬莱町3丁目
    物件種目 貸店舗
    賃料 109.4808万円 管理費等 なし
    敷金 / 保証金 12ヶ月 / なし 礼金 1ヶ月
    敷引 坪単価 2.6399万円
    保証金償却 権利金
    造作譲渡 その他一時金 なし
    維持費等 保険等 要 5年
    使用部分面積 137.10m² 坪数 41.47坪
    築年月 1989年1月(築37年) 階建 / 階 地上9階地下1階建 / 1階
    駐車場 バイク置き場
    駐輪場 土地面積
    接道状況 用途地域
    間取り 建物構造 SRC
    建物名・部屋番号 RKセントラルビル
    リフォーム履歴
    リノベーション履歴
    特記事項 スケルトン、飲食店不可、耐震構造(新耐震基準)
    備考
    賃貸保証等:利用可(固定賃料の100%)
    管理形態/管理員の勤務形態:-/-
    エネルギー消費性能
    断熱性能
    目安光熱費
    バス・トイレ
    キッチン
    設備・サービス 看板取付スペースあり
    その他 エレベーター
    契約期間 5年 条件等 定期借家定期借家
    引渡可能時期 指定有り2026年3月1日 現況 居住中
    仲介手数料 1ヶ月 適格請求書発行
    更新料 新賃料 0.5ヶ月 物件番号 6988425343
    情報公開日 2025年12月1日 次回更新予定日 2025年12月15日
    ケータイ用バーコード

    QRコード

    スマートフォンでこの物件を見る
    スマートフォンからもこの物件をご覧になれます。
    ※「-」と表示されている項目については、情報提供会社にご確認ください。

    クイックお問い合わせ

    ここから簡単にお問い合わせをすることができます。
    (SSLでの暗号化での送信を希望されるお客さまは こちら よりお問い合わせください)

    お問い合わせ内容(必須)
    物件のお問い合わせ理由(必須)
    お名前・ご担当者様名(必須) 姓  名 
    メールアドレス(必須)
    ※携帯電話のメールアドレスをご入力される方はこちらをご確認ください
    電話番号(必須)
    - -
    備考欄 希望条件、物件案内希望日、質問などがございましたらご記入ください。
    お問い合わせを行う前に「個人情報の取り扱いについて」を必ずお読みください。
    「個人情報の取り扱いについて」に同意いただいた場合は「上記にご同意の上 確認画面へ進む」のボタンをクリックしてください。

    個人情報の取り扱いについて

    皆さまが送付された個人情報はアットホーム(株)のサーバを経由し、お問い合わせ先の不動産会社にメールまたはFAXにて転送されるためアットホーム(株)にも保管されます。アットホーム(株)で保管された個人情報の取り扱いについては、【こちら】をご覧ください。
    また、本画面でご記入いただいた個人情報は、お問い合わせ先の不動産会社でも保管します。 お問い合わせ先の不動産会社が保管する個人情報の取り扱いについては、不動産会社に直接お問い合わせください。

    情報提供会社

    オフィスプロ(株)

    国土交通大臣免許(1)第11013号

    交通:
    JR京浜東北線/横浜駅 徒歩3分
    神奈川県横浜市西区高島2丁目6-38 岩井本社ビル4F
    TEL:
    045-534-9841
    FAX:
    045-534-9840
    所属団体:
    (公社)全日本不動産協会会員
    (公社)首都圏不動産公正取引協議会加盟

    取引態様:仲介

    • 00107840
    • お問い合わせ
    • 提携サイト等より掲載されている物件情報につきましては、不動産会社詳細情報にリンクされていないものがあります。
    • 物件に関するお問合せは、物件詳細ページの「情報提供会社」に表示されている不動産会社へ直接お願いいたします。
    • 間取図は、現況を優先させていただきます。
    • 映像は物件の一部を撮影したものです。物件の契約にあたっての最終判断はご自身の判断に基づいて行ってください。
    • 仲介手数料について仲介手数料

    アットホームは物件情報の適正化に努めております。 内容に誤りがある場合にはこちらへご連絡ください。


    物件画像: