賃貸や不動産はアットホーム-賃貸マンション・賃貸物件・不動産なら アットホーム

大阪府大阪市北区中津3丁目(中津駅)の貸店舗:物件詳細

  • 物件詳細
  • 情報の見方
  • 印刷用画面
交通
所在地
駅徒歩 賃料
管理費等
敷金/保証金
礼金
使用部分面積
坪数/坪単価
物件種目
築年月

阪急宝塚線/中津 新着

大阪府大阪市北区中津3丁目

4分

17.6万円

1ヶ月 / なし

2ヶ月

71.58m²

21.65坪/0.8129万円

貸店舗・事務所

1980年5月(築45年8ヶ月)

おすすめコメント

リフォーム可能。商店街

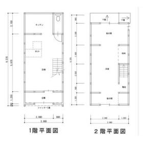
間取図

間取図

  • お問い合わせ
交通

阪急宝塚線 中津駅 徒歩4分

その他の交通

地下鉄御堂筋線 中津駅 徒歩6分

阪急神戸線 大阪梅田駅 徒歩14分

所在地 大阪府大阪市北区中津3丁目
物件種目 貸店舗・事務所
賃料 17.6万円 管理費等
敷金 / 保証金 1ヶ月 / なし 礼金 2ヶ月
敷引 坪単価 0.8129万円
保証金償却 権利金
造作譲渡 その他一時金
維持費等 保険等
使用部分面積 71.58m² 坪数 21.65坪
築年月 1980年5月(築45年8ヶ月) 階建 / 階 2階建 / 1階~2階部分
駐車場 バイク置き場
駐輪場 土地面積
接道状況 用途地域
間取り 建物構造 木造
建物名・部屋番号  
リフォーム履歴
リノベーション履歴
特記事項 飲食店可
備考
管理形態/管理員の勤務形態:-/-
エネルギー消費性能
断熱性能
目安光熱費
バス・トイレ トイレ
キッチン
設備・サービス
その他
契約期間 10年 条件等
引渡可能時期 即時 現況
更新料 物件番号 6988417248
情報公開日 2025年12月10日 次回更新予定日 2025年12月24日
ケータイ用バーコード

QRコード

スマートフォンでこの物件を見る
スマートフォンからもこの物件をご覧になれます。
※「-」と表示されている項目については、情報提供会社にご確認ください。

クイックお問い合わせ

ここから簡単にお問い合わせをすることができます。
(SSLでの暗号化での送信を希望されるお客さまは こちら よりお問い合わせください)

お問い合わせ内容(必須)
物件のお問い合わせ理由(必須)
お名前・ご担当者様名(必須) 姓  名 
メールアドレス(必須)
※携帯電話のメールアドレスをご入力される方はこちらをご確認ください
電話番号(必須)
- -
備考欄 希望条件、物件案内希望日、質問などがございましたらご記入ください。
お問い合わせを行う前に「個人情報の取り扱いについて」を必ずお読みください。
「個人情報の取り扱いについて」に同意いただいた場合は「上記にご同意の上 確認画面へ進む」のボタンをクリックしてください。

個人情報の取り扱いについて

皆さまが送付された個人情報はアットホーム(株)のサーバを経由し、お問い合わせ先の不動産会社にメールまたはFAXにて転送されるためアットホーム(株)にも保管されます。アットホーム(株)で保管された個人情報の取り扱いについては、【こちら】をご覧ください。
また、本画面でご記入いただいた個人情報は、お問い合わせ先の不動産会社でも保管します。 お問い合わせ先の不動産会社が保管する個人情報の取り扱いについては、不動産会社に直接お問い合わせください。

情報提供会社

情報提供会社

(株)HOUSE・FRONT ハウスフロント

大阪府知事免許(4)第52538号

交通:
地下鉄谷町線/中崎町駅 徒歩3分
大阪府大阪市北区浮田1丁目6-10 
TEL:
06-6486-0050
FAX:
06-6486-0101
所属団体:
(一社)大阪府宅地建物取引業協会会員
(公社)近畿地区不動産公正取引協議会加盟

取引態様:仲介

  • 会社情報
  • 50018197
スマートフォンで
この不動産会社を見る
QRコード
  • お問い合わせ
  • 提携サイト等より掲載されている物件情報につきましては、不動産会社詳細情報にリンクされていないものがあります。
  • 物件に関するお問合せは、物件詳細ページの「情報提供会社」に表示されている不動産会社へ直接お願いいたします。
  • 間取図は、現況を優先させていただきます。
  • 映像は物件の一部を撮影したものです。物件の契約にあたっての最終判断はご自身の判断に基づいて行ってください。
  • 仲介手数料について仲介手数料

アットホームは物件情報の適正化に努めております。 内容に誤りがある場合にはこちらへご連絡ください。


物件画像: