賃貸や不動産はアットホーム-賃貸マンション・賃貸物件・不動産なら アットホーム

福岡県福岡市中央区大名2丁目(赤坂駅)の貸店舗:物件詳細

  • 物件詳細
  • 情報の見方
  • 印刷用画面
交通
所在地
駅徒歩 賃料
管理費等
敷金/保証金
礼金
使用部分面積
坪数/坪単価
物件種目
築年月

地下鉄空港線/赤坂

福岡県福岡市中央区大名2丁目

1分

39.87万円

119,625円

8ヶ月 / なし

なし

119.83m²

36.24坪/1.10万円

貸店舗・事務所

1987年1月(築39年)

おすすめコメント

※消費税10%で算出 大名二丁目エリア。赤坂交差点至近物件。貸室内はOAフロア設備になっており、レイアウトし易い形状となっております。

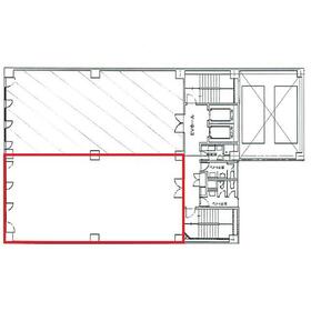
間取図

間取図

<
その他の画像
  • コンビニ
  • コンビニ
  • 郵便局
  • 銀行
  • 銀行
  • 役所
  • その他
>
    • お問い合わせ
    交通

    地下鉄空港線 赤坂駅 徒歩1分

    その他の交通

    地下鉄空港線 天神駅 徒歩12分

    西鉄天神大牟田線 西鉄福岡(天神)駅 徒歩13分

    所在地 福岡県福岡市中央区大名2丁目
    物件種目 貸店舗・事務所
    賃料 39.87万円 管理費等 119,625円
    敷金 / 保証金 8ヶ月 / なし 礼金 なし
    敷引 坪単価 1.10万円
    保証金償却 権利金
    造作譲渡 その他一時金
    維持費等 保険等
    使用部分面積 119.83m² 坪数 36.24坪
    築年月 1987年1月(築39年) 階建 / 階 8階建 / 2階
    駐車場 有 27,500円/月 バイク置き場
    駐輪場 土地面積
    接道状況 用途地域
    間取り 建物構造 SRC
    アピールポイント 大名二丁目エリア。
    赤坂交差点至近物件。
    貸室内はOAフロア設備になっており、
    レイアウトし易い形状となっております。
    1階には飲食店が入居、駐車場の確保も可能です。
    周辺環境としましては、カフェ・コンビニ等も有り、
    非常に便利な物件となっています。
    最寄駅は地下鉄赤坂駅となりまして徒歩1分の立地となっています。
    建物名・部屋番号 赤坂セブンビル
    リフォーム履歴
    リノベーション履歴
    特記事項 24時間利用可、土曜日利用可、土日・祝日利用可、OAフロア、飲食店不可、24時間セキュリティー、天井高2.5M以上
    備考
    管理形態/管理員の勤務形態:-/-
    エネルギー消費性能
    断熱性能
    目安光熱費
    バス・トイレ 共用部分に男女別トイレあり
    キッチン
    設備・サービス 個別空調、光ファイバー
    その他 エレベーター2基以上、エレベーター
    契約期間 2年 条件等
    引渡可能時期 2026年2月予定 現況 使用中
    更新料 物件番号 6988400380
    情報公開日 2025年11月14日 次回更新予定日 2025年12月24日
    ケータイ用バーコード

    QRコード

    スマートフォンでこの物件を見る
    スマートフォンからもこの物件をご覧になれます。
    ※「-」と表示されている項目については、情報提供会社にご確認ください。

    この物件の周辺情報

    周辺施設 ローソン福岡赤坂門店
    距離 108m
    周辺施設 デイリーヤマザキ福岡赤坂1丁目店
    距離 121m
    周辺施設 CoCo壱番屋中央区大名店
    距離 107m
    周辺施設 福岡大名二郵便局
    距離 284m
    周辺施設 福岡中央銀行本店
    距離 207m
    周辺施設 福岡銀行赤坂門支店
    距離 116m
    周辺施設 福岡市中央区役所
    距離 255m
    周辺施設 トラストパーク赤坂1丁目
    距離 70m

    クイックお問い合わせ

    ここから簡単にお問い合わせをすることができます。
    (SSLでの暗号化での送信を希望されるお客さまは こちら よりお問い合わせください)

    お問い合わせ内容(必須)
    物件のお問い合わせ理由(必須)
    お名前・ご担当者様名(必須) 姓  名 
    メールアドレス(必須)
    ※携帯電話のメールアドレスをご入力される方はこちらをご確認ください
    電話番号(必須)
    - -
    備考欄 希望条件、物件案内希望日、質問などがございましたらご記入ください。
    お問い合わせを行う前に「個人情報の取り扱いについて」を必ずお読みください。
    「個人情報の取り扱いについて」に同意いただいた場合は「上記にご同意の上 確認画面へ進む」のボタンをクリックしてください。

    個人情報の取り扱いについて

    皆さまが送付された個人情報はアットホーム(株)のサーバを経由し、お問い合わせ先の不動産会社にメールまたはFAXにて転送されるためアットホーム(株)にも保管されます。アットホーム(株)で保管された個人情報の取り扱いについては、【こちら】をご覧ください。
    また、本画面でご記入いただいた個人情報は、お問い合わせ先の不動産会社でも保管します。 お問い合わせ先の不動産会社が保管する個人情報の取り扱いについては、不動産会社に直接お問い合わせください。

    情報提供会社

    情報提供会社

    (株)クイックコンサルティング 福岡支店

    国土交通大臣免許(4)第7938号

    交通:
    西鉄天神大牟田線/西鉄福岡(天神)駅 徒歩2分
    福岡県福岡市中央区天神1丁目6-8 天神ツインビル4F
    TEL:
    092-791-5500
    FAX:
    092-791-5511
    所属団体:
    (公社)全日本不動産協会会員
    (一社)九州不動産公正取引協議会加盟

    取引態様:仲介

    • 会社情報
    • 80506897
    スマートフォンで
    この不動産会社を見る
    QRコード
    • お問い合わせ
    • 提携サイト等より掲載されている物件情報につきましては、不動産会社詳細情報にリンクされていないものがあります。
    • 物件に関するお問合せは、物件詳細ページの「情報提供会社」に表示されている不動産会社へ直接お願いいたします。
    • 間取図は、現況を優先させていただきます。
    • 映像は物件の一部を撮影したものです。物件の契約にあたっての最終判断はご自身の判断に基づいて行ってください。
    • 仲介手数料について仲介手数料

    アットホームは物件情報の適正化に努めております。 内容に誤りがある場合にはこちらへご連絡ください。


    物件画像: