賃貸や不動産はアットホーム-賃貸マンション・賃貸物件・不動産なら アットホーム

愛知県名古屋市西区砂原町(上小田井駅)の貸店舗:物件詳細

  • 物件詳細
  • 情報の見方
  • 印刷用画面
交通
所在地
駅徒歩 賃料
管理費等
敷金/保証金
礼金
使用部分面積
坪数/坪単価
物件種目
築年月

名鉄犬山線/上小田井

愛知県名古屋市西区砂原町

26分

72.05万円

なし / 4ヶ月

なし

280.50m²

84.85坪/0.8492万円

貸店舗

1977年2月(築48年11ヶ月)

おすすめコメント

幹線道路沿い交差点近く!居抜き物件で、飲食店におすすめ♪

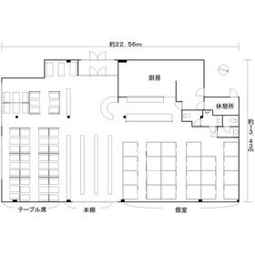
間取図

間取図

外観

外観

外観

<
その他の画像
  • 室内
  • 室内
  • 室内
  • 室内
  • 室内
  • 室内
  • 室内
  • キッチン
  • トイレ
  • トイレ
  • 室内
>
    • お問い合わせ
    交通

    名鉄犬山線 上小田井駅 徒歩26分

    その他の交通

    名古屋市鶴舞線 庄内緑地公園駅 徒歩28分

    JR東海交通事業城北線 比良駅 徒歩9分

    所在地 愛知県名古屋市西区砂原町
    物件種目 貸店舗
    賃料 72.05万円 管理費等
    敷金 / 保証金 なし / 4ヶ月 礼金 なし
    敷引 坪単価 0.8492万円
    保証金償却 解約時50% 権利金
    造作譲渡 その他一時金
    維持費等 保険等 要 家財
    使用部分面積 280.50m² 坪数 84.85坪
    築年月 1977年2月(築48年11ヶ月) 階建 / 階 3階建 / 1階
    駐車場 有 無料(空き38台)
    駐車場側は、所有者別で貸地。(賃料に含む)
    バイク置き場
    駐輪場 土地面積 497.61m²(公簿)
    接道状況 南 6.0m 公道 接面31.0m 用途地域 近隣商業
    間取り 建物構造 鉄骨造
    建物名・部屋番号 松本貸店舗
    リフォーム履歴 ■その他:1996年1月
    パチンコ屋から改修
    ※実施年月は最も古い履歴を表示
    リノベーション履歴
    特記事項 居抜き、飲食店可、1フロア1テナント、駐車場3台分以上
    備考
    賃貸保証等:加入要(全保連:初回月額賃料100%、翌年度以降、毎年、月額賃料10%の保証委託料が掛かります。)
    管理形態/管理員の勤務形態:-/-
    主要採光面:南向き
    ・連帯保証人及び家賃保証加入要。
    ・エアコン、照明、PC、ソファ、テーブル、厨房機器等譲渡。
    エネルギー消費性能
    断熱性能
    目安光熱費
    バス・トイレ トイレ2ヶ所
    キッチン
    設備・サービス 給湯、プロパンガス
    その他
    契約期間 2年 条件等
    引渡可能時期 相談 現況 居住中
    仲介手数料 1.1ヶ月    
    更新料 物件番号 6988382366
    情報公開日 2025年12月6日 次回更新予定日 2025年12月20日
    ケータイ用バーコード

    QRコード

    スマートフォンでこの物件を見る
    スマートフォンからもこの物件をご覧になれます。
    ※「-」と表示されている項目については、情報提供会社にご確認ください。

    この物件の周辺情報

    周辺施設 ファミリーマート砂原町店
    距離 108m
    周辺施設 ココカラファイン比良店
    距離 183m
    周辺施設 ナフコトミダ師勝店
    距離 1123m
    周辺施設 名古屋比良郵便局
    距離 258m
    周辺施設 あいち銀行山田支店
    距離 386m
    周辺施設 名古屋市西区役所山田支所
    距離 1737m
    周辺施設 西消防署大野木出張所
    距離 544m
    周辺施設 大我麻公園
    距離 1263m

    クイックお問い合わせ

    ここから簡単にお問い合わせをすることができます。
    (SSLでの暗号化での送信を希望されるお客さまは こちら よりお問い合わせください)

    お問い合わせ内容(必須)
    物件のお問い合わせ理由(必須)
    お名前・ご担当者様名(必須) 姓  名 
    メールアドレス(必須)
    ※携帯電話のメールアドレスをご入力される方はこちらをご確認ください
    電話番号(必須)
    - -
    備考欄 希望条件、物件案内希望日、質問などがございましたらご記入ください。
    お問い合わせを行う前に「個人情報の取り扱いについて」を必ずお読みください。
    「個人情報の取り扱いについて」に同意いただいた場合は「上記にご同意の上 確認画面へ進む」のボタンをクリックしてください。

    個人情報の取り扱いについて

    皆さまが送付された個人情報はアットホーム(株)のサーバを経由し、お問い合わせ先の不動産会社にメールまたはFAXにて転送されるためアットホーム(株)にも保管されます。アットホーム(株)で保管された個人情報の取り扱いについては、【こちら】をご覧ください。
    また、本画面でご記入いただいた個人情報は、お問い合わせ先の不動産会社でも保管します。 お問い合わせ先の不動産会社が保管する個人情報の取り扱いについては、不動産会社に直接お問い合わせください。

    情報提供会社

    情報提供会社

    木村不動産(株)

    愛知県知事免許(3)第22348号

    交通:
    名古屋市鶴舞線/庄内緑地公園駅 徒歩12分 【バス】 大野木四丁目 停歩2分
    愛知県名古屋市西区歌里町382 
    TEL:
    0120-151-722
    FAX:
    052-503-3882
    所属団体:
    (公社)愛知県宅地建物取引業協会会員
    東海不動産公正取引協議会加盟

    取引態様:仲介

    • 会社情報
    • 40403556
    スマートフォンで
    この不動産会社を見る
    QRコード
    • お問い合わせ
    • 提携サイト等より掲載されている物件情報につきましては、不動産会社詳細情報にリンクされていないものがあります。
    • 物件に関するお問合せは、物件詳細ページの「情報提供会社」に表示されている不動産会社へ直接お願いいたします。
    • 間取図は、現況を優先させていただきます。
    • 映像は物件の一部を撮影したものです。物件の契約にあたっての最終判断はご自身の判断に基づいて行ってください。
    • 仲介手数料について仲介手数料

    アットホームは物件情報の適正化に努めております。 内容に誤りがある場合にはこちらへご連絡ください。


    物件画像: