賃貸や不動産はアットホーム-賃貸マンション・賃貸物件・不動産なら アットホーム

東京都中央区築地6丁目(築地駅)の貸店舗:物件詳細

  • 物件詳細
  • 情報の見方
  • 印刷用画面
交通
所在地
駅徒歩 賃料
管理費等
敷金/保証金
礼金
使用部分面積
坪数/坪単価
物件種目
築年月

東京メトロ日比谷線/築地

東京都中央区築地6丁目

5分

55.13万円

なし

なし / 8ヶ月

なし

118.30m²

35.78坪/1.5406万円

貸店舗・事務所

1977年4月(築48年11ヶ月)

おすすめコメント  スタッフ: 瀧本 明央

築地駅、築地市場駅徒歩5分の好立地!2015年エントランス!2018年トイレ、貸室内リノベーション済み!日の入るお部屋です♪※原状回復:借主負担

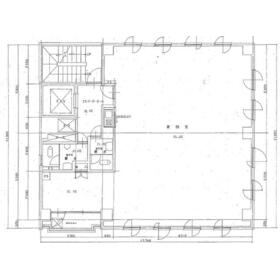
間取図

間取図

<
その他の画像
>
    • お問い合わせ
    交通

    東京メトロ日比谷線 築地駅 徒歩5分

    その他の交通

    都営大江戸線 築地市場駅 徒歩5分

    東京メトロ日比谷線 東銀座駅 徒歩8分

    所在地 東京都中央区築地6丁目
    物件種目 貸店舗・事務所
    賃料 55.13万円 管理費等 なし
    敷金 / 保証金 なし / 8ヶ月 礼金 なし
    敷引 坪単価 1.5406万円
    保証金償却 解約時1ヶ月 権利金
    造作譲渡 その他一時金
    維持費等 保険等 要 借家人賠償付火災
    使用部分面積 118.30m² 坪数 35.78坪
    築年月 1977年4月(築48年11ヶ月) 階建 / 階 地上6階地下1階建 / 4階
    駐車場 バイク置き場
    駐輪場 土地面積
    接道状況 用途地域
    間取り 建物構造 RC
    アピールポイント 築地駅、築地市場駅徒歩5分の好立地!
    2015年エントランス!2018年トイレ、貸室内リノベーション済み!
    日の入るお部屋です♪※原状回復:借主負担
    建物名・部屋番号 ウィンド築地Ⅱビル 4階
    リフォーム履歴
    リノベーション履歴
    特記事項 24時間利用可、飲食店不可、1フロア1テナント、24時間換気システム
    備考
    賃貸保証等:加入要(別途保証委託料要)
    管理形態/管理員の勤務形態:-/-
    ※室内パーテーション有り
    ※エレベーター不停止キー有り
    ※床仕様:タイルカーペット
    ※原状回復:借主負担
    エネルギー消費性能
    断熱性能
    目安光熱費
    バス・トイレ 共用部分に男女別トイレあり
    キッチン
    設備・サービス 看板取付スペースあり、空調機あり
    個別空調、給湯、都市ガス、エアコン、暖房、冷房
    その他 エレベーター
    契約期間 3年 条件等 定期借家定期借家
    引渡可能時期 即時 現況
    更新料 新賃料 1ヶ月 物件番号 6988380007
    情報公開日 2025年11月13日 次回更新予定日 2026年2月23日
    ケータイ用バーコード

    QRコード

    スマートフォンでこの物件を見る
    スマートフォンからもこの物件をご覧になれます。
    ※「-」と表示されている項目については、情報提供会社にご確認ください。

    この物件の周辺情報

    周辺施設 ニューみ乃り屋
    距離 235m
    周辺施設 築地KYビル
    距離 399m
    周辺施設 まいばすけっと築地2丁目店
    距離 621m
    周辺施設 デリド勝どき駅前店
    距離 710m
    周辺施設 まいばすけっと築地明石町店
    距離 773m
    周辺施設 ファミリーマート築地市場前店
    距離 17m
    周辺施設 ファミリーマート築地六丁目店
    距離 132m
    周辺施設 ローソン築地六丁目店
    距離 227m

    クイックお問い合わせ

    ここから簡単にお問い合わせをすることができます。
    (SSLでの暗号化での送信を希望されるお客さまは こちら よりお問い合わせください)

    お問い合わせ内容(必須)
    物件のお問い合わせ理由(必須)
    お名前・ご担当者様名(必須) 姓  名 
    メールアドレス(必須)
    ※携帯電話のメールアドレスをご入力される方はこちらをご確認ください
    電話番号(必須)
    - -
    備考欄 希望条件、物件案内希望日、質問などがございましたらご記入ください。
    お問い合わせを行う前に「個人情報の取り扱いについて」を必ずお読みください。
    「個人情報の取り扱いについて」に同意いただいた場合は「上記にご同意の上 確認画面へ進む」のボタンをクリックしてください。

    個人情報の取り扱いについて

    皆さまが送付された個人情報はアットホーム(株)のサーバを経由し、お問い合わせ先の不動産会社にメールまたはFAXにて転送されるためアットホーム(株)にも保管されます。アットホーム(株)で保管された個人情報の取り扱いについては、【こちら】をご覧ください。
    また、本画面でご記入いただいた個人情報は、お問い合わせ先の不動産会社でも保管します。 お問い合わせ先の不動産会社が保管する個人情報の取り扱いについては、不動産会社に直接お問い合わせください。

    情報提供会社

    情報提供会社

    (株)アースウィンド 銀座店

    東京都知事免許(5)第79601号

    交通:
    東京メトロ銀座線/京橋駅 徒歩1分
    東京都中央区銀座1丁目20-17 押谷ビル8階
    TEL:
    03-3563-7666
    FAX:
    03-3563-7667
    所属団体:
    (公社)全日本不動産協会会員
    (一社)不動産協会会員
    (公社)首都圏不動産公正取引協議会加盟

    取引態様:貸主

    • 会社情報
    • 00013100
    スマートフォンで
    この不動産会社を見る
    QRコード
    • お問い合わせ
    • 提携サイト等より掲載されている物件情報につきましては、不動産会社詳細情報にリンクされていないものがあります。
    • 物件に関するお問合せは、物件詳細ページの「情報提供会社」に表示されている不動産会社へ直接お願いいたします。
    • 間取図は、現況を優先させていただきます。
    • 映像は物件の一部を撮影したものです。物件の契約にあたっての最終判断はご自身の判断に基づいて行ってください。
    • 仲介手数料について仲介手数料

    アットホームは物件情報の適正化に努めております。 内容に誤りがある場合にはこちらへご連絡ください。


    物件画像: