賃貸や不動産はアットホーム-賃貸マンション・賃貸物件・不動産なら アットホーム

三重県桑名市寿町2丁目(桑名駅)の貸店舗:物件詳細

  • 物件詳細
  • 情報の見方
  • 印刷用画面
交通
所在地
駅徒歩 賃料
管理費等
敷金/保証金
礼金
使用部分面積
坪数/坪単価
物件種目
築年月

近鉄名古屋線/桑名

三重県桑名市寿町2丁目

2分

32.472万円

64,944円

12ヶ月 / なし

なし

130.12m²

39.36坪/0.825万円

貸店舗・事務所

1990年3月(築35年10ヶ月)

おすすめコメント

JR・近鉄「桑名」駅から徒歩2分の好立地!

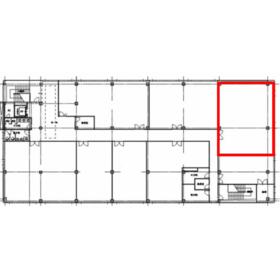
間取図

間取図

その他の画像
    • お問い合わせ
    交通

    近鉄名古屋線 桑名駅 徒歩2分

    その他の交通

    三岐鉄道北勢線 西桑名駅 徒歩1分

    関西本線 桑名駅 徒歩2分

    所在地 三重県桑名市寿町2丁目
    物件種目 貸店舗・事務所
    賃料 32.472万円 管理費等 64,944円
    敷金 / 保証金 12ヶ月 / なし 礼金 なし
    敷引 坪単価 0.825万円
    保証金償却 権利金
    造作譲渡 その他一時金
    維持費等 保険等
    使用部分面積 130.12m² 坪数 39.36坪
    築年月 1990年3月(築35年10ヶ月) 階建 / 階 3階建 / 3階
    駐車場 バイク置き場
    駐輪場 有 無料 土地面積
    接道状況 用途地域
    間取り 建物構造 鉄骨造
    アピールポイント 当ビルには、この区画以外にも募集区画がございます。

    ★担当者おすすめポイント★
    ・JR・近鉄「桑名」駅より徒歩2分!
    ・24時間対応機械警備あり!
    ・入居中テナント:学習塾・弁護士事務所・歯医者・事務所等
    建物名・部屋番号 三交桑名駅前ビル 3階ハ区画
    リフォーム履歴
    リノベーション履歴
    特記事項 居抜き、24時間利用可、土日・祝日利用可、最上階、24時間セキュリティー
    備考
    管理形態/管理員の勤務形態:-/-
    エネルギー消費性能
    断熱性能
    目安光熱費
    バス・トイレ
    キッチン
    設備・サービス 空調機あり、換気口あり
    個別空調、非接触型ICカードキー、防犯カメラ、給湯、ビルトインエアコン
    その他 エレベーター
    契約期間 3年 条件等 定期借家定期借家
    引渡可能時期 2026年1月上旬予定 現況
    更新料 物件番号 6988359675
    情報公開日 2025年11月12日 次回更新予定日 2025年12月29日
    ケータイ用バーコード

    QRコード

    スマートフォンでこの物件を見る
    スマートフォンからもこの物件をご覧になれます。
    ※「-」と表示されている項目については、情報提供会社にご確認ください。

    この物件の周辺情報

    周辺施設 ローソン
    距離 152m
    周辺施設 ファミリーマート
    距離 170m

    クイックお問い合わせ

    ここから簡単にお問い合わせをすることができます。
    (SSLでの暗号化での送信を希望されるお客さまは こちら よりお問い合わせください)

    お問い合わせ内容(必須)
    物件のお問い合わせ理由(必須)
    お名前・ご担当者様名(必須) 姓  名 
    メールアドレス(必須)
    ※携帯電話のメールアドレスをご入力される方はこちらをご確認ください
    電話番号(必須)
    - -
    備考欄 希望条件、物件案内希望日、質問などがございましたらご記入ください。
    お問い合わせを行う前に「個人情報の取り扱いについて」を必ずお読みください。
    「個人情報の取り扱いについて」に同意いただいた場合は「上記にご同意の上 確認画面へ進む」のボタンをクリックしてください。

    個人情報の取り扱いについて

    皆さまが送付された個人情報はアットホーム(株)のサーバを経由し、お問い合わせ先の不動産会社にメールまたはFAXにて転送されるためアットホーム(株)にも保管されます。アットホーム(株)で保管された個人情報の取り扱いについては、【こちら】をご覧ください。
    また、本画面でご記入いただいた個人情報は、お問い合わせ先の不動産会社でも保管します。 お問い合わせ先の不動産会社が保管する個人情報の取り扱いについては、不動産会社に直接お問い合わせください。

    情報提供会社

    情報提供会社

    三交不動産(株) 賃貸事業部

    国土交通大臣免許(17)第41号

    交通:
    近鉄名古屋線/津新町駅
    三重県津市丸之内9-18 津丸の内ビル
    TEL:
    059-227-5114
    FAX:
    059-227-5159
    所属団体:
    (一社)中部不動産協会会員
    (一社)不動産協会会員
    (一社)不動産流通経営協会会員
    (公社)首都圏不動産公正取引協議会加盟

    取引態様:貸主

    • 会社情報
    • 40410717
    スマートフォンで
    この不動産会社を見る
    QRコード
    • お問い合わせ
    • 提携サイト等より掲載されている物件情報につきましては、不動産会社詳細情報にリンクされていないものがあります。
    • 物件に関するお問合せは、物件詳細ページの「情報提供会社」に表示されている不動産会社へ直接お願いいたします。
    • 間取図は、現況を優先させていただきます。
    • 映像は物件の一部を撮影したものです。物件の契約にあたっての最終判断はご自身の判断に基づいて行ってください。
    • 仲介手数料について仲介手数料

    アットホームは物件情報の適正化に努めております。 内容に誤りがある場合にはこちらへご連絡ください。


    物件画像: