賃貸や不動産はアットホーム-賃貸マンション・賃貸物件・不動産なら アットホーム

愛知県安城市百石町2丁目(南安城駅)の貸店舗:物件詳細

  • 物件詳細
  • 情報の見方
  • 印刷用画面
交通
所在地
駅徒歩 賃料
管理費等
敷金/保証金
礼金
使用部分面積
坪数/坪単価
物件種目
築年月

名鉄西尾線/南安城

愛知県安城市百石町2丁目

28分

44万円

132万円 / なし

44万円

164.83m²

49.86坪/0.8825万円

貸店舗・事務所(一括)

2009年4月(築16年11ヶ月)

おすすめコメント

◆ビレッジ開発◆2階建、駐車場7台付の事務所店舗です!内覧希望の方はお気軽にご連絡下さい!

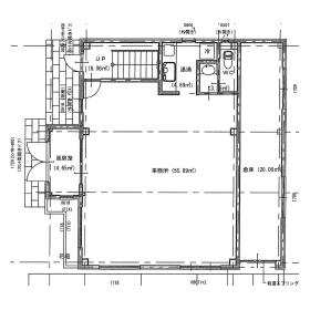
間取図

間取図

<
その他の画像
>
    • お問い合わせ
    交通

    名鉄西尾線 南安城駅 徒歩28分

    その他の交通

    東海道本線 安城駅 徒歩26分

    所在地 愛知県安城市百石町2丁目
    物件種目 貸店舗・事務所(一括)
    賃料 44万円 管理費等
    敷金 / 保証金 132万円 / なし 礼金 44万円
    敷引 坪単価 0.8825万円
    保証金償却 権利金
    造作譲渡 その他一時金
    維持費等 保険等 要 火災保険借家人賠償付き加入必須
    使用部分面積 164.83m² 坪数 49.86坪
    築年月 2009年4月(築16年11ヶ月) 階建 / 階 2階建
    駐車場 空無
    敷地内7台程度駐車可能(小型車、軽自動車用区画含む)
    バイク置き場
    駐輪場 土地面積 226.51m²(公簿)
    接道状況 用途地域 1種中高
    間取り 建物構造 鉄骨造
    アピールポイント 契約の流れ〇
    1:内覧(内覧後、工事業者一緒に現地を確認して見積もりをとったり、融資の準備進めます)
    2:申込(契約条件相談)
    3:審査
    4:契約書作成
    5:入金・契約
    6:引き渡し
    ※申込撤回時に費用はかかりません。
    ご不明な点は、経験豊富な弊社スタッフが丁寧にご対応いたします。
    まずはお気軽にお問合せ下さい。

    現地をご案内できます!
    気になることは、何でもお気軽にお問合せください。
    建物名・部屋番号 百石町2丁目貸事務所
    リフォーム履歴
    リノベーション履歴
    特記事項 土日・祝日利用可、駐車場3台分以上
    備考
    賃貸保証等:加入要(初回保障委託料:賃料の1ヶ月分必要)
    管理形態/管理員の勤務形態:-/-
    ・現況クリーニング渡し(設備の動作保証なし)
    ・1F94.83(約28.69坪)2F 70.00㎡(約21.18坪)
    ・2026年1月以降入居相談
    ・駐車場7台程度可
    ・LPガスあり、給湯やエアコン等設備現況
    エネルギー消費性能
    断熱性能
    目安光熱費
    バス・トイレ トイレ2ヶ所、トイレ
    キッチン
    設備・サービス 給湯、プロパンガス、エアコン
    その他
    契約期間 2年 条件等
    引渡可能時期 相談 現況 居住中
    更新料 物件番号 6988358386
    情報公開日 2025年11月12日 次回更新予定日 2026年2月23日
    ケータイ用バーコード

    QRコード

    スマートフォンでこの物件を見る
    スマートフォンからもこの物件をご覧になれます。
    ※「-」と表示されている項目については、情報提供会社にご確認ください。

    クイックお問い合わせ

    ここから簡単にお問い合わせをすることができます。
    (SSLでの暗号化での送信を希望されるお客さまは こちら よりお問い合わせください)

    お問い合わせ内容(必須)
    物件のお問い合わせ理由(必須)
    お名前・ご担当者様名(必須) 姓  名 
    メールアドレス(必須)
    ※携帯電話のメールアドレスをご入力される方はこちらをご確認ください
    電話番号(必須)
    - -
    備考欄 希望条件、物件案内希望日、質問などがございましたらご記入ください。
    お問い合わせを行う前に「個人情報の取り扱いについて」を必ずお読みください。
    「個人情報の取り扱いについて」に同意いただいた場合は「上記にご同意の上 確認画面へ進む」のボタンをクリックしてください。

    個人情報の取り扱いについて

    皆さまが送付された個人情報はアットホーム(株)のサーバを経由し、お問い合わせ先の不動産会社にメールまたはFAXにて転送されるためアットホーム(株)にも保管されます。アットホーム(株)で保管された個人情報の取り扱いについては、【こちら】をご覧ください。
    また、本画面でご記入いただいた個人情報は、お問い合わせ先の不動産会社でも保管します。 お問い合わせ先の不動産会社が保管する個人情報の取り扱いについては、不動産会社に直接お問い合わせください。

    情報提供会社

    情報提供会社

    (株)ビレッジ開発

    愛知県知事免許(7)第17322号

    交通:
    東海道本線/三河安城駅 徒歩8分
    愛知県安城市三河安城本町2丁目7-13 
    TEL:
    0566-77-5141
    FAX:
    0566-77-4059
    所属団体:
    (公社)愛知県宅地建物取引業協会会員
    東海不動産公正取引協議会加盟

    取引態様:仲介

    • 会社情報
    • 40005111
    スマートフォンで
    この不動産会社を見る
    QRコード
    • お問い合わせ
    • 提携サイト等より掲載されている物件情報につきましては、不動産会社詳細情報にリンクされていないものがあります。
    • 物件に関するお問合せは、物件詳細ページの「情報提供会社」に表示されている不動産会社へ直接お願いいたします。
    • 間取図は、現況を優先させていただきます。
    • 映像は物件の一部を撮影したものです。物件の契約にあたっての最終判断はご自身の判断に基づいて行ってください。
    • 仲介手数料について仲介手数料

    アットホームは物件情報の適正化に努めております。 内容に誤りがある場合にはこちらへご連絡ください。


    物件画像: