賃貸や不動産はアットホーム-賃貸マンション・賃貸物件・不動産なら アットホーム

岡山県岡山市北区田町2丁目(新西大寺町筋駅)の貸店舗:物件詳細

  • 物件詳細
  • 情報の見方
  • 印刷用画面
交通
所在地
駅徒歩 賃料
管理費等
敷金/保証金
礼金
使用部分面積
坪数/坪単価
物件種目
築年月

岡山電軌清輝橋線/新西大寺町筋

岡山県岡山市北区田町2丁目

3分

33万円

5,500円

3ヶ月 / なし

1ヶ月

51.14m²

15.46坪/2.1332万円

貸店舗

2025年12月(新築)

おすすめコメント

新築1階テナントです!自由に内装工事可能なスケルトン渡しです!

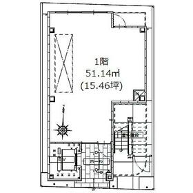
間取図

間取図

  • お問い合わせ
交通

岡山電軌清輝橋線 新西大寺町筋駅 徒歩3分

その他の交通

岡山電軌東山本線 西大寺町・岡山芸術創造劇場ハレノワ前駅 徒歩9分

JR山陽本線 岡山駅 徒歩18分

所在地 岡山県岡山市北区田町2丁目
物件種目 貸店舗
賃料 33万円 管理費等 5,500円
敷金 / 保証金 3ヶ月 / なし 礼金 1ヶ月
敷引 坪単価 2.1332万円
保証金償却 権利金
造作譲渡 その他一時金
維持費等 保険等 要 火災
使用部分面積 51.14m² 坪数 15.46坪
築年月 2025年12月(新築) 階建 / 階 3階建 / 1階
駐車場 バイク置き場
駐輪場 土地面積
接道状況 南 10.0m 公道 用途地域 商業地域
間取り 建物構造 ALC
アピールポイント 1階、2階セット貸し相談応!内階段対応可能です!
建物名・部屋番号  
リフォーム履歴
リノベーション履歴
特記事項 スケルトン、飲食店可
備考
賃貸保証等:加入要(保証会社)
管理形態/管理員の勤務形態:-/-
・現況貸し、スケルトン渡し 
・内装工事借主負担 
・1階、2階セット貸し相談応
 (内階段対応可能です) 
・飲食店相談応(焼肉店不可) 
・業態都度相談応 
・水道代、光熱費実費(個別) 
・ごみ処理代実費
エネルギー消費性能
断熱性能
目安光熱費
バス・トイレ
キッチン
設備・サービス
その他 エレベーター
契約期間 2年 条件等
引渡可能時期 2025年12月上旬予定 現況 未完成
仲介手数料 1.1ヶ月    
更新料 物件番号 6988353768
情報公開日 2025年11月11日 次回更新予定日 2025年12月18日
ケータイ用バーコード

QRコード

スマートフォンでこの物件を見る
スマートフォンからもこの物件をご覧になれます。
※「-」と表示されている項目については、情報提供会社にご確認ください。

この物件の周辺情報

周辺施設 フレッシュ・マルシェ3丁目店
距離 342m
周辺施設 ローソン岡山中央店
距離 189m
周辺施設 川崎医科大学総合医療センター
距離 543m
周辺施設 岡山柳町郵便局
距離 432m
周辺施設 愛媛銀行岡山支店
距離 299m
周辺施設 岡山市役所
距離 772m
周辺施設 岡山市消防局
距離 764m
周辺施設 岡山県警察本部
距離 1130m

クイックお問い合わせ

ここから簡単にお問い合わせをすることができます。
(SSLでの暗号化での送信を希望されるお客さまは こちら よりお問い合わせください)

お問い合わせ内容(必須)
物件のお問い合わせ理由(必須)
お名前・ご担当者様名(必須) 姓  名 
メールアドレス(必須)
※携帯電話のメールアドレスをご入力される方はこちらをご確認ください
電話番号(必須)
- -
備考欄 希望条件、物件案内希望日、質問などがございましたらご記入ください。
お問い合わせを行う前に「個人情報の取り扱いについて」を必ずお読みください。
「個人情報の取り扱いについて」に同意いただいた場合は「上記にご同意の上 確認画面へ進む」のボタンをクリックしてください。

個人情報の取り扱いについて

皆さまが送付された個人情報はアットホーム(株)のサーバを経由し、お問い合わせ先の不動産会社にメールまたはFAXにて転送されるためアットホーム(株)にも保管されます。アットホーム(株)で保管された個人情報の取り扱いについては、【こちら】をご覧ください。
また、本画面でご記入いただいた個人情報は、お問い合わせ先の不動産会社でも保管します。 お問い合わせ先の不動産会社が保管する個人情報の取り扱いについては、不動産会社に直接お問い合わせください。

情報提供会社

情報提供会社

(株)プロマイズ

岡山県知事免許(4)第5026号

交通:
【バス】 今7丁目バス停 停歩10分
岡山県岡山市北区今7丁目6-16 
TEL:
086-805-0705
FAX:
086-805-0702
所属団体:
(公社)全日本不動産協会会員
中国地区不動産公正取引協議会加盟

取引態様:仲介

  • 会社情報
  • 50019342
スマートフォンで
この不動産会社を見る
QRコード
  • お問い合わせ
  • 提携サイト等より掲載されている物件情報につきましては、不動産会社詳細情報にリンクされていないものがあります。
  • 物件に関するお問合せは、物件詳細ページの「情報提供会社」に表示されている不動産会社へ直接お願いいたします。
  • 間取図は、現況を優先させていただきます。
  • 映像は物件の一部を撮影したものです。物件の契約にあたっての最終判断はご自身の判断に基づいて行ってください。
  • 仲介手数料について仲介手数料

アットホームは物件情報の適正化に努めております。 内容に誤りがある場合にはこちらへご連絡ください。


物件画像: