賃貸や不動産はアットホーム-賃貸マンション・賃貸物件・不動産なら アットホーム

広島県東広島市西条町助実(西条駅)の貸店舗:物件詳細

  • 物件詳細
  • 情報の見方
  • 印刷用画面
交通
所在地
駅徒歩 賃料
管理費等
敷金/保証金
礼金
使用部分面積
坪数/坪単価
物件種目
築年月

JR山陽本線/西条

広島県東広島市西条町助実

22分

11万円

3ヶ月 / なし

なし

181.44m²

54.88坪/0.2005万円

貸店舗

1976年2月(築49年11ヶ月)

おすすめコメント

一棟貸しのテナント物件!

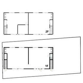
間取図

間取図

<
その他の画像
>
    • お問い合わせ
    交通

    JR山陽本線 西条駅 徒歩22分

    所在地 広島県東広島市西条町助実
    物件種目 貸店舗
    賃料 11万円 管理費等
    敷金 / 保証金 3ヶ月 / なし 礼金 なし
    敷引 坪単価 0.2005万円
    保証金償却 権利金
    造作譲渡 その他一時金
    維持費等 保険等
    使用部分面積 181.44m² 坪数 54.88坪
    築年月 1976年2月(築49年11ヶ月) 階建 / 階 2階建 / 1階~2階部分
    駐車場 有 無料
    建物横:縦列6台分
    バイク置き場
    駐輪場 土地面積 221.62m²(公簿)
    接道状況 用途地域 1種住居
    間取り 建物構造 鉄骨造
    アピールポイント 国道375号線へのアクセスがしやすい立地です!
    建物名・部屋番号  
    リフォーム履歴
    リノベーション履歴
    特記事項 飲食店不可、駐車場3台分以上
    備考
    賃貸保証等:加入要(全保連株式会社(初回:総額賃料の100%、年額:総額賃料の10%、月額:口座振替サービス利用料300円(税別)))
    管理形態/管理員の勤務形態:-/-
    主要採光面:南西向き
    ■現況貸し
    ■貸主は室内(残置設備等)・室外(外壁屋根等)の修繕負担を行いません。
    ■排水は汲み取りです。
    ■新築年月は不明です(建築確認年月を記載しております)
    エネルギー消費性能
    断熱性能
    目安光熱費
    バス・トイレ トイレ
    キッチン
    設備・サービス
    その他
    契約期間 3年 条件等
    引渡可能時期 即時 現況
    仲介手数料 1.1ヶ月    
    更新料 なし 物件番号 6988316289
    情報公開日 2025年11月11日 次回更新予定日 2025年12月23日
    ケータイ用バーコード

    QRコード

    スマートフォンでこの物件を見る
    スマートフォンからもこの物件をご覧になれます。
    ※「-」と表示されている項目については、情報提供会社にご確認ください。

    クイックお問い合わせ

    ここから簡単にお問い合わせをすることができます。
    (SSLでの暗号化での送信を希望されるお客さまは こちら よりお問い合わせください)

    お問い合わせ内容(必須)
    物件のお問い合わせ理由(必須)
    お名前・ご担当者様名(必須) 姓  名 
    メールアドレス(必須)
    ※携帯電話のメールアドレスをご入力される方はこちらをご確認ください
    電話番号(必須)
    - -
    備考欄 希望条件、物件案内希望日、質問などがございましたらご記入ください。
    お問い合わせを行う前に「個人情報の取り扱いについて」を必ずお読みください。
    「個人情報の取り扱いについて」に同意いただいた場合は「上記にご同意の上 確認画面へ進む」のボタンをクリックしてください。

    個人情報の取り扱いについて

    皆さまが送付された個人情報はアットホーム(株)のサーバを経由し、お問い合わせ先の不動産会社にメールまたはFAXにて転送されるためアットホーム(株)にも保管されます。アットホーム(株)で保管された個人情報の取り扱いについては、【こちら】をご覧ください。
    また、本画面でご記入いただいた個人情報は、お問い合わせ先の不動産会社でも保管します。 お問い合わせ先の不動産会社が保管する個人情報の取り扱いについては、不動産会社に直接お問い合わせください。

    情報提供会社

    情報提供会社

    (株)不動産プラザ

    広島県知事免許(10)第5785号

    交通:
    JR山陽本線/西条駅 徒歩9分
    広島県東広島市西条昭和町13-37 シュプリーム松屋ビル101
    TEL:
    082-422-8181
    FAX:
    082-422-8183
    所属団体:
    (公社)広島県宅地建物取引業協会会員
    (公財)日本賃貸住宅管理協会会員
    中国地区不動産公正取引協議会加盟

    取引態様:仲介

    • 会社情報
    • 50017725
    スマートフォンで
    この不動産会社を見る
    QRコード
    • お問い合わせ
    • 提携サイト等より掲載されている物件情報につきましては、不動産会社詳細情報にリンクされていないものがあります。
    • 物件に関するお問合せは、物件詳細ページの「情報提供会社」に表示されている不動産会社へ直接お願いいたします。
    • 間取図は、現況を優先させていただきます。
    • 映像は物件の一部を撮影したものです。物件の契約にあたっての最終判断はご自身の判断に基づいて行ってください。
    • 仲介手数料について仲介手数料

    アットホームは物件情報の適正化に努めております。 内容に誤りがある場合にはこちらへご連絡ください。


    物件画像: