賃貸や不動産はアットホーム-賃貸マンション・賃貸物件・不動産なら アットホーム

大阪府大阪市北区堂島2丁目(西梅田駅)の貸店舗:物件詳細

  • 物件詳細
  • 情報の見方
  • 印刷用画面
交通
所在地
駅徒歩 賃料
管理費等
敷金/保証金
礼金
使用部分面積
坪数/坪単価
物件種目
築年月

地下鉄四つ橋線/西梅田

大阪府大阪市北区堂島2丁目

4分

49.5万円

なし

なし / なし

49.5万円

132.23m²

39.99坪/1.2376万円

貸店舗

1959年1月(築67年)

おすすめコメント

定期借家契約2027年1月31日まで!居抜き店舗(美容室跡)敷金ゼロ、礼金1ヵ月のチャレンジ店舗にオススメです!

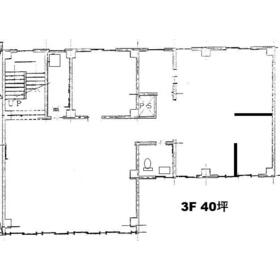
間取図

間取図

外観

外観

<
その他の画像
  • 室内
  • 室内
  • 室内
  • 室内
  • 室内
  • 室内
  • 収納
  • 収納
  • 収納
  • 室内
  • トイレ
>
    • お問い合わせ
    交通

    地下鉄四つ橋線 西梅田駅 徒歩4分

    その他の交通

    JR東西線 北新地駅 徒歩6分

    所在地 大阪府大阪市北区堂島2丁目
    物件種目 貸店舗
    賃料 49.5万円 管理費等 なし
    敷金 / 保証金 なし / なし 礼金 49.5万円
    敷引 坪単価 1.2376万円
    保証金償却 権利金
    造作譲渡 その他一時金
    維持費等 保険等 要 1年 15,000円 USEN
    使用部分面積 132.23m² 坪数 39.99坪
    築年月 1959年1月(築67年) 階建 / 階 地上4階地下1階建 / 3階
    駐車場 バイク置き場
    駐輪場 土地面積
    接道状況 用途地域
    間取り 建物構造 RC
    アピールポイント 定期借家契約2027年1月31日まで!居抜き店舗(美容室跡)
    敷金ゼロ、礼金1ヵ月のチャレンジ店舗にオススメです!
    建物名・部屋番号 (仮称)堂島ビル 3階
    リフォーム履歴
    リノベーション履歴
    特記事項 居抜き、飲食店可、1フロア1テナント
    備考
    賃貸保証等:加入要(USENTRUST(Prime)初回保証料:150%・滞納無しで更新料なし)
    管理形態/管理員の勤務形態:-/-
    ■専用階段有り
    ■定期借家契約:2027年1月31日まで
    ■美容御室跡・何商可
    ■シャンプー台の残置相談可能です
    ※万一成約済み、条件変更の場合はご了承ください。
    エネルギー消費性能
    断熱性能
    目安光熱費
    バス・トイレ トイレ
    キッチン
    設備・サービス 個別空調、収納スペース、室内洗濯機置場、洗濯機置場、エアコン
    その他
    契約期間 2027年1月31日まで 条件等 定期借家定期借家
    引渡可能時期 相談 現況
    仲介手数料 1ヶ月    
    更新料 物件番号 6988284913
    情報公開日 2025年11月6日 次回更新予定日 2025年12月29日
    ケータイ用バーコード

    QRコード

    スマートフォンでこの物件を見る
    スマートフォンからもこの物件をご覧になれます。
    ※「-」と表示されている項目については、情報提供会社にご確認ください。

    この物件の周辺情報

    周辺施設 本間ゴルフ堂島店
    距離 155m
    周辺施設 ファミリーマート近鉄堂島ビル店
    距離 151m
    周辺施設 堂島アバンザ郵便局
    距離 143m
    周辺施設 紀陽銀行大阪堂島営業部
    距離 76m
    周辺施設 (株)ジュンク堂書店大阪本店
    距離 143m
    周辺施設 医療法人渡辺医学会桜橋渡辺リハビリテーション病院
    距離 482m
    周辺施設 大阪市役所
    距離 850m
    周辺施設 快活CLUB西梅田曽根崎新地店
    距離 349m

    クイックお問い合わせ

    ここから簡単にお問い合わせをすることができます。
    (SSLでの暗号化での送信を希望されるお客さまは こちら よりお問い合わせください)

    お問い合わせ内容(必須)
    物件のお問い合わせ理由(必須)
    お名前・ご担当者様名(必須) 姓  名 
    メールアドレス(必須)
    ※携帯電話のメールアドレスをご入力される方はこちらをご確認ください
    電話番号(必須)
    - -
    備考欄 希望条件、物件案内希望日、質問などがございましたらご記入ください。
    お問い合わせを行う前に「個人情報の取り扱いについて」を必ずお読みください。
    「個人情報の取り扱いについて」に同意いただいた場合は「上記にご同意の上 確認画面へ進む」のボタンをクリックしてください。

    個人情報の取り扱いについて

    皆さまが送付された個人情報はアットホーム(株)のサーバを経由し、お問い合わせ先の不動産会社にメールまたはFAXにて転送されるためアットホーム(株)にも保管されます。アットホーム(株)で保管された個人情報の取り扱いについては、【こちら】をご覧ください。
    また、本画面でご記入いただいた個人情報は、お問い合わせ先の不動産会社でも保管します。 お問い合わせ先の不動産会社が保管する個人情報の取り扱いについては、不動産会社に直接お問い合わせください。

    情報提供会社

    情報提供会社

    (株)Office Link

    大阪府知事免許(4)第54231号

    交通:
    地下鉄御堂筋線/本町駅 徒歩1分
    大阪府大阪市中央区南本町3丁目3-14 貴田ビル8階
    TEL:
    06-6226-7400
    FAX:
    06-6226-7474
    所属団体:
    (一社)大阪府宅地建物取引業協会会員
    (公社)近畿地区不動産公正取引協議会加盟

    取引態様:仲介

    • 会社情報
    • 50022142
    スマートフォンで
    この不動産会社を見る
    QRコード
    • お問い合わせ
    • 提携サイト等より掲載されている物件情報につきましては、不動産会社詳細情報にリンクされていないものがあります。
    • 物件に関するお問合せは、物件詳細ページの「情報提供会社」に表示されている不動産会社へ直接お願いいたします。
    • 間取図は、現況を優先させていただきます。
    • 映像は物件の一部を撮影したものです。物件の契約にあたっての最終判断はご自身の判断に基づいて行ってください。
    • 仲介手数料について仲介手数料

    アットホームは物件情報の適正化に努めております。 内容に誤りがある場合にはこちらへご連絡ください。


    物件画像: