賃貸や不動産はアットホーム-賃貸マンション・賃貸物件・不動産なら アットホーム

福岡県福岡市博多区冷泉町(祇園駅)の貸店舗:物件詳細

  • 物件詳細
  • 情報の見方
  • 印刷用画面
交通
所在地
駅徒歩 賃料
管理費等
敷金/保証金
礼金
使用部分面積
坪数/坪単価
物件種目
築年月

地下鉄空港線/祇園

福岡県福岡市博多区冷泉町

4分

57.2万円

10ヶ月 / なし

なし

130.20m²

39.38坪/1.4524万円

貸店舗

2024年6月(築1年7ヶ月)

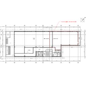
間取図

間取図

その他の画像
    • お問い合わせ
    交通

    地下鉄空港線 祇園駅 徒歩4分

    その他の交通

    地下鉄七隈線 櫛田神社前駅 徒歩6分

    所在地 福岡県福岡市博多区冷泉町
    物件種目 貸店舗
    賃料 57.2万円 管理費等
    敷金 / 保証金 10ヶ月 / なし 礼金 なし
    敷引 坪単価 1.4524万円
    保証金償却 権利金
    造作譲渡 その他一時金
    維持費等 保険等
    使用部分面積 130.20m² 坪数 39.38坪
    築年月 2024年6月(築1年7ヶ月) 階建 / 階 5階建 / 3階
    駐車場 バイク置き場
    駐輪場 土地面積
    接道状況 用途地域 商業地域
    間取り 建物構造 RC
    アピールポイント 新規開業におすすめです!内覧もご相談ください。
    建物名・部屋番号 冷泉町LYFART 3階
    リフォーム履歴
    リノベーション履歴
    特記事項 スケルトン、飲食店不可
    備考
    管理形態/管理員の勤務形態:-/-
    定期借家契約5年:期間応相談/スケルトン/業種:原則クリニックや医療関係/NG業種:テナント内同一業種(消化器内科、整形外科、画像診断クリニック、薬局)、飲食業/保証会社指定有/
    エネルギー消費性能
    断熱性能
    目安光熱費
    バス・トイレ
    キッチン
    設備・サービス 都市ガス
    その他 エレベーター
    契約期間 5年 条件等 定期借家定期借家
    引渡可能時期 即時 現況
    更新料 物件番号 6988283798
    情報公開日 2025年11月6日 次回更新予定日 2026年1月1日
    ケータイ用バーコード

    QRコード

    スマートフォンでこの物件を見る
    スマートフォンからもこの物件をご覧になれます。
    ※「-」と表示されている項目については、情報提供会社にご確認ください。

    クイックお問い合わせ

    ここから簡単にお問い合わせをすることができます。
    (SSLでの暗号化での送信を希望されるお客さまは こちら よりお問い合わせください)

    お問い合わせ内容(必須)
    物件のお問い合わせ理由(必須)
    お名前・ご担当者様名(必須) 姓  名 
    メールアドレス(必須)
    ※携帯電話のメールアドレスをご入力される方はこちらをご確認ください
    電話番号(必須)
    - -
    備考欄 希望条件、物件案内希望日、質問などがございましたらご記入ください。
    お問い合わせを行う前に「個人情報の取り扱いについて」を必ずお読みください。
    「個人情報の取り扱いについて」に同意いただいた場合は「上記にご同意の上 確認画面へ進む」のボタンをクリックしてください。

    個人情報の取り扱いについて

    皆さまが送付された個人情報はアットホーム(株)のサーバを経由し、お問い合わせ先の不動産会社にメールまたはFAXにて転送されるためアットホーム(株)にも保管されます。アットホーム(株)で保管された個人情報の取り扱いについては、【こちら】をご覧ください。
    また、本画面でご記入いただいた個人情報は、お問い合わせ先の不動産会社でも保管します。 お問い合わせ先の不動産会社が保管する個人情報の取り扱いについては、不動産会社に直接お問い合わせください。

    情報提供会社

    情報提供会社

    (株)三好不動産 テナント事業部

    国土交通大臣免許(4)第7912号

    交通:
    地下鉄空港線/天神駅 徒歩2分
    福岡県福岡市中央区天神2丁目14-2 福岡証券ビル7階
    TEL:
    092-716-5000
    所属団体:
    (公社)福岡県宅地建物取引業協会会員
    (一社)九州不動産公正取引協議会加盟

    取引態様:仲介

    • 会社情報
    • 80506666
    スマートフォンで
    この不動産会社を見る
    QRコード
    • お問い合わせ
    • 提携サイト等より掲載されている物件情報につきましては、不動産会社詳細情報にリンクされていないものがあります。
    • 物件に関するお問合せは、物件詳細ページの「情報提供会社」に表示されている不動産会社へ直接お願いいたします。
    • 間取図は、現況を優先させていただきます。
    • 映像は物件の一部を撮影したものです。物件の契約にあたっての最終判断はご自身の判断に基づいて行ってください。
    • 仲介手数料について仲介手数料

    アットホームは物件情報の適正化に努めております。 内容に誤りがある場合にはこちらへご連絡ください。


    物件画像: