賃貸や不動産はアットホーム-賃貸マンション・賃貸物件・不動産なら アットホーム

東京都新宿区新宿2丁目(新宿三丁目駅)の貸店舗:物件詳細

  • 物件詳細
  • 情報の見方
  • 印刷用画面
交通
所在地
駅徒歩 賃料
管理費等
敷金/保証金
礼金
使用部分面積
坪数/坪単価
物件種目
築年月

都営新宿線/新宿三丁目

東京都新宿区新宿2丁目

2分

71.5万円

なし / 450万円

なし

77.32m²

23.38坪/3.057万円

貸店舗・事務所

1985年1月(築41年)

おすすめコメント  スタッフ: 上野 直貴

1フロア1テナント!視認性良好な角地ビル!すぐに内見可能です。【お気軽にお問い合わせください! 03-6261-3433】

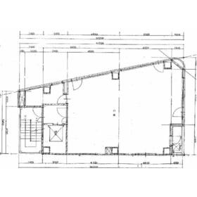
間取図

間取図

外観

外観

<
その他の画像
>
    • お問い合わせ
    交通

    都営新宿線 新宿三丁目駅 徒歩2分

    その他の交通

    東京メトロ丸ノ内線 新宿御苑前駅 徒歩6分

    湘南新宿ライン(宇都宮〜逗子) 新宿駅 徒歩9分

    所在地 東京都新宿区新宿2丁目
    物件種目 貸店舗・事務所
    賃料 71.5万円 管理費等
    敷金 / 保証金 なし / 450万円 礼金 なし
    敷引 坪単価 3.057万円
    保証金償却 解約時20% 権利金
    造作譲渡 その他一時金
    維持費等 保険等
    使用部分面積 77.32m² 坪数 23.38坪
    築年月 1985年1月(築41年) 階建 / 階 11階建 / 2階
    駐車場 バイク置き場
    駐輪場 土地面積
    接道状況 用途地域
    間取り 建物構造 鉄骨造
    アピールポイント 新宿3丁目駅徒歩2分、新宿2丁目交差点に立地しており視認性の良いコンパクトオフィスビルです。室内は角地立地なので2面採光になっており、明るく室内からの眺望も良好です。事務所だけではなく店舗もご相談可能です!
    建物名・部屋番号 山本ビル 2階
    リフォーム履歴
    リノベーション履歴
    特記事項 スケルトン、24時間利用可、土曜日利用可、土日・祝日利用可、飲食店不可、1フロア1テナント、24時間セキュリティー、耐震構造(新耐震基準)
    備考
    賃貸保証等:加入要(月額固定費の1ヶ月分)
    管理形態/管理員の勤務形態:-/-
    エントランス:7時~19:30(時間外は従業員のみテンキー入力で出入り可能)
    光ファイバー
    飲食不可・美容室不可
    EV不停止機能
    解約時スケルトン返却
    エネルギー消費性能
    断熱性能
    目安光熱費
    バス・トイレ
    キッチン
    設備・サービス 個別空調、エアコン、暖房、冷房、光ファイバー
    その他 エレベーター
    契約期間 2年 条件等 定期借家定期借家
    引渡可能時期 即時 現況
    仲介手数料 1ヶ月 適格請求書発行
    更新料 新賃料 1ヶ月 物件番号 6988282197
    情報公開日 2025年11月5日 次回更新予定日 2026年1月1日
    ケータイ用バーコード

    QRコード

    スマートフォンでこの物件を見る
    スマートフォンからもこの物件をご覧になれます。
    ※「-」と表示されている項目については、情報提供会社にご確認ください。

    この物件の周辺情報

    周辺施設 セブンイレブン新宿2丁目新宿通り店
    距離 44m
    周辺施設 大阪王将新宿店
    距離 61m
    周辺施設 新宿二郵便局
    距離 33m
    周辺施設 ドトールコーヒーショップ新宿2丁目店
    距離 102m
    周辺施設 タリーズコーヒー新宿二丁目店
    距離 108m
    周辺施設 中華食堂日高屋新宿3丁目店
    距離 114m
    周辺施設 トモズ新宿二丁目店
    距離 156m
    周辺施設 世界堂ビル駐車場
    距離 94m

    クイックお問い合わせ

    ここから簡単にお問い合わせをすることができます。
    (SSLでの暗号化での送信を希望されるお客さまは こちら よりお問い合わせください)

    お問い合わせ内容(必須)
    物件のお問い合わせ理由(必須)
    お名前・ご担当者様名(必須) 姓  名 
    メールアドレス(必須)
    ※携帯電話のメールアドレスをご入力される方はこちらをご確認ください
    電話番号(必須)
    - -
    備考欄 希望条件、物件案内希望日、質問などがございましたらご記入ください。
    お問い合わせを行う前に「個人情報の取り扱いについて」を必ずお読みください。
    「個人情報の取り扱いについて」に同意いただいた場合は「上記にご同意の上 確認画面へ進む」のボタンをクリックしてください。

    個人情報の取り扱いについて

    皆さまが送付された個人情報はアットホーム(株)のサーバを経由し、お問い合わせ先の不動産会社にメールまたはFAXにて転送されるためアットホーム(株)にも保管されます。アットホーム(株)で保管された個人情報の取り扱いについては、【こちら】をご覧ください。
    また、本画面でご記入いただいた個人情報は、お問い合わせ先の不動産会社でも保管します。 お問い合わせ先の不動産会社が保管する個人情報の取り扱いについては、不動産会社に直接お問い合わせください。

    情報提供会社

    情報提供会社

    (株)ライトハウス

    東京都知事免許(1)第106093号

    交通:
    東京メトロ半蔵門線/半蔵門駅 徒歩2分
    東京都千代田区隼町3-19 清水ビル1階
    TEL:
    03-6261-3433
    FAX:
    03-6261-3439
    所属団体:
    (公社)全日本不動産協会会員
    (公社)首都圏不動産公正取引協議会加盟

    取引態様:仲介

    • 会社情報
    • 00270108
    スマートフォンで
    この不動産会社を見る
    QRコード
    • お問い合わせ
    • 提携サイト等より掲載されている物件情報につきましては、不動産会社詳細情報にリンクされていないものがあります。
    • 物件に関するお問合せは、物件詳細ページの「情報提供会社」に表示されている不動産会社へ直接お願いいたします。
    • 間取図は、現況を優先させていただきます。
    • 映像は物件の一部を撮影したものです。物件の契約にあたっての最終判断はご自身の判断に基づいて行ってください。
    • 仲介手数料について仲介手数料

    アットホームは物件情報の適正化に努めております。 内容に誤りがある場合にはこちらへご連絡ください。


    物件画像: