賃貸や不動産はアットホーム-賃貸マンション・賃貸物件・不動産なら アットホーム

福岡県北九州市小倉南区湯川5丁目(安部山公園駅)の貸店舗:物件詳細

  • 物件詳細
  • 情報の見方
  • 印刷用画面
交通
所在地
駅徒歩 賃料
管理費等
敷金/保証金
礼金
使用部分面積
坪数/坪単価
物件種目
築年月

JR日豊本線/安部山公園
[バス利用可] バス 阿部山入口 停歩1分

福岡県北九州市小倉南区湯川5丁目

4分

11万円

30万円 / なし

20万円

99.20m²

30.00坪/0.3666万円

貸店舗

1972年7月(築53年10ヶ月)

おすすめコメント

賃料改定しました(業種は寿司店に限ります。当初3年間の賃料です。以降は15万円税別)!令和7年10月1日まで営業していた老舗寿司店跡店舗です。居抜き物件です(什器類無償貸与)。

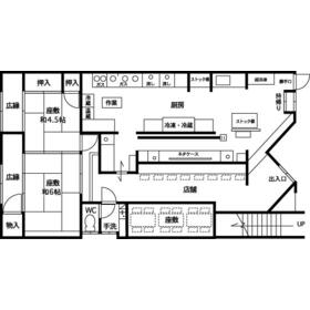
間取図

間取図

※図面と相違する場合は現況優先とします

<
その他の画像
>
    • お問い合わせ
    交通

    JR日豊本線 安部山公園駅 徒歩4分
    [バス利用可] バス 阿部山入口 停歩1分

    所在地 福岡県北九州市小倉南区湯川5丁目
    物件種目 貸店舗
    賃料 11万円 管理費等
    敷金 / 保証金 30万円 / なし 礼金 20万円
    敷引 坪単価 0.3666万円
    保証金償却 権利金
    造作譲渡 その他一時金
    維持費等 保険等
    使用部分面積 99.20m² 坪数 30.00坪
    築年月 1972年7月(築53年10ヶ月) 階建 / 階 2階建 / 1階
    駐車場 バイク置き場
    駐輪場 土地面積
    接道状況 用途地域
    間取り 建物構造 木造
    建物名・部屋番号  
    リフォーム履歴
    リノベーション履歴
    特記事項 居抜き、土日・祝日利用可、飲食店可
    備考
    管理形態/管理員の勤務形態:-/-
    賃料改定しました!(入居から3年間家賃110,000円、3年目以降165,000円)。※業種は寿司店に限る。連帯保証人2名(1名身内)。令和5年外壁、トイレ取替、店内一部クロス張替え。什器備品類無償貸与(修理・保守・点検等借主負担)。店内の改装や撤去・入替が必要な場合は、貸主の承諾を得る事。エアコン現状3台(現状有姿)5年以内の解約の場合敷金の返金無し。
    エネルギー消費性能
    断熱性能
    目安光熱費
    バス・トイレ
    キッチン
    設備・サービス エアコン2台以上
    その他
    契約期間 3年 条件等
    引渡可能時期 相談 現況
    更新料 なし 物件番号 6988278545
    情報公開日 2026年3月28日 次回更新予定日 2026年4月11日
    ケータイ用バーコード

    QRコード

    スマートフォンでこの物件を見る
    スマートフォンからもこの物件をご覧になれます。
    ※「-」と表示されている項目については、情報提供会社にご確認ください。

    クイックお問い合わせ

    ここから簡単にお問い合わせをすることができます。
    (SSLでの暗号化での送信を希望されるお客さまは こちら よりお問い合わせください)

    お問い合わせ内容(必須)
    物件のお問い合わせ理由(必須)
    お名前・ご担当者様名(必須) 姓  名 
    メールアドレス(必須)
    ※携帯電話のメールアドレスをご入力される方はこちらをご確認ください
    電話番号(必須)
    - -
    備考欄 希望条件、物件案内希望日、質問などがございましたらご記入ください。
    お問い合わせを行う前に「個人情報の取り扱いについて」を必ずお読みください。
    「個人情報の取り扱いについて」に同意いただいた場合は「上記にご同意の上 確認画面へ進む」のボタンをクリックしてください。

    個人情報の取り扱いについて

    皆さまが送付された個人情報はアットホーム(株)のサーバを経由し、お問い合わせ先の不動産会社にメールまたはFAXにて転送されるためアットホーム(株)にも保管されます。アットホーム(株)で保管された個人情報の取り扱いについては、【こちら】をご覧ください。
    また、本画面でご記入いただいた個人情報は、お問い合わせ先の不動産会社でも保管します。 お問い合わせ先の不動産会社が保管する個人情報の取り扱いについては、不動産会社に直接お問い合わせください。

    情報提供会社

    情報提供会社

    アプトリーホーム(株)

    福岡県知事免許(4)第16645号

    交通:
    JR鹿児島本線/小倉駅 【バス】 東公園前 停歩1分
    福岡県北九州市小倉北区神岳1丁目5-38 RAY神岳101号
    TEL:
    093-541-1207
    FAX:
    093-541-1208
    所属団体:
    (公社)福岡県宅地建物取引業協会会員
    (一社)九州不動産公正取引協議会加盟

    取引態様:仲介

    • 会社情報
    • 80901559
    スマートフォンで
    この不動産会社を見る
    QRコード
    • お問い合わせ
    • 提携サイト等より掲載されている物件情報につきましては、不動産会社詳細情報にリンクされていないものがあります。
    • 物件に関するお問合せは、物件詳細ページの「情報提供会社」に表示されている不動産会社へ直接お願いいたします。
    • 間取図は、現況を優先させていただきます。
    • 映像は物件の一部を撮影したものです。物件の契約にあたっての最終判断はご自身の判断に基づいて行ってください。
    • 仲介手数料について仲介手数料

    アットホームは物件情報の適正化に努めております。 内容に誤りがある場合にはこちらへご連絡ください。


    物件画像: