賃貸や不動産はアットホーム-賃貸マンション・賃貸物件・不動産なら アットホーム

宮城県仙台市若林区河原町1丁目(河原町駅)の貸店舗:物件詳細

  • 物件詳細
  • 情報の見方
  • 印刷用画面
交通
所在地
駅徒歩 賃料
管理費等
敷金/保証金
礼金
使用部分面積
坪数/坪単価
物件種目
築年月

仙台市南北線/河原町 新着

宮城県仙台市若林区河原町1丁目

3分

70.85万円

6ヶ月 / なし

なし

212.93m²

64.41坪/1.10万円

貸店舗・事務所

2024年7月(築1年5ヶ月)

おすすめコメント

クリニック、美容、医療、介護などの業種におすすめです。地下鉄河原町駅から徒歩3分。河原町商店街の築浅テナントビルです。

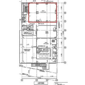
間取図

間取図

<
その他の画像
>
    • お問い合わせ
    交通

    仙台市南北線 河原町駅 徒歩3分

    その他の交通

    仙台市南北線 長町一丁目駅 徒歩9分

    仙台市南北線 愛宕橋駅 徒歩15分

    所在地 宮城県仙台市若林区河原町1丁目
    物件種目 貸店舗・事務所
    賃料 70.85万円 管理費等
    敷金 / 保証金 6ヶ月 / なし 礼金 なし
    敷引 坪単価 1.10万円
    保証金償却 権利金
    造作譲渡 その他一時金
    維持費等 保険等
    使用部分面積 212.93m² 坪数 64.41坪
    築年月 2024年7月(築1年5ヶ月) 階建 / 階 3階建 / 2階
    駐車場 有 16,500円/月 バイク置き場
    駐輪場 有 無料 土地面積
    接道状況 用途地域 近隣商業
    間取り 建物構造 RC
    建物名・部屋番号 みなてらす河原町 2階201区画
    リフォーム履歴
    リノベーション履歴
    特記事項 土日・祝日利用可、バリアフリー
    備考
    管理形態/管理員の勤務形態:-/-
    ○看板設置相談可 ○月極駐車場、時間貸駐車場あり ○3階にも同一面積の募集区画あり
    エネルギー消費性能
    断熱性能
    目安光熱費
    バス・トイレ トイレ2ヶ所、専有部分にトイレあり、共用部分にトイレあり、多機能トイレ
    キッチン
    設備・サービス 看板取付スペースあり、空調機あり
    個別空調、エアコン2台以上、防犯カメラ、火災警報器(報知機)
    その他 エレベーター
    契約期間 5年 条件等 定期借家定期借家
    引渡可能時期 即時 現況
    仲介手数料 1ヶ月    
    更新料 物件番号 6988272543
    情報公開日 2025年11月5日 次回更新予定日 2025年11月19日
    ケータイ用バーコード

    QRコード

    スマートフォンでこの物件を見る
    スマートフォンからもこの物件をご覧になれます。
    ※「-」と表示されている項目については、情報提供会社にご確認ください。

    クイックお問い合わせ

    ここから簡単にお問い合わせをすることができます。
    (SSLでの暗号化での送信を希望されるお客さまは こちら よりお問い合わせください)

    お問い合わせ内容(必須)
    物件のお問い合わせ理由(必須)
    お名前・ご担当者様名(必須) 姓  名 
    メールアドレス(必須)
    ※携帯電話のメールアドレスをご入力される方はこちらをご確認ください
    電話番号(必須)
    - -
    備考欄 希望条件、物件案内希望日、質問などがございましたらご記入ください。
    お問い合わせを行う前に「個人情報の取り扱いについて」を必ずお読みください。
    「個人情報の取り扱いについて」に同意いただいた場合は「上記にご同意の上 確認画面へ進む」のボタンをクリックしてください。

    個人情報の取り扱いについて

    皆さまが送付された個人情報はアットホーム(株)のサーバを経由し、お問い合わせ先の不動産会社にメールまたはFAXにて転送されるためアットホーム(株)にも保管されます。アットホーム(株)で保管された個人情報の取り扱いについては、【こちら】をご覧ください。
    また、本画面でご記入いただいた個人情報は、お問い合わせ先の不動産会社でも保管します。 お問い合わせ先の不動産会社が保管する個人情報の取り扱いについては、不動産会社に直接お問い合わせください。

    情報提供会社

    情報提供会社

    (株)オフィスメディア仙台店

    宮城県知事免許(10)第3000号

    交通:
    JR仙石線/あおば通駅 徒歩1分
    宮城県仙台市青葉区中央2丁目2-10 仙都会舘 2F
    TEL:
    022-265-0131
    FAX:
    022-265-0136
    所属団体:
    (公社)全日本不動産協会会員
    東北地区不動産公正取引協議会加盟

    取引態様:仲介

    • 会社情報
    • 20001394
    スマートフォンで
    この不動産会社を見る
    QRコード
    • お問い合わせ
    • 提携サイト等より掲載されている物件情報につきましては、不動産会社詳細情報にリンクされていないものがあります。
    • 物件に関するお問合せは、物件詳細ページの「情報提供会社」に表示されている不動産会社へ直接お願いいたします。
    • 間取図は、現況を優先させていただきます。
    • 映像は物件の一部を撮影したものです。物件の契約にあたっての最終判断はご自身の判断に基づいて行ってください。
    • 仲介手数料について仲介手数料

    アットホームは物件情報の適正化に努めております。 内容に誤りがある場合にはこちらへご連絡ください。


    物件画像: