賃貸や不動産はアットホーム-賃貸マンション・賃貸物件・不動産なら アットホーム

大阪府豊中市服部元町1丁目(服部天神駅)の貸店舗:物件詳細

  • 物件詳細
  • 情報の見方
  • 印刷用画面
交通
所在地
駅徒歩 賃料
管理費等
敷金/保証金
礼金
使用部分面積
坪数/坪単価
物件種目
築年月

阪急宝塚線/服部天神 新着

大阪府豊中市服部元町1丁目

1分

19.8万円

16,500円

30万円 / なし

33万円

69.00m²

20.87坪/0.9487万円

貸店舗

1968年12月(築57年)

おすすめコメント

阪急電鉄宝塚線】服部天神駅徒歩1分!駅近で通勤に便利!1フロア1テナントで使用用途多数!小規模事業事務所におすすめ!好立地、好物件で新しいビジネスを始めてみませんか?ぜひお問い合わせください!

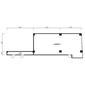
間取図

間取図

外観

外観

その他の画像
  • 室内
  • 室内
    • お問い合わせ
    交通

    阪急宝塚線 服部天神駅 徒歩1分

    その他の交通

    阪急宝塚線 曽根駅 徒歩15分

    阪急宝塚線 庄内駅 徒歩19分

    所在地 大阪府豊中市服部元町1丁目
    物件種目 貸店舗
    賃料 19.8万円 管理費等 16,500円
    敷金 / 保証金 30万円 / なし 礼金 33万円
    敷引 坪単価 0.9487万円
    保証金償却 権利金
    造作譲渡 その他一時金
    維持費等 保険等 要 火災
    使用部分面積 69.00m² 坪数 20.87坪
    築年月 1968年12月(築57年) 階建 / 階 地上5階地下1階建 / 2階
    駐車場 バイク置き場
    駐輪場 土地面積
    接道状況 用途地域
    間取り 建物構造 RC
    アピールポイント 阪急電鉄宝塚線】服部天神駅徒歩1分!駅近で通勤に便利!1フロア1テナントで使用用途多数!小規模事業事務所におすすめ!好立地、好物件で新しいビジネスを始めてみませんか?ぜひお問い合わせください!
    建物名・部屋番号 ユミヤビル 2階
    リフォーム履歴
    リノベーション履歴
    特記事項 飲食店不可、1フロア1テナント
    備考
    賃貸保証等:加入要(貸主指定)
    管理形態/管理員の勤務形態:-/-
    ■照明器具、エアコン、自動ドアは残置物
    ■業種等の使用制限有り(火気使用禁止他)
    ■現状有姿
    ■社名看板掲示の場合は別途月額費用要
    ■面積には収納部分も含む
    エネルギー消費性能
    断熱性能
    目安光熱費
    バス・トイレ トイレ
    キッチン
    設備・サービス 給湯、都市ガス、エアコン、暖房、冷房、火災警報器(報知機)、インターネット対応
    その他
    契約期間 2年 条件等
    引渡可能時期 相談 現況
    更新料 物件番号 6988265484
    情報公開日 2025年11月4日 次回更新予定日 2025年11月18日
    ケータイ用バーコード

    QRコード

    スマートフォンでこの物件を見る
    スマートフォンからもこの物件をご覧になれます。
    ※「-」と表示されている項目については、情報提供会社にご確認ください。

    この物件の周辺情報

    周辺施設 ライフ服部店
    距離 429m
    周辺施設 ファミリーマート服部駅前店
    距離 48m
    周辺施設 ほっかほっか亭服部店
    距離 198m
    周辺施設 ドラッグミック服部店
    距離 3m
    周辺施設 社会医療法人北斗会さわ病院
    距離 885m
    周辺施設 豊中服部郵便局
    距離 352m
    周辺施設 北おおさか信用金庫服部支店
    距離 40m
    周辺施設 南消防署服部出張所
    距離 316m

    クイックお問い合わせ

    ここから簡単にお問い合わせをすることができます。
    (SSLでの暗号化での送信を希望されるお客さまは こちら よりお問い合わせください)

    お問い合わせ内容(必須)
    物件のお問い合わせ理由(必須)
    お名前・ご担当者様名(必須) 姓  名 
    メールアドレス(必須)
    ※携帯電話のメールアドレスをご入力される方はこちらをご確認ください
    電話番号(必須)
    - -
    備考欄 希望条件、物件案内希望日、質問などがございましたらご記入ください。
    お問い合わせを行う前に「個人情報の取り扱いについて」を必ずお読みください。
    「個人情報の取り扱いについて」に同意いただいた場合は「上記にご同意の上 確認画面へ進む」のボタンをクリックしてください。

    個人情報の取り扱いについて

    皆さまが送付された個人情報はアットホーム(株)のサーバを経由し、お問い合わせ先の不動産会社にメールまたはFAXにて転送されるためアットホーム(株)にも保管されます。アットホーム(株)で保管された個人情報の取り扱いについては、【こちら】をご覧ください。
    また、本画面でご記入いただいた個人情報は、お問い合わせ先の不動産会社でも保管します。 お問い合わせ先の不動産会社が保管する個人情報の取り扱いについては、不動産会社に直接お問い合わせください。

    情報提供会社

    情報提供会社

    (株)TFC 大阪営業所

    国土交通大臣免許(1)第10868号

    交通:
    地下鉄御堂筋線/本町駅 徒歩3分
    大阪府大阪市中央区久太郎町2丁目5-31 関電不動産船場ビル12階
    TEL:
    06-4256-1755
    FAX:
    06-4256-0761
    所属団体:
    (一社)大阪府宅地建物取引業協会会員
    (公社)近畿地区不動産公正取引協議会加盟

    取引態様:仲介

    • 会社情報
    • 50110973
    スマートフォンで
    この不動産会社を見る
    QRコード
    • お問い合わせ
    • 提携サイト等より掲載されている物件情報につきましては、不動産会社詳細情報にリンクされていないものがあります。
    • 物件に関するお問合せは、物件詳細ページの「情報提供会社」に表示されている不動産会社へ直接お願いいたします。
    • 間取図は、現況を優先させていただきます。
    • 映像は物件の一部を撮影したものです。物件の契約にあたっての最終判断はご自身の判断に基づいて行ってください。
    • 仲介手数料について仲介手数料

    アットホームは物件情報の適正化に努めております。 内容に誤りがある場合にはこちらへご連絡ください。


    物件画像: