賃貸や不動産はアットホーム-賃貸マンション・賃貸物件・不動産なら アットホーム

岡山県岡山市北区下中野(大元駅)の貸店舗:物件詳細

  • 物件詳細
  • 情報の見方
  • 印刷用画面
交通
所在地
駅徒歩 賃料
管理費等
敷金/保証金
礼金
使用部分面積
坪数/坪単価
物件種目
築年月

宇野線/大元 新着

岡山県岡山市北区下中野

7分

7.7万円

なし

3ヶ月 / なし

1ヶ月

34.71m²

10.49坪/0.7334万円

貸店舗

1993年1月(築32年11ヶ月)

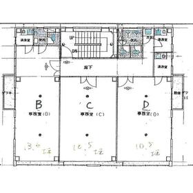
間取図

間取図

間取図

間取図

<
その他の画像
  • 室内
  • 室内
  • 室内
  • 共有部分
  • 共有部分
  • 室内
  • 設備
  • 設備
  • 設備
  • エントランス
  • 共有部分
  • 共有部分
>
    • お問い合わせ
    交通

    宇野線 大元駅 徒歩7分

    所在地 岡山県岡山市北区下中野
    物件種目 貸店舗
    賃料 7.7万円 管理費等 なし
    敷金 / 保証金 3ヶ月 / なし 礼金 1ヶ月
    敷引 坪単価 0.7334万円
    保証金償却 権利金
    造作譲渡 その他一時金 鍵交換代:16,500円
    維持費等 月額決済手数料:550円/月 保険等
    使用部分面積 34.71m² 坪数 10.49坪
    築年月 1993年1月(築32年11ヶ月) 階建 / 階 3階建 / 2階
    駐車場 有 無料(空き3台)
    屋根付き縦列駐車 現地確認要
    バイク置き場
    駐輪場 土地面積
    接道状況 用途地域
    間取り 建物構造 ALC
    建物名・部屋番号  
    リフォーム履歴
    リノベーション履歴
    特記事項 飲食店不可、駐車場3台分以上、角部屋
    備考
    賃貸保証等:加入要(Casa初回保証料100%年間保証料10%月額決済手数料550円)
    管理形態/管理員の勤務形態:-/-
    水道料込み 専用給湯室有り(冷蔵庫、1口コンロあり) 共同トイレ
    エネルギー消費性能
    断熱性能
    目安光熱費
    バス・トイレ トイレ
    キッチン
    設備・サービス 個別空調、給湯、エアコン
    その他
    契約期間 2年 条件等
    引渡可能時期 即時 現況
    更新料 22,000円 物件番号 6988260951
    情報公開日 2025年11月4日 次回更新予定日 2025年11月18日
    ケータイ用バーコード

    QRコード

    スマートフォンでこの物件を見る
    スマートフォンからもこの物件をご覧になれます。
    ※「-」と表示されている項目については、情報提供会社にご確認ください。

    クイックお問い合わせ

    ここから簡単にお問い合わせをすることができます。
    (SSLでの暗号化での送信を希望されるお客さまは こちら よりお問い合わせください)

    お問い合わせ内容(必須)
    物件のお問い合わせ理由(必須)
    お名前・ご担当者様名(必須) 姓  名 
    メールアドレス(必須)
    ※携帯電話のメールアドレスをご入力される方はこちらをご確認ください
    電話番号(必須)
    - -
    備考欄 希望条件、物件案内希望日、質問などがございましたらご記入ください。
    お問い合わせを行う前に「個人情報の取り扱いについて」を必ずお読みください。
    「個人情報の取り扱いについて」に同意いただいた場合は「上記にご同意の上 確認画面へ進む」のボタンをクリックしてください。

    個人情報の取り扱いについて

    皆さまが送付された個人情報はアットホーム(株)のサーバを経由し、お問い合わせ先の不動産会社にメールまたはFAXにて転送されるためアットホーム(株)にも保管されます。アットホーム(株)で保管された個人情報の取り扱いについては、【こちら】をご覧ください。
    また、本画面でご記入いただいた個人情報は、お問い合わせ先の不動産会社でも保管します。 お問い合わせ先の不動産会社が保管する個人情報の取り扱いについては、不動産会社に直接お問い合わせください。

    情報提供会社

    情報提供会社

    (有)クラタ不動産

    岡山県知事免許(7)第3968号

    交通:
    宇野線/大元駅 徒歩1分
    岡山県岡山市北区大元駅前11-7 
    TEL:
    086-233-0523
    FAX:
    086-233-3852
    所属団体:
    (公社)岡山県宅地建物取引業協会会員
    中国地区不動産公正取引協議会加盟

    取引態様:仲介

    • 会社情報
    • 80800107
    スマートフォンで
    この不動産会社を見る
    QRコード
    • お問い合わせ
    • 提携サイト等より掲載されている物件情報につきましては、不動産会社詳細情報にリンクされていないものがあります。
    • 物件に関するお問合せは、物件詳細ページの「情報提供会社」に表示されている不動産会社へ直接お願いいたします。
    • 間取図は、現況を優先させていただきます。
    • 映像は物件の一部を撮影したものです。物件の契約にあたっての最終判断はご自身の判断に基づいて行ってください。
    • 仲介手数料について仲介手数料

    アットホームは物件情報の適正化に努めております。 内容に誤りがある場合にはこちらへご連絡ください。


    物件画像: