賃貸や不動産はアットホーム-賃貸マンション・賃貸物件・不動産なら アットホーム

和歌山県和歌山市米屋町(和歌山市駅)の貸店舗:物件詳細

  • 物件詳細
  • 情報の見方
  • 印刷用画面
交通
所在地
駅徒歩 賃料
管理費等
敷金/保証金
礼金
使用部分面積
坪数/坪単価
物件種目
築年月

JR紀勢本線/和歌山市

和歌山県和歌山市米屋町

14分

16.17万円

3ヶ月 / なし

なし

91.00m²

27.52坪/0.5875万円

貸店舗

1992年7月(築33年10ヶ月)

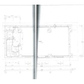
間取図

間取図

その他の画像
    • お問い合わせ
    交通

    JR紀勢本線 和歌山市駅 徒歩14分

    その他の交通

    南海本線 和歌山市駅 徒歩15分

    南海和歌山港線 和歌山市駅 徒歩15分

    所在地 和歌山県和歌山市米屋町
    物件種目 貸店舗
    賃料 16.17万円 管理費等
    敷金 / 保証金 3ヶ月 / なし 礼金 なし
    敷引 坪単価 0.5875万円
    保証金償却 権利金
    造作譲渡 その他一時金
    維持費等 保険等
    使用部分面積 91.00m² 坪数 27.52坪
    築年月 1992年7月(築33年10ヶ月) 階建 / 階 地上6階地下1階建 / 地下1階
    駐車場 バイク置き場
    駐輪場 土地面積
    接道状況 用途地域
    間取り 建物構造 鉄骨造
    建物名・部屋番号 カトレアビル 地下1階
    リフォーム履歴
    リノベーション履歴
    特記事項 土日・祝日利用可、飲食店可、1フロア1テナント
    備考
    賃貸保証等:加入要(全保連 100%)
    管理形態/管理員の勤務形態:-/-
    他所在地:米屋町15
    エネルギー消費性能
    断熱性能
    目安光熱費
    バス・トイレ 男女別トイレ
    キッチン
    設備・サービス
    その他 エレベーター
    契約期間 2年 条件等
    引渡可能時期 相談 現況
    仲介手数料 不要    
    更新料 なし 物件番号 6988260701
    情報公開日 2025年11月8日 次回更新予定日 2026年4月20日
    ケータイ用バーコード

    QRコード

    スマートフォンでこの物件を見る
    スマートフォンからもこの物件をご覧になれます。
    ※「-」と表示されている項目については、情報提供会社にご確認ください。

    クイックお問い合わせ

    ここから簡単にお問い合わせをすることができます。
    (SSLでの暗号化での送信を希望されるお客さまは こちら よりお問い合わせください)

    お問い合わせ内容(必須)
    物件のお問い合わせ理由(必須)
    お名前・ご担当者様名(必須) 姓  名 
    メールアドレス(必須)
    ※携帯電話のメールアドレスをご入力される方はこちらをご確認ください
    電話番号(必須)
    - -
    備考欄 希望条件、物件案内希望日、質問などがございましたらご記入ください。
    お問い合わせを行う前に「個人情報の取り扱いについて」を必ずお読みください。
    「個人情報の取り扱いについて」に同意いただいた場合は「上記にご同意の上 確認画面へ進む」のボタンをクリックしてください。

    個人情報の取り扱いについて

    皆さまが送付された個人情報はアットホーム(株)のサーバを経由し、お問い合わせ先の不動産会社にメールまたはFAXにて転送されるためアットホーム(株)にも保管されます。アットホーム(株)で保管された個人情報の取り扱いについては、【こちら】をご覧ください。
    また、本画面でご記入いただいた個人情報は、お問い合わせ先の不動産会社でも保管します。 お問い合わせ先の不動産会社が保管する個人情報の取り扱いについては、不動産会社に直接お問い合わせください。

    情報提供会社

    情報提供会社

    (株)栄産業

    和歌山県知事免許(12)第1843号

    交通:
    南海本線/和歌山市駅 徒歩3分
    和歌山県和歌山市元博労町26 
    TEL:
    073-428-1100
    FAX:
    073-426-1291
    所属団体:
    (公社)和歌山県宅地建物取引業協会会員
    (公社)近畿地区不動産公正取引協議会加盟

    取引態様:貸主

    • 会社情報
    • 50015632
    スマートフォンで
    この不動産会社を見る
    QRコード
    • お問い合わせ
    • 提携サイト等より掲載されている物件情報につきましては、不動産会社詳細情報にリンクされていないものがあります。
    • 物件に関するお問合せは、物件詳細ページの「情報提供会社」に表示されている不動産会社へ直接お願いいたします。
    • 間取図は、現況を優先させていただきます。
    • 映像は物件の一部を撮影したものです。物件の契約にあたっての最終判断はご自身の判断に基づいて行ってください。
    • 仲介手数料について仲介手数料

    アットホームは物件情報の適正化に努めております。 内容に誤りがある場合にはこちらへご連絡ください。


    物件画像: