賃貸や不動産はアットホーム-賃貸マンション・賃貸物件・不動産なら アットホーム

東京都台東区浅草3丁目(浅草駅)の貸店舗:物件詳細

  • 物件詳細
  • 情報の見方
  • 印刷用画面
交通
所在地
駅徒歩 賃料
管理費等
敷金/保証金
礼金
使用部分面積
坪数/坪単価
物件種目
築年月

つくばエクスプレス/浅草 新着

東京都台東区浅草3丁目

6分

18.7万円

22,000円

なし / 6ヶ月

2.2ヶ月

23.83m²

7.20坪/2.5942万円

貸店舗

1977年1月(築48年11ヶ月)

おすすめコメント

有名店ひしめく人気の浅草観音裏の路面店!きれいな割烹居抜で、開業資金を抑えて開業できます!おひとりでも営業しやすい7.21坪 ぜひ一度お問い合わせください。 担当:筒井(070-4386-3312)

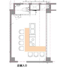
間取図

間取図

室内

室内

店内

<
その他の画像
>
    • お問い合わせ
    交通

    つくばエクスプレス 浅草駅 徒歩6分

    その他の交通

    都営浅草線 浅草駅 徒歩12分

    所在地 東京都台東区浅草3丁目
    物件種目 貸店舗
    賃料 18.7万円 管理費等 22,000円
    敷金 / 保証金 なし / 6ヶ月 礼金 2.2ヶ月
    敷引 坪単価 2.5942万円
    保証金償却 解約時2.2ヶ月 権利金
    造作譲渡 その他一時金
    維持費等 保険等 要 火災
    使用部分面積 23.83m² 坪数 7.20坪
    築年月 1977年1月(築48年11ヶ月) 階建 / 階 地上4階地下1階建 / 1階
    駐車場 バイク置き場
    駐輪場 土地面積
    接道状況 用途地域 商業地域
    間取り 建物構造 SRC
    建物名・部屋番号  
    リフォーム履歴
    リノベーション履歴
    特記事項 居抜き、飲食店可
    備考
    賃貸保証等:加入要(詳細は担当までお問い合わせください)
    管理形態/管理員の勤務形態:-/-
    *保証会社加入要、火災保険加入要(指定あり)
    *カラオケNG
    *水道子メーターにて検針
    *造作譲渡料 400万円(税込)
    エネルギー消費性能
    断熱性能
    目安光熱費
    バス・トイレ
    キッチン
    設備・サービス 冷蔵庫、給湯、動力あり、エアコン、火災警報器(報知機)
    その他
    契約期間 2年 条件等
    引渡可能時期 相談 現況 居住中
    更新料 新賃料 1.5ヶ月 物件番号 6988260358
    情報公開日 2025年11月4日 次回更新予定日 2025年11月18日
    ケータイ用バーコード

    QRコード

    スマートフォンでこの物件を見る
    スマートフォンからもこの物件をご覧になれます。
    ※「-」と表示されている項目については、情報提供会社にご確認ください。

    クイックお問い合わせ

    ここから簡単にお問い合わせをすることができます。
    (SSLでの暗号化での送信を希望されるお客さまは こちら よりお問い合わせください)

    お問い合わせ内容(必須)
    物件のお問い合わせ理由(必須)
    お名前・ご担当者様名(必須) 姓  名 
    メールアドレス(必須)
    ※携帯電話のメールアドレスをご入力される方はこちらをご確認ください
    電話番号(必須)
    - -
    備考欄 希望条件、物件案内希望日、質問などがございましたらご記入ください。
    お問い合わせを行う前に「個人情報の取り扱いについて」を必ずお読みください。
    「個人情報の取り扱いについて」に同意いただいた場合は「上記にご同意の上 確認画面へ進む」のボタンをクリックしてください。

    個人情報の取り扱いについて

    皆さまが送付された個人情報はアットホーム(株)のサーバを経由し、お問い合わせ先の不動産会社にメールまたはFAXにて転送されるためアットホーム(株)にも保管されます。アットホーム(株)で保管された個人情報の取り扱いについては、【こちら】をご覧ください。
    また、本画面でご記入いただいた個人情報は、お問い合わせ先の不動産会社でも保管します。 お問い合わせ先の不動産会社が保管する個人情報の取り扱いについては、不動産会社に直接お問い合わせください。

    情報提供会社

    情報提供会社

    ACRE(株) 首都圏中央グループ

    国土交通大臣免許(3)第8239号

    交通:
    東京メトロ千代田線/大手町駅 徒歩1分
    東京都千代田区丸の内1丁目8番1号 丸の内トラストタワーN館 19階
    TEL:
    03-5860-3660
    FAX:
    03-5860-3661
    所属団体:
    (公社)東京都宅地建物取引業協会会員
    (公社)首都圏不動産公正取引協議会加盟

    取引態様:仲介

    • 会社情報
    • 00162272
    スマートフォンで
    この不動産会社を見る
    QRコード
    • お問い合わせ
    • 提携サイト等より掲載されている物件情報につきましては、不動産会社詳細情報にリンクされていないものがあります。
    • 物件に関するお問合せは、物件詳細ページの「情報提供会社」に表示されている不動産会社へ直接お願いいたします。
    • 間取図は、現況を優先させていただきます。
    • 映像は物件の一部を撮影したものです。物件の契約にあたっての最終判断はご自身の判断に基づいて行ってください。
    • 仲介手数料について仲介手数料

    アットホームは物件情報の適正化に努めております。 内容に誤りがある場合にはこちらへご連絡ください。


    物件画像: