賃貸や不動産はアットホーム-賃貸マンション・賃貸物件・不動産なら アットホーム

兵庫県加古川市野口町二屋(東加古川駅)の貸店舗:物件詳細

  • 物件詳細
  • 情報の見方
  • 印刷用画面
交通
所在地
駅徒歩 賃料
管理費等
敷金/保証金
礼金
使用部分面積
坪数/坪単価
物件種目
築年月

JR山陽本線/東加古川 新着

兵庫県加古川市野口町二屋

23分

13.2万円

11,000円

なし / なし

なし

64.28m²

19.44坪/0.6789万円

貸店舗・事務所

1999年11月(築26年1ヶ月)

おすすめコメント

敷金・礼金0円で初期費用を抑えられます!!人通り、車通りの多いよく目立つ立地です♪

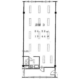
間取図

間取図

外観

外観

その他の画像
  • 室内
  • 室内
  • トイレ
  • キッチン
  • 設備
    • お問い合わせ
    交通

    JR山陽本線 東加古川駅 徒歩23分

    所在地 兵庫県加古川市野口町二屋
    物件種目 貸店舗・事務所
    賃料 13.2万円 管理費等 11,000円
    敷金 / 保証金 なし / なし 礼金 なし
    敷引 坪単価 0.6789万円
    保証金償却 権利金
    造作譲渡 その他一時金
    維持費等 保険等
    使用部分面積 64.28m² 坪数 19.44坪
    築年月 1999年11月(築26年1ヶ月) 階建 / 階 2階建 / 2階
    駐車場 有 7,700円/月 バイク置き場
    駐輪場 土地面積
    接道状況 用途地域 1種中高
    間取り 建物構造 鉄骨造
    アピールポイント エアコン・照明付き◎
    業種ご相談ください!!
    建物名・部屋番号  
    リフォーム履歴
    リノベーション履歴
    特記事項 最上階
    備考
    賃貸保証等:加入要(要確認)
    管理形態/管理員の勤務形態:-/-
    エネルギー消費性能
    断熱性能
    目安光熱費
    バス・トイレ トイレ
    キッチン
    設備・サービス
    その他
    契約期間 2年 条件等
    引渡可能時期 相談 現況
    更新料 物件番号 6988249397
    情報公開日 2025年11月3日 次回更新予定日 2025年11月17日
    ケータイ用バーコード

    QRコード

    スマートフォンでこの物件を見る
    スマートフォンからもこの物件をご覧になれます。
    ※「-」と表示されている項目については、情報提供会社にご確認ください。

    クイックお問い合わせ

    ここから簡単にお問い合わせをすることができます。
    (SSLでの暗号化での送信を希望されるお客さまは こちら よりお問い合わせください)

    お問い合わせ内容(必須)
    物件のお問い合わせ理由(必須)
    お名前・ご担当者様名(必須) 姓  名 
    メールアドレス(必須)
    ※携帯電話のメールアドレスをご入力される方はこちらをご確認ください
    電話番号(必須)
    - -
    備考欄 希望条件、物件案内希望日、質問などがございましたらご記入ください。
    お問い合わせを行う前に「個人情報の取り扱いについて」を必ずお読みください。
    「個人情報の取り扱いについて」に同意いただいた場合は「上記にご同意の上 確認画面へ進む」のボタンをクリックしてください。

    個人情報の取り扱いについて

    皆さまが送付された個人情報はアットホーム(株)のサーバを経由し、お問い合わせ先の不動産会社にメールまたはFAXにて転送されるためアットホーム(株)にも保管されます。アットホーム(株)で保管された個人情報の取り扱いについては、【こちら】をご覧ください。
    また、本画面でご記入いただいた個人情報は、お問い合わせ先の不動産会社でも保管します。 お問い合わせ先の不動産会社が保管する個人情報の取り扱いについては、不動産会社に直接お問い合わせください。

    情報提供会社

    情報提供会社

    チェリーブロッサム(株) ありんく不動産販売

    兵庫県知事免許(2)第401517号

    交通:
    JR山陽本線/加古川駅 徒歩18分
    兵庫県加古川市野口町良野1582 大溝オフィス1階
    TEL:
    079-490-7910
    所属団体:
    (公社)全日本不動産協会会員
    (公社)近畿地区不動産公正取引協議会加盟

    取引態様:仲介

    • 会社情報
    • 50111767
    スマートフォンで
    この不動産会社を見る
    QRコード
    • お問い合わせ
    • 提携サイト等より掲載されている物件情報につきましては、不動産会社詳細情報にリンクされていないものがあります。
    • 物件に関するお問合せは、物件詳細ページの「情報提供会社」に表示されている不動産会社へ直接お願いいたします。
    • 間取図は、現況を優先させていただきます。
    • 映像は物件の一部を撮影したものです。物件の契約にあたっての最終判断はご自身の判断に基づいて行ってください。
    • 仲介手数料について仲介手数料

    アットホームは物件情報の適正化に努めております。 内容に誤りがある場合にはこちらへご連絡ください。


    物件画像: