賃貸や不動産はアットホーム-賃貸マンション・賃貸物件・不動産なら アットホーム

神奈川県横浜市港北区綱島西1丁目(綱島駅)の貸店舗:物件詳細

  • 物件詳細
  • 情報の見方
  • 印刷用画面
交通
所在地
駅徒歩 賃料
管理費等
敷金/保証金
礼金
使用部分面積
坪数/坪単価
物件種目
築年月

東急東横線/綱島

神奈川県横浜市港北区綱島西1丁目

3分

57.2万円

165,000円

なし / 500万円

なし

172.82m²

52.27坪/1.0942万円

貸店舗

1990年9月(築35年6ヶ月)

おすすめコメント  スタッフ: 信末 あや

綱島駅徒歩2分の角地に位置する、焼肉の居抜き物件です。無煙ロースター付きの広い店内が魅力の物件です。

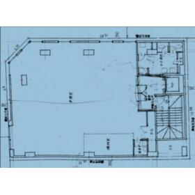
間取図

間取図

間取図

間取図

その他の画像
  • 外観
  • エントランス
  • 室内
  • 室内
  • 設備
  • 設備
    • お問い合わせ
    交通

    東急東横線 綱島駅 徒歩3分

    その他の交通

    東急新横浜線 新綱島駅 徒歩5分

    東急東横線 大倉山駅 徒歩23分

    所在地 神奈川県横浜市港北区綱島西1丁目
    物件種目 貸店舗
    賃料 57.2万円 管理費等 165,000円
    敷金 / 保証金 なし / 500万円 礼金 なし
    敷引 坪単価 1.0942万円
    保証金償却 権利金
    造作譲渡 その他一時金
    維持費等 保険等 要 火災
    使用部分面積 172.82m² 坪数 52.27坪
    築年月 1990年9月(築35年6ヶ月) 階建 / 階 地上4階地下1階建 / 3階
    駐車場 バイク置き場
    駐輪場 土地面積
    接道状況 用途地域
    間取り 建物構造 RC
    アピールポイント M.A.P.ESTATE株式会社(マップ・エステート)は長年にわたり、居住用物件から事業用の・弁護士事務所・会計事務所・コンビニ、スポーツジム・バー・エステ・美容室・飲食店舗など様々な業種の店舗をご紹介してきました。その経験を生かした新規開業のご支援・コンサルティングを行っておりますので是非ご相談下さい。
    【物件調査資料のご提供サービス】
    当社では物件ごとの調査資料を無料でご提供しております。開業にあったって欠かす事の出来ない周辺環境、統計資料、売買においては土地調査資料などご要望の資料作成いたします。
    当社では、マンション、投資用不動産の売買のコンサルティング・仲介も行っておりますので不動産の事なら幅広くご相談ください。
    建物名・部屋番号  
    リフォーム履歴
    リノベーション履歴
    特記事項 居抜き、土日・祝日利用可、飲食店可
    備考
    賃貸保証等:加入要(月額固定費1か月分)
    管理形態/管理員の勤務形態:-/-
    排気ダクト有、ガス10号有、シーシャバー入居可能、NG業態:同ビル同業種(居酒屋以外)、キャバクラ、ガールズバー
    エネルギー消費性能
    断熱性能
    目安光熱費
    バス・トイレ
    キッチン
    設備・サービス 看板取付スペースあり、換気口あり、排煙設備あり、排水設備あり 、水道メーター口径25mm、電気容量(電灯)25KVA、電気容量(動力)35KW
    都市ガス
    その他
    契約期間 3年 条件等
    引渡可能時期 相談 現況
    更新料 新賃料 1.5ヶ月 物件番号 6988240347
    情報公開日 2025年11月2日 次回更新予定日 2026年2月20日
    ケータイ用バーコード

    QRコード

    スマートフォンでこの物件を見る
    スマートフォンからもこの物件をご覧になれます。
    ※「-」と表示されている項目については、情報提供会社にご確認ください。

    クイックお問い合わせ

    ここから簡単にお問い合わせをすることができます。
    (SSLでの暗号化での送信を希望されるお客さまは こちら よりお問い合わせください)

    お問い合わせ内容(必須)
    物件のお問い合わせ理由(必須)
    お名前・ご担当者様名(必須) 姓  名 
    メールアドレス(必須)
    ※携帯電話のメールアドレスをご入力される方はこちらをご確認ください
    電話番号(必須)
    - -
    備考欄 希望条件、物件案内希望日、質問などがございましたらご記入ください。
    お問い合わせを行う前に「個人情報の取り扱いについて」を必ずお読みください。
    「個人情報の取り扱いについて」に同意いただいた場合は「上記にご同意の上 確認画面へ進む」のボタンをクリックしてください。

    個人情報の取り扱いについて

    皆さまが送付された個人情報はアットホーム(株)のサーバを経由し、お問い合わせ先の不動産会社にメールまたはFAXにて転送されるためアットホーム(株)にも保管されます。アットホーム(株)で保管された個人情報の取り扱いについては、【こちら】をご覧ください。
    また、本画面でご記入いただいた個人情報は、お問い合わせ先の不動産会社でも保管します。 お問い合わせ先の不動産会社が保管する個人情報の取り扱いについては、不動産会社に直接お問い合わせください。

    情報提供会社

    情報提供会社

    M.A.P.ESTATE(株)

    東京都知事免許(5)第83384号

    交通:
    東京メトロ銀座線/銀座駅 徒歩7分
    東京都中央区銀座1丁目22-12 藤和銀座一丁目ビル1F
    TEL:
    03-6263-2618
    FAX:
    03-6263-2619
    所属団体:
    (公社)全日本不動産協会会員
    (公社)首都圏不動産公正取引協議会加盟

    取引態様:仲介

    • 会社情報
    • 00130841
    スマートフォンで
    この不動産会社を見る
    QRコード
    • お問い合わせ
    • 提携サイト等より掲載されている物件情報につきましては、不動産会社詳細情報にリンクされていないものがあります。
    • 物件に関するお問合せは、物件詳細ページの「情報提供会社」に表示されている不動産会社へ直接お願いいたします。
    • 間取図は、現況を優先させていただきます。
    • 映像は物件の一部を撮影したものです。物件の契約にあたっての最終判断はご自身の判断に基づいて行ってください。
    • 仲介手数料について仲介手数料

    アットホームは物件情報の適正化に努めております。 内容に誤りがある場合にはこちらへご連絡ください。


    物件画像: