賃貸や不動産はアットホーム-賃貸マンション・賃貸物件・不動産なら アットホーム

兵庫県芦屋市打出町(打出駅)の貸店舗:物件詳細

  • 物件詳細
  • 情報の見方
  • 印刷用画面
交通
所在地
駅徒歩 賃料
管理費等
敷金/保証金
礼金
使用部分面積
坪数/坪単価
物件種目
築年月

阪神本線/打出

兵庫県芦屋市打出町

2分

14.3万円

2ヶ月 / なし

2ヶ月

36.30m²

10.98坪/1.3023万円

貸店舗

1989年2月(築36年11ヶ月)

おすすめコメント  スタッフ: 高野

阪神打出駅から徒歩2分の路面店舗を飲食店向きに改装工事中新装店舗にて、初期投資を抑えて開業可能です定期建物賃貸借契約5年(再契約可)

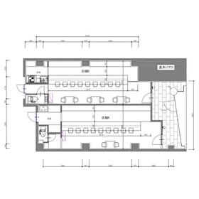
間取図

間取図

その他の画像
    • お問い合わせ
    交通

    阪神本線 打出駅 徒歩2分

    その他の交通

    JR東海道本線 芦屋駅 徒歩14分

    阪神本線 香櫨園駅 徒歩16分

    所在地 兵庫県芦屋市打出町
    物件種目 貸店舗
    賃料 14.3万円 管理費等
    敷金 / 保証金 2ヶ月 / なし 礼金 2ヶ月
    敷引 坪単価 1.3023万円
    保証金償却 権利金
    造作譲渡 その他一時金
    維持費等 保険等
    使用部分面積 36.30m² 坪数 10.98坪
    築年月 1989年2月(築36年11ヶ月) 階建 / 階 4階建 / 1階
    駐車場 バイク置き場
    駐輪場 土地面積
    接道状況 用途地域
    間取り 建物構造 RC
    アピールポイント 阪神打出駅から徒歩2分の路面店舗を飲食店向きに改装工事中
    新装店舗にて、初期投資を抑えて開業可能です
    定期建物賃貸借契約5年(再契約可)
    建物名・部屋番号  
    リフォーム履歴 ■水回り:2025年11月
    キッチン、トイレ、給排水管、給湯器
    ※実施年月は最も古い履歴を表示
    リノベーション履歴
    特記事項 土曜日利用可、土日・祝日利用可、飲食店可、角部屋
    備考
    賃貸保証等:加入要(初回総賃料100%、更新料有)
    管理形態/管理員の勤務形態:-/-
    阪神打出駅から徒歩2分の路面店舗を飲食店向きに改装工事中
    新装店舗にて、初期投資を抑えて開業可能です
    定期建物賃貸借契約5年(再契約可)
    エネルギー消費性能
    断熱性能
    目安光熱費
    バス・トイレ
    キッチン
    設備・サービス 空調機あり、換気口あり
    個別空調、都市ガス、エアコン、暖房、冷房
    その他
    契約期間 5年 条件等 定期借家定期借家
    引渡可能時期 指定有り2025年12月1日 現況
    仲介手数料 1ヶ月    
    更新料 物件番号 6988239423
    情報公開日 2025年11月2日 次回更新予定日 2026年1月1日
    ケータイ用バーコード

    QRコード

    スマートフォンでこの物件を見る
    スマートフォンからもこの物件をご覧になれます。
    ※「-」と表示されている項目については、情報提供会社にご確認ください。

    クイックお問い合わせ

    ここから簡単にお問い合わせをすることができます。
    (SSLでの暗号化での送信を希望されるお客さまは こちら よりお問い合わせください)

    お問い合わせ内容(必須)
    物件のお問い合わせ理由(必須)
    お名前・ご担当者様名(必須) 姓  名 
    メールアドレス(必須)
    ※携帯電話のメールアドレスをご入力される方はこちらをご確認ください
    電話番号(必須)
    - -
    備考欄 希望条件、物件案内希望日、質問などがございましたらご記入ください。
    お問い合わせを行う前に「個人情報の取り扱いについて」を必ずお読みください。
    「個人情報の取り扱いについて」に同意いただいた場合は「上記にご同意の上 確認画面へ進む」のボタンをクリックしてください。

    個人情報の取り扱いについて

    皆さまが送付された個人情報はアットホーム(株)のサーバを経由し、お問い合わせ先の不動産会社にメールまたはFAXにて転送されるためアットホーム(株)にも保管されます。アットホーム(株)で保管された個人情報の取り扱いについては、【こちら】をご覧ください。
    また、本画面でご記入いただいた個人情報は、お問い合わせ先の不動産会社でも保管します。 お問い合わせ先の不動産会社が保管する個人情報の取り扱いについては、不動産会社に直接お問い合わせください。

    情報提供会社

    情報提供会社

    (株)テナントホーム

    兵庫県知事免許(2)第12034号

    交通:
    JR東海道本線/三ノ宮駅 徒歩3分
    兵庫県神戸市中央区北長狭通1丁目3-11 ノアールビル1F
    TEL:
    078-335-7835
    FAX:
    078-335-7834
    所属団体:
    (一社)兵庫県宅地建物取引業協会会員
    (公社)近畿地区不動産公正取引協議会加盟

    取引態様:仲介

    • 会社情報
    • 50103077
    スマートフォンで
    この不動産会社を見る
    QRコード
    • お問い合わせ
    • 提携サイト等より掲載されている物件情報につきましては、不動産会社詳細情報にリンクされていないものがあります。
    • 物件に関するお問合せは、物件詳細ページの「情報提供会社」に表示されている不動産会社へ直接お願いいたします。
    • 間取図は、現況を優先させていただきます。
    • 映像は物件の一部を撮影したものです。物件の契約にあたっての最終判断はご自身の判断に基づいて行ってください。
    • 仲介手数料について仲介手数料

    アットホームは物件情報の適正化に努めております。 内容に誤りがある場合にはこちらへご連絡ください。


    物件画像: