賃貸や不動産はアットホーム-賃貸マンション・賃貸物件・不動産なら アットホーム

東京都江東区古石場1丁目(越中島駅)の貸店舗:物件詳細

  • 物件詳細
  • 情報の見方
  • 印刷用画面
交通
所在地
駅徒歩 賃料
管理費等
敷金/保証金
礼金
使用部分面積
坪数/坪単価
物件種目
築年月

JR京葉線/越中島 新着

東京都江東区古石場1丁目

2分

25.85万円

なし / 6ヶ月

1ヶ月

24.76m²

7.48坪/3.4514万円

貸店舗

1980年9月(築45年3ヶ月)

おすすめコメント  スタッフ: 山﨑 源

清澄通り沿いの1階路面店です。平成24年にスケルトンからリフォームしました!

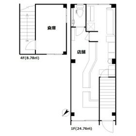
間取図

間取図

外観

外観

清澄通り沿いの路面店

  • お問い合わせ
交通

JR京葉線 越中島駅 徒歩2分

その他の交通

東京メトロ東西線 門前仲町駅 徒歩3分

都営大江戸線 門前仲町駅 徒歩3分

所在地 東京都江東区古石場1丁目
物件種目 貸店舗
賃料 25.85万円 管理費等
敷金 / 保証金 なし / 6ヶ月 礼金 1ヶ月
敷引 坪単価 3.4514万円
保証金償却 解約時2ヶ月 権利金
造作譲渡 その他一時金
維持費等 保険等 要 3年 当社規定火災
使用部分面積 24.76m² 坪数 7.48坪
築年月 1980年9月(築45年3ヶ月) 階建 / 階 4階建 / 1階
駐車場 バイク置き場
駐輪場 土地面積
接道状況 用途地域
間取り 建物構造 鉄骨造
建物名・部屋番号  
リフォーム履歴
リノベーション履歴
特記事項 居抜き、飲食店可
備考
賃貸保証等:加入要(契約時賃料総額100%1年毎賃料総額10%)
管理形態/管理員の勤務形態:-/-
上階が住居のため、カラオケは禁止
看板・内部造作・空調・給排水等各設備は残置 修繕費用は入居者負担造作変更・設備交換は貸主に要承諾必須
エネルギー消費性能
断熱性能
目安光熱費
バス・トイレ トイレ
キッチン
設備・サービス 冷蔵庫、都市ガス、エアコン
その他
契約期間 3年 条件等
引渡可能時期 相談 現況 使用中
更新料 新賃料 1ヶ月 物件番号 6988227745
情報公開日 2025年11月1日 次回更新予定日 2025年11月15日
ケータイ用バーコード

QRコード

スマートフォンでこの物件を見る
スマートフォンからもこの物件をご覧になれます。
※「-」と表示されている項目については、情報提供会社にご確認ください。

この物件の周辺情報

周辺施設 アブアブ赤札堂深川店
距離 568m
周辺施設 マルエツ佃店
距離 1039m
周辺施設 北野エースフーズブティック門前仲町店
距離 858m
周辺施設 ファミリーマート牡丹一丁目店
距離 66m
周辺施設 セブンイレブン江東牡丹1丁目店
距離 101m
周辺施設 くすりの福太郎門前仲町店
距離 337m
周辺施設 国立東京海洋大学越中島キャンパス
距離 440m
周辺施設 江東牡丹一郵便局
距離 59m

クイックお問い合わせ

ここから簡単にお問い合わせをすることができます。
(SSLでの暗号化での送信を希望されるお客さまは こちら よりお問い合わせください)

お問い合わせ内容(必須)
物件のお問い合わせ理由(必須)
お名前・ご担当者様名(必須) 姓  名 
メールアドレス(必須)
※携帯電話のメールアドレスをご入力される方はこちらをご確認ください
電話番号(必須)
- -
備考欄 希望条件、物件案内希望日、質問などがございましたらご記入ください。
お問い合わせを行う前に「個人情報の取り扱いについて」を必ずお読みください。
「個人情報の取り扱いについて」に同意いただいた場合は「上記にご同意の上 確認画面へ進む」のボタンをクリックしてください。

個人情報の取り扱いについて

皆さまが送付された個人情報はアットホーム(株)のサーバを経由し、お問い合わせ先の不動産会社にメールまたはFAXにて転送されるためアットホーム(株)にも保管されます。アットホーム(株)で保管された個人情報の取り扱いについては、【こちら】をご覧ください。
また、本画面でご記入いただいた個人情報は、お問い合わせ先の不動産会社でも保管します。 お問い合わせ先の不動産会社が保管する個人情報の取り扱いについては、不動産会社に直接お問い合わせください。

情報提供会社

情報提供会社

(株)大江戸不動産

東京都知事免許(5)第82902号

交通:
都営大江戸線/清澄白河駅 徒歩1分
東京都江東区清澄3丁目4-12 
TEL:
03-6659-3399
FAX:
03-5245-6210
所属団体:
(公社)全日本不動産協会会員
(公社)首都圏不動産公正取引協議会加盟

取引態様:仲介

  • 会社情報
  • 00051563
スマートフォンで
この不動産会社を見る
QRコード
  • お問い合わせ
  • 提携サイト等より掲載されている物件情報につきましては、不動産会社詳細情報にリンクされていないものがあります。
  • 物件に関するお問合せは、物件詳細ページの「情報提供会社」に表示されている不動産会社へ直接お願いいたします。
  • 間取図は、現況を優先させていただきます。
  • 映像は物件の一部を撮影したものです。物件の契約にあたっての最終判断はご自身の判断に基づいて行ってください。
  • 仲介手数料について仲介手数料

アットホームは物件情報の適正化に努めております。 内容に誤りがある場合にはこちらへご連絡ください。


物件画像: