賃貸や不動産はアットホーム-賃貸マンション・賃貸物件・不動産なら アットホーム

東京都世田谷区経堂2丁目(経堂駅)の貸店舗:物件詳細

  • 物件詳細
  • 情報の見方
  • 印刷用画面
交通
所在地
駅徒歩 賃料
管理費等
敷金/保証金
礼金
使用部分面積
坪数/坪単価
物件種目
築年月

小田急小田原線/経堂

東京都世田谷区経堂2丁目

5分

19.8万円

なし

なし / 6ヶ月

1ヶ月

26.08m²

7.88坪/2.5098万円

貸店舗

2025年10月(築1年未満)

おすすめコメント

【現地集合、ご内覧後・即解散】お客様にとって不要な営業行為は一切致しません。当社の募集物件は、全て大家さんと直接お取引の物件。※来店不要!現地待ち合わせでのご案内の為、事前にお電話予約が必要です。

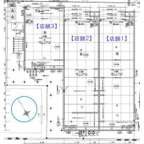
間取図

間取図

外観

外観

<
その他の画像
  • 外観
  • 室内
  • 室内
  • 室内
  • 設備
  • その他
  • その他
  • 設備
  • 設備
  • その他
  • 外観
  • 外観
>
    • お問い合わせ
    交通

    小田急小田原線 経堂駅 徒歩5分

    その他の交通

    東急世田谷線 山下駅 徒歩16分

    小田急小田原線 豪徳寺駅 徒歩16分

    所在地 東京都世田谷区経堂2丁目
    物件種目 貸店舗
    賃料 19.8万円 管理費等 なし
    敷金 / 保証金 なし / 6ヶ月 礼金 1ヶ月
    敷引 坪単価 2.5098万円
    保証金償却 解約時2ヶ月 権利金
    造作譲渡 その他一時金 なし
    維持費等 保険等 要 2年 24160
    使用部分面積 26.08m² 坪数 7.88坪
    築年月 2025年10月(築1年未満) 階建 / 階 3階建 / 1階
    駐車場 バイク置き場
    駐輪場 土地面積
    接道状況 用途地域
    間取り 建物構造 木造
    アピールポイント この物件は「大家さん・当社」との直接お取引の物件のため、ご希望条件やご交渉など、ご相談ございましたらお気軽にご相談下さいませ。 

    尚、来店不要のため現地待ち合わせでご案内させていただきます。
    その他、ご希望がございましたらお知らせ下さいませ。
    建物名・部屋番号 MK maison 店舗3
    リフォーム履歴
    リノベーション履歴
    特記事項 土日・祝日利用可、飲食店可、角部屋、保証人不要
    備考
    賃貸保証等:利用可(日本テナント保証など/初回総賃料の100%~(※初回払い切りプランあり))
    管理形態/管理員の勤務形態:-/-
    主要採光面:北東向き
    ・不可:過度な重飲食、23時以降の営業、営業中ドアオープン、大音量BGM、店前/喫煙、話、自転車 
    ・外壁看板設置可能 
    ・原則:スケルトン渡し&返し ※施工業者指定あり 
    ・更新事務手0.5ヵ月+税
    エネルギー消費性能
    断熱性能
    目安光熱費
    バス・トイレ
    キッチン
    設備・サービス シャッター付き
    電動シャッター、火災警報器(報知機)
    その他
    契約期間 2年 条件等
    引渡可能時期 2025年12月上旬予定 現況
    仲介手数料 1ヶ月    
    更新料 新賃料 1ヶ月 物件番号 6988223465
    情報公開日 2025年12月8日 次回更新予定日 2026年1月3日
    ケータイ用バーコード

    QRコード

    スマートフォンでこの物件を見る
    スマートフォンからもこの物件をご覧になれます。
    ※「-」と表示されている項目については、情報提供会社にご確認ください。

    この物件の周辺情報

    周辺施設 まいばすけっと経堂すずらん通り店
    距離 37m
    周辺施設 スーパーオオゼキ経堂駅前店
    距離 302m
    周辺施設 無印良品500経堂コルティ店
    距離 306m
    周辺施設 セブンイレブン世田谷経堂すずらん通り店
    距離 192m
    周辺施設 ドラッグストアスマイル経堂すずらん店
    距離 300m
    周辺施設 社会福祉法人児玉新生会児玉経堂病院
    距離 193m
    周辺施設 経堂駅前郵便局
    距離 473m
    周辺施設 宮坂北小緑地
    距離 585m

    クイックお問い合わせ

    ここから簡単にお問い合わせをすることができます。
    (SSLでの暗号化での送信を希望されるお客さまは こちら よりお問い合わせください)

    お問い合わせ内容(必須)
    物件のお問い合わせ理由(必須)
    お名前・ご担当者様名(必須) 姓  名 
    メールアドレス(必須)
    ※携帯電話のメールアドレスをご入力される方はこちらをご確認ください
    電話番号(必須)
    - -
    備考欄 希望条件、物件案内希望日、質問などがございましたらご記入ください。
    お問い合わせを行う前に「個人情報の取り扱いについて」を必ずお読みください。
    「個人情報の取り扱いについて」に同意いただいた場合は「上記にご同意の上 確認画面へ進む」のボタンをクリックしてください。

    個人情報の取り扱いについて

    皆さまが送付された個人情報はアットホーム(株)のサーバを経由し、お問い合わせ先の不動産会社にメールまたはFAXにて転送されるためアットホーム(株)にも保管されます。アットホーム(株)で保管された個人情報の取り扱いについては、【こちら】をご覧ください。
    また、本画面でご記入いただいた個人情報は、お問い合わせ先の不動産会社でも保管します。 お問い合わせ先の不動産会社が保管する個人情報の取り扱いについては、不動産会社に直接お問い合わせください。

    情報提供会社

    情報提供会社

    (株)八秀

    東京都知事免許(4)第91589号

    交通:
    小田急小田原線/代々木上原駅 徒歩3分
    東京都渋谷区元代々木町10-7 代々木五月ビル2F
    TEL:
    03-3467-8855
    FAX:
    03-3467-8856
    所属団体:
    (公社)東京都宅地建物取引業協会会員
    (公社)首都圏不動産公正取引協議会加盟

    取引態様:仲介

    • 会社情報
    • 00102753
    スマートフォンで
    この不動産会社を見る
    QRコード
    • お問い合わせ
    • 提携サイト等より掲載されている物件情報につきましては、不動産会社詳細情報にリンクされていないものがあります。
    • 物件に関するお問合せは、物件詳細ページの「情報提供会社」に表示されている不動産会社へ直接お願いいたします。
    • 間取図は、現況を優先させていただきます。
    • 映像は物件の一部を撮影したものです。物件の契約にあたっての最終判断はご自身の判断に基づいて行ってください。
    • 仲介手数料について仲介手数料

    アットホームは物件情報の適正化に努めております。 内容に誤りがある場合にはこちらへご連絡ください。


    物件画像: