賃貸や不動産はアットホーム-賃貸マンション・賃貸物件・不動産なら アットホーム

岩手県紫波郡紫波町日詰字丸盛(紫波中央駅)の貸店舗:物件詳細

  • 物件詳細
  • 情報の見方
  • 印刷用画面
交通
所在地
駅徒歩 賃料
管理費等
敷金/保証金
礼金
使用部分面積
坪数/坪単価
物件種目
築年月

JR東北本線/紫波中央

岩手県紫波郡紫波町日詰字丸盛

4分

242万円

3ヶ月 / なし

1ヶ月

371.57m²

112.39坪/2.1531万円

貸店舗・事務所(一括)

2015年4月(築10年9ヶ月)

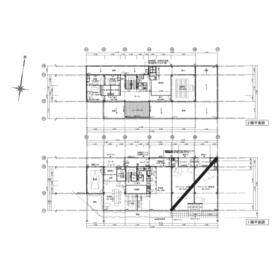
間取図

間取図

<
その他の画像
  • 駐車場
>
    • お問い合わせ
    交通

    JR東北本線 紫波中央駅 徒歩4分

    所在地 岩手県紫波郡紫波町日詰字丸盛
    物件種目 貸店舗・事務所(一括)
    賃料 242万円 管理費等
    敷金 / 保証金 3ヶ月 / なし 礼金 1ヶ月
    敷引 坪単価 2.1531万円
    保証金償却 権利金
    造作譲渡 その他一時金
    維持費等 保険等
    使用部分面積 371.57m² 坪数 112.39坪
    築年月 2015年4月(築10年9ヶ月) 階建 / 階 2階建
    駐車場 有 無料
    外駐車場約20台、車庫6台付
    バイク置き場
    駐輪場 土地面積
    接道状況 用途地域
    間取り 建物構造 鉄骨造
    建物名・部屋番号 株式会社IINA
    リフォーム履歴
    リノベーション履歴
    特記事項 大型トラック搬入可、駐車場3台分以上、24時間セキュリティー
    備考
    賃貸保証等:加入要(アーク賃貸保証)
    管理形態/管理員の勤務形態:-/-
    店舗利用可。事務所利用可。更新事務手数料:22,000円(税込)
    エネルギー消費性能
    断熱性能
    目安光熱費
    バス・トイレ バス・トイレ別、専有部分に男女別トイレあり
    キッチン
    設備・サービス 収納スペース、防犯カメラ、給湯、ビルトインエアコン
    その他 荷積みスペース
    契約期間 5年 条件等
    引渡可能時期 相談 現況
    更新料 物件番号 6988201353
    情報公開日 2025年10月30日 次回更新予定日 2025年12月31日
    ケータイ用バーコード

    QRコード

    スマートフォンでこの物件を見る
    スマートフォンからもこの物件をご覧になれます。
    ※「-」と表示されている項目については、情報提供会社にご確認ください。

    この物件の周辺情報

    周辺施設 ユニバース紫波店
    距離 162m
    周辺施設 オガールベース
    距離 582m
    周辺施設 ファミリーマート紫波中央店
    距離 62m
    周辺施設 ツルハドラッグ紫波中央店
    距離 130m
    周辺施設 紫波郵便局
    距離 962m
    周辺施設 岩手銀行紫波支店
    距離 769m
    周辺施設 東北銀行紫波支店
    距離 841m
    周辺施設 紫波町役場
    距離 646m

    クイックお問い合わせ

    ここから簡単にお問い合わせをすることができます。
    (SSLでの暗号化での送信を希望されるお客さまは こちら よりお問い合わせください)

    お問い合わせ内容(必須)
    物件のお問い合わせ理由(必須)
    お名前・ご担当者様名(必須) 姓  名 
    メールアドレス(必須)
    ※携帯電話のメールアドレスをご入力される方はこちらをご確認ください
    電話番号(必須)
    - -
    備考欄 希望条件、物件案内希望日、質問などがございましたらご記入ください。
    お問い合わせを行う前に「個人情報の取り扱いについて」を必ずお読みください。
    「個人情報の取り扱いについて」に同意いただいた場合は「上記にご同意の上 確認画面へ進む」のボタンをクリックしてください。

    個人情報の取り扱いについて

    皆さまが送付された個人情報はアットホーム(株)のサーバを経由し、お問い合わせ先の不動産会社にメールまたはFAXにて転送されるためアットホーム(株)にも保管されます。アットホーム(株)で保管された個人情報の取り扱いについては、【こちら】をご覧ください。
    また、本画面でご記入いただいた個人情報は、お問い合わせ先の不動産会社でも保管します。 お問い合わせ先の不動産会社が保管する個人情報の取り扱いについては、不動産会社に直接お問い合わせください。

    情報提供会社

    情報提供会社

    (有)アライブ

    岩手県知事免許(5)第2144号

    交通:
    JR東北本線/盛岡駅 徒歩20分 【バス】 盛岡バスセンター 停歩3分
    岩手県盛岡市中ノ橋通1丁目5-33 
    TEL:
    019-604-8911
    FAX:
    019-604-8912
    所属団体:
    (公社)全日本不動産協会会員
    東北地区不動産公正取引協議会加盟

    取引態様:仲介

    • 会社情報
    • 20002197
    スマートフォンで
    この不動産会社を見る
    QRコード
    • お問い合わせ
    • 提携サイト等より掲載されている物件情報につきましては、不動産会社詳細情報にリンクされていないものがあります。
    • 物件に関するお問合せは、物件詳細ページの「情報提供会社」に表示されている不動産会社へ直接お願いいたします。
    • 間取図は、現況を優先させていただきます。
    • 映像は物件の一部を撮影したものです。物件の契約にあたっての最終判断はご自身の判断に基づいて行ってください。
    • 仲介手数料について仲介手数料

    アットホームは物件情報の適正化に努めております。 内容に誤りがある場合にはこちらへご連絡ください。


    物件画像: