賃貸や不動産はアットホーム-賃貸マンション・賃貸物件・不動産なら アットホーム

愛知県名古屋市西区那古野1丁目(国際センター駅)の貸店舗:物件詳細

  • 物件詳細
  • 情報の見方
  • 印刷用画面
交通
所在地
駅徒歩 賃料
管理費等
敷金/保証金
礼金
使用部分面積
坪数/坪単価
物件種目
築年月

名古屋市桜通線/国際センター

愛知県名古屋市西区那古野1丁目

8分

60.17万円

なし / 6ヶ月

なし

166.95m²

50.50坪/1.1915万円

貸店舗

1975年7月(築50年5ヶ月)

おすすめコメント

ホテル事業歓迎。宿泊施設及び大型施設向けの物件です。2026年末に向けて建物1棟を大規模リニューアル工事予定です。1階及び2階は区画分けを行い3階を1フロア若しくは分割で考えております。

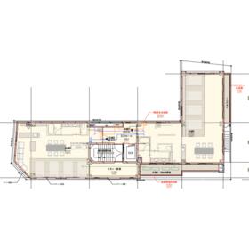
間取図

間取図

宿泊施設イメージ図、引き渡しはスケルトンです。

外観イメージパースです。変更の可能性もあります。

その他の画像
    • お問い合わせ
    交通

    名古屋市桜通線 国際センター駅 徒歩8分

    その他の交通

    名古屋市鶴舞線 丸の内駅 徒歩9分

    名古屋市東山線 名古屋駅 徒歩14分

    所在地 愛知県名古屋市西区那古野1丁目
    物件種目 貸店舗
    賃料 60.17万円 管理費等
    敷金 / 保証金 なし / 6ヶ月 礼金 なし
    敷引 坪単価 1.1915万円
    保証金償却 権利金
    造作譲渡 その他一時金
    維持費等 口座振替手数料:440円/月 保険等
    使用部分面積 166.95m² 坪数 50.50坪
    築年月 1975年7月(築50年5ヶ月) 階建 / 階 地上6階地下1階建 / 3階
    駐車場 バイク置き場
    駐輪場 土地面積
    接道状況 用途地域
    間取り 建物構造 RC
    アピールポイント 「円頓寺」交差点から東に入った「円頓寺商店街」の通りに面した建物です。
    様々な飲食店や物販店、演劇やボルダリングなどの店舗や建物も増えてきているエリアです。
    定期的に行われる商店街でのイベントも魅力の一つです。
    建物名・部屋番号  
    リフォーム履歴
    リノベーション履歴
    特記事項 スケルトン、飲食店可
    備考
    賃貸保証等:加入要(初回保証料:賃料総額1ヶ月分 年間保証料:賃料総額0.1ヶ月分)
    管理形態/管理員の勤務形態:-/-
    バルコニー:18.18m²
    ※賃料以外に毎月管理費が発生します。(金額調整中)
    ※保証金償却:3年未満100%+税、3年以上5年未満70%+税、5年以上50%+税
    ※引き渡し時期:調整中 引き渡し状態:スケルトン
    ※ゴミ処分費あり。ゴミ業者は指定です。
    ※先着順ではありません。審査があります。
    ※保証会社とは別に、連帯保証に1名が必要です。
    ※内装工事前に貸主より工事承認をもらう必要あり。借主は着工前に店舗内の平面図や立面図、設備図、工程表等の指示された工事図面を
     貸主及び管理会社へ提出し、貸主及び管理会社は図面を元に工事内容の確認作業を行う。工事作業時の利用規約あり。
    ※看板、のれん、玄関・間仕切りなど共用部分に面する部分のデザイン等は貸主の承諾を必要とします。看板設置位置指定あり。
    ※円頓寺商店街組合への加入が必須です。加入金及び年間?組合費等が実費でかかります。別途商店街組合規則あり。 
     町内会費:年3,600円
    ※ダクト・給湯器・室外機・ゴミ置き場は指定位置を設定いたします。
    ※業種業態により、賃料条件等が変わる場合があります。
    エネルギー消費性能
    断熱性能
    目安光熱費
    バス・トイレ
    キッチン
    設備・サービス 看板取付スペースあり
    その他
    契約期間 10年 条件等 定期借家定期借家
    引渡可能時期 相談 現況 使用中
    仲介手数料 1ヶ月 適格請求書発行
    更新料 物件番号 6988171146
    情報公開日 2025年10月27日 次回更新予定日 2025年11月18日
    ケータイ用バーコード

    QRコード

    スマートフォンでこの物件を見る
    スマートフォンからもこの物件をご覧になれます。
    ※「-」と表示されている項目については、情報提供会社にご確認ください。

    クイックお問い合わせ

    ここから簡単にお問い合わせをすることができます。
    (SSLでの暗号化での送信を希望されるお客さまは こちら よりお問い合わせください)

    お問い合わせ内容(必須)
    物件のお問い合わせ理由(必須)
    お名前・ご担当者様名(必須) 姓  名 
    メールアドレス(必須)
    ※携帯電話のメールアドレスをご入力される方はこちらをご確認ください
    電話番号(必須)
    - -
    備考欄 希望条件、物件案内希望日、質問などがございましたらご記入ください。
    お問い合わせを行う前に「個人情報の取り扱いについて」を必ずお読みください。
    「個人情報の取り扱いについて」に同意いただいた場合は「上記にご同意の上 確認画面へ進む」のボタンをクリックしてください。

    個人情報の取り扱いについて

    皆さまが送付された個人情報はアットホーム(株)のサーバを経由し、お問い合わせ先の不動産会社にメールまたはFAXにて転送されるためアットホーム(株)にも保管されます。アットホーム(株)で保管された個人情報の取り扱いについては、【こちら】をご覧ください。
    また、本画面でご記入いただいた個人情報は、お問い合わせ先の不動産会社でも保管します。 お問い合わせ先の不動産会社が保管する個人情報の取り扱いについては、不動産会社に直接お問い合わせください。

    情報提供会社

    情報提供会社

    (株)不動産工房

    愛知県知事免許(5)第20148号

    交通:
    名古屋市東山線/名古屋駅 徒歩4分
    愛知県名古屋市西区名駅2丁目27-8 名古屋プライムセントラルタワー18F
    TEL:
    052-571-1191
    FAX:
    052-571-1192

    取引態様:仲介

    • 会社情報
    • 40007371
    スマートフォンで
    この不動産会社を見る
    QRコード
    • お問い合わせ
    • 提携サイト等より掲載されている物件情報につきましては、不動産会社詳細情報にリンクされていないものがあります。
    • 物件に関するお問合せは、物件詳細ページの「情報提供会社」に表示されている不動産会社へ直接お願いいたします。
    • 間取図は、現況を優先させていただきます。
    • 映像は物件の一部を撮影したものです。物件の契約にあたっての最終判断はご自身の判断に基づいて行ってください。
    • 仲介手数料について仲介手数料

    アットホームは物件情報の適正化に努めております。 内容に誤りがある場合にはこちらへご連絡ください。


    物件画像: