賃貸や不動産はアットホーム-賃貸マンション・賃貸物件・不動産なら アットホーム

愛知県春日井市鳥居松町4丁目(春日井駅)の貸店舗:物件詳細

  • 物件詳細
  • 情報の見方
  • 印刷用画面
交通
所在地
駅徒歩 賃料
管理費等
敷金/保証金
礼金
使用部分面積
坪数/坪単価
物件種目
築年月

JR中央線/春日井

愛知県春日井市鳥居松町4丁目

16分

13.2万円

24,000円

なし / 19.2万円

なし

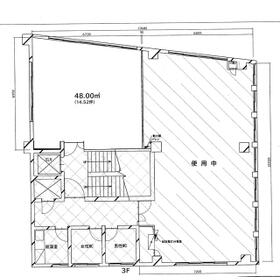
48.00m²

14.51坪/0.9091万円

貸店舗

1982年3月(築43年10ヶ月)

間取図

間取図

その他の画像
    • お問い合わせ
    交通

    JR中央線 春日井駅 徒歩16分

    所在地 愛知県春日井市鳥居松町4丁目
    物件種目 貸店舗
    賃料 13.2万円 管理費等 24,000円
    敷金 / 保証金 なし / 19.2万円 礼金 なし
    敷引 坪単価 0.9091万円
    保証金償却 解約時50% 契約期間2年以内の解約の場合は100%の償却とします。 権利金
    造作譲渡 その他一時金
    維持費等 保険等
    使用部分面積 48.00m² 坪数 14.51坪
    築年月 1982年3月(築43年10ヶ月) 階建 / 階 5階建 / 3階
    駐車場 バイク置き場
    駐輪場 土地面積
    接道状況 用途地域 商業地域
    間取り 建物構造 SRC
    建物名・部屋番号  
    リフォーム履歴
    リノベーション履歴
    特記事項 都道府県道沿いに面する
    備考
    賃貸保証等:加入要(ジェイリース加入 賃料総額の1ケ月分)
    管理形態/管理員の勤務形態:-/-
    旧19号線沿い! 敷地内駐車場相談可  1台/¥7.700
    エネルギー消費性能
    断熱性能
    目安光熱費
    バス・トイレ
    キッチン
    設備・サービス エアコン、火災警報器(報知機)
    その他
    契約期間 2年 条件等
    引渡可能時期 相談 現況
    適格請求書発行
    更新料 なし 物件番号 6988170721
    情報公開日 2025年10月31日 次回更新予定日 2025年12月30日
    ケータイ用バーコード

    QRコード

    スマートフォンでこの物件を見る
    スマートフォンからもこの物件をご覧になれます。
    ※「-」と表示されている項目については、情報提供会社にご確認ください。

    この物件の周辺情報

    周辺施設 清水屋春日井店
    距離 721m
    周辺施設 ファミリーマート春日井鳥居松三丁目店
    距離 254m
    周辺施設 セブンイレブン春日井鳥居松町店
    距離 248m
    周辺施設 スギ薬局春日井中央店
    距離 454m
    周辺施設 春日井市役所前郵便局
    距離 225m
    周辺施設 三菱UFJ銀行春日井支店
    距離 193m
    周辺施設 大垣共立銀行春日井市役所出張所
    距離 504m
    周辺施設 東濃信用金庫春日井支店
    距離 507m

    クイックお問い合わせ

    ここから簡単にお問い合わせをすることができます。
    (SSLでの暗号化での送信を希望されるお客さまは こちら よりお問い合わせください)

    お問い合わせ内容(必須)
    物件のお問い合わせ理由(必須)
    お名前・ご担当者様名(必須) 姓  名 
    メールアドレス(必須)
    ※携帯電話のメールアドレスをご入力される方はこちらをご確認ください
    電話番号(必須)
    - -
    備考欄 希望条件、物件案内希望日、質問などがございましたらご記入ください。
    お問い合わせを行う前に「個人情報の取り扱いについて」を必ずお読みください。
    「個人情報の取り扱いについて」に同意いただいた場合は「上記にご同意の上 確認画面へ進む」のボタンをクリックしてください。

    個人情報の取り扱いについて

    皆さまが送付された個人情報はアットホーム(株)のサーバを経由し、お問い合わせ先の不動産会社にメールまたはFAXにて転送されるためアットホーム(株)にも保管されます。アットホーム(株)で保管された個人情報の取り扱いについては、【こちら】をご覧ください。
    また、本画面でご記入いただいた個人情報は、お問い合わせ先の不動産会社でも保管します。 お問い合わせ先の不動産会社が保管する個人情報の取り扱いについては、不動産会社に直接お問い合わせください。

    情報提供会社

    情報提供会社

    (有)孝東

    愛知県知事免許(5)第19975号

    愛知県春日井市六軒屋町3丁目194 
    TEL:
    0568-82-0248
    FAX:
    0568-83-7523
    所属団体:
    (公社)愛知県宅地建物取引業協会会員
    東海不動産公正取引協議会加盟

    取引態様:仲介

    • 会社情報
    • 40007471
    スマートフォンで
    この不動産会社を見る
    QRコード
    • お問い合わせ
    • 提携サイト等より掲載されている物件情報につきましては、不動産会社詳細情報にリンクされていないものがあります。
    • 物件に関するお問合せは、物件詳細ページの「情報提供会社」に表示されている不動産会社へ直接お願いいたします。
    • 間取図は、現況を優先させていただきます。
    • 映像は物件の一部を撮影したものです。物件の契約にあたっての最終判断はご自身の判断に基づいて行ってください。
    • 仲介手数料について仲介手数料

    アットホームは物件情報の適正化に努めております。 内容に誤りがある場合にはこちらへご連絡ください。


    物件画像: