賃貸や不動産はアットホーム-賃貸マンション・賃貸物件・不動産なら アットホーム

大阪府大阪市都島区都島北通2丁目(都島駅)の貸店舗:物件詳細

  • 物件詳細
  • 情報の見方
  • 印刷用画面
交通
所在地
駅徒歩 賃料
管理費等
敷金/保証金
礼金
使用部分面積
坪数/坪単価
物件種目
築年月

地下鉄谷町線/都島

大阪府大阪市都島区都島北通2丁目

6分

27万円

なし

なし / なし

70万円

124.62m²

37.69坪/0.7163万円

貸店舗

1960年1月(築65年11ヶ月)

おすすめコメント

★重飲食可能!★居酒屋居抜き物件★譲渡金なし★2階建ての広々空間!料理を運ぶ専用EVがあるので配膳もラクラクです。大通りに面しているので視認性も良好。業種などなんでもご相談ください

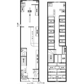
間取図

間取図

<
その他の画像
>
    • お問い合わせ
    交通

    地下鉄谷町線 都島駅 徒歩6分

    その他の交通

    地下鉄谷町線 野江内代駅 徒歩9分

    JRおおさか東線 JR野江駅 徒歩14分

    所在地 大阪府大阪市都島区都島北通2丁目
    物件種目 貸店舗
    賃料 27万円 管理費等 なし
    敷金 / 保証金 なし / なし 礼金 70万円
    敷引 坪単価 0.7163万円
    保証金償却 権利金
    造作譲渡 造作譲渡無償 その他一時金
    維持費等 保険等
    使用部分面積 124.62m² 坪数 37.69坪
    築年月 1960年1月(築65年11ヶ月) 階建 / 階 2階建 / 1階~2階部分
    駐車場 バイク置き場
    駐輪場 土地面積
    接道状況 用途地域
    間取り 建物構造 木造
    アピールポイント ・大阪のテナントは、Orange Estaにお任せください。
     店舗、小売店、サロン関係全てご紹介可能です。
     弊社の強みとして、ネット媒体に載っていない未公開物件の取り扱いもしております。
     お気軽にお問い合わせ下さい。

    ■弊社の得意分野の一つとして「店舗売却」が御座います。

    閉店や移転を考えているお客様にとって、有益な情報のご提供や弊社から最善の売却方法をご提案出来ます!!

    今手元にお持ちの物件を貸したいけど相場が分からないお客様、入居付けに自信が無く空室を抱えてる方等、幅広くご対応が可能です。

    テナント賃貸は是非「OrangeEsta」にお任せください!!

    お客様がご希望される条件に添える物件を最速で探して参ります。

    お気軽にお問い合わせください。
    建物名・部屋番号 居酒屋跡/譲渡金なし/重飲食可/座敷9卓/テーブル4席/カウンターあり 1棟
    リフォーム履歴
    リノベーション履歴
    特記事項 居抜き、24時間利用可、土曜日利用可、土日・祝日利用可、飲食店可、1フロア1テナント、IT重説対応物件、国道沿いに面する
    備考
    管理形態/管理員の勤務形態:-/-
    IT重説対応物件
    エネルギー消費性能
    断熱性能
    目安光熱費
    バス・トイレ トイレ2ヶ所、トイレ、多機能トイレ
    キッチン
    設備・サービス 看板取付スペースあり、シャッター付き、空調機あり、換気口あり、排煙設備あり、グリストラップあり、厨房防水あり、排水設備あり
    エアコン2台以上、収納スペース、シャッター雨戸、給湯、都市ガス、動力あり、ビルトインエアコン、エアコン、暖房、冷房、インターネット対応
    その他
    契約期間 2年 条件等
    引渡可能時期 即時 現況
    適格請求書発行
    更新料 物件番号 6988147977
    情報公開日 2025年10月25日 次回更新予定日 2025年11月8日
    ケータイ用バーコード

    QRコード

    スマートフォンでこの物件を見る
    スマートフォンからもこの物件をご覧になれます。
    ※「-」と表示されている項目については、情報提供会社にご確認ください。

    この物件の周辺情報

    周辺施設 デイリーカナート都島店
    距離 306m
    周辺施設 グルメシティ都島本通店
    距離 544m
    周辺施設 ファミリーマート都島北通店
    距離 91m
    周辺施設 ガスト都島本通店(から好し取扱店)
    距離 128m
    周辺施設 大阪府立都島工業高校
    距離 615m
    周辺施設 大阪市立高倉中学校
    距離 510m
    周辺施設 都島公園
    距離 538m
    周辺施設 都島屋内プール
    距離 281m

    クイックお問い合わせ

    ここから簡単にお問い合わせをすることができます。
    (SSLでの暗号化での送信を希望されるお客さまは こちら よりお問い合わせください)

    お問い合わせ内容(必須)
    物件のお問い合わせ理由(必須)
    お名前・ご担当者様名(必須) 姓  名 
    メールアドレス(必須)
    ※携帯電話のメールアドレスをご入力される方はこちらをご確認ください
    電話番号(必須)
    - -
    備考欄 希望条件、物件案内希望日、質問などがございましたらご記入ください。
    お問い合わせを行う前に「個人情報の取り扱いについて」を必ずお読みください。
    「個人情報の取り扱いについて」に同意いただいた場合は「上記にご同意の上 確認画面へ進む」のボタンをクリックしてください。

    個人情報の取り扱いについて

    皆さまが送付された個人情報はアットホーム(株)のサーバを経由し、お問い合わせ先の不動産会社にメールまたはFAXにて転送されるためアットホーム(株)にも保管されます。アットホーム(株)で保管された個人情報の取り扱いについては、【こちら】をご覧ください。
    また、本画面でご記入いただいた個人情報は、お問い合わせ先の不動産会社でも保管します。 お問い合わせ先の不動産会社が保管する個人情報の取り扱いについては、不動産会社に直接お問い合わせください。

    情報提供会社

    情報提供会社

    (株)Orange Esta

    大阪府知事免許(1)第62950号

    交通:
    地下鉄谷町線/中崎町駅 徒歩5分
    大阪府大阪市北区中崎西4丁目3-32 ARCA梅田ビル603号
    TEL:
    06-6676-8875
    FAX:
    06-6676-8876
    所属団体:
    (公社)全日本不動産協会会員
    (公社)近畿地区不動産公正取引協議会加盟

    取引態様:仲介

    • 会社情報
    • 50111440
    スマートフォンで
    この不動産会社を見る
    QRコード
    • お問い合わせ
    • 提携サイト等より掲載されている物件情報につきましては、不動産会社詳細情報にリンクされていないものがあります。
    • 物件に関するお問合せは、物件詳細ページの「情報提供会社」に表示されている不動産会社へ直接お願いいたします。
    • 間取図は、現況を優先させていただきます。
    • 映像は物件の一部を撮影したものです。物件の契約にあたっての最終判断はご自身の判断に基づいて行ってください。
    • 仲介手数料について仲介手数料

    アットホームは物件情報の適正化に努めております。 内容に誤りがある場合にはこちらへご連絡ください。


    物件画像: