賃貸や不動産はアットホーム-賃貸マンション・賃貸物件・不動産なら アットホーム

千葉県松戸市常盤平7丁目(五香駅)の貸店舗:物件詳細

  • 物件詳細
  • 情報の見方
  • 印刷用画面
交通
所在地
駅徒歩 賃料
管理費等
敷金/保証金
礼金
使用部分面積
坪数/坪単価
物件種目
築年月

京成松戸線/五香

千葉県松戸市常盤平7丁目

13分

38.5万円

なし / 6ヶ月

2.2ヶ月

134.14m²

40.57坪/0.9489万円

貸店舗・事務所(一括)

2008年11月(築17年2ヶ月)

おすすめコメント

県道281号(松戸鎌ケ谷線)に面する!スーパーマルエツ正面・ローソン隣接の立地環境!駐車スペース2~3台分付き!お問い合わせは、担当:安岡(090-3479-7118)までお電話ください。

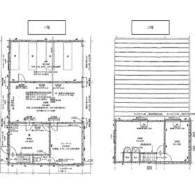
間取図

間取図

その他の画像
    • お問い合わせ
    交通

    京成松戸線 五香駅 徒歩13分

    その他の交通

    京成松戸線 常盤平駅 徒歩17分

    所在地 千葉県松戸市常盤平7丁目
    物件種目 貸店舗・事務所(一括)
    賃料 38.5万円 管理費等
    敷金 / 保証金 なし / 6ヶ月 礼金 2.2ヶ月
    敷引 坪単価 0.9489万円
    保証金償却 解約時1.1ヶ月 権利金
    造作譲渡 その他一時金
    維持費等 保険等 要 借家人賠償付火災
    使用部分面積 134.14m² 坪数 40.57坪
    築年月 2008年11月(築17年2ヶ月) 階建 / 階 2階建
    駐車場 有 無料
    敷地内2~3台駐車可能
    バイク置き場
    駐輪場 土地面積
    接道状況 用途地域 2種住居
    間取り 建物構造 木造
    建物名・部屋番号 BLUE BOX
    リフォーム履歴
    リノベーション履歴
    特記事項 飲食店可
    備考
    賃貸保証等:加入要(初回保証料(月額物件費用税込み100%)2年目以降年間保証料(月額物件費用税込み10%))
    管理形態/管理員の勤務形態:-/-
    現況「事務所区画(1階・2階)+倉庫区画×2」の構造ですが、内装壁の部分撤去は自由ですので、1階をつながった1区画として使用することも可。
    またそれに関する現状回復義務の免除も相談可。
    エネルギー消費性能
    断熱性能
    目安光熱費
    バス・トイレ
    キッチン
    設備・サービス
    その他
    契約期間 3年 条件等
    引渡可能時期 2026年4月中旬予定 現況 居住中
    更新料 新賃料 1.1ヶ月 物件番号 6988120677
    情報公開日 2025年10月23日 次回更新予定日 2025年12月24日
    ケータイ用バーコード

    QRコード

    スマートフォンでこの物件を見る
    スマートフォンからもこの物件をご覧になれます。
    ※「-」と表示されている項目については、情報提供会社にご確認ください。

    クイックお問い合わせ

    ここから簡単にお問い合わせをすることができます。
    (SSLでの暗号化での送信を希望されるお客さまは こちら よりお問い合わせください)

    お問い合わせ内容(必須)
    物件のお問い合わせ理由(必須)
    お名前・ご担当者様名(必須) 姓  名 
    メールアドレス(必須)
    ※携帯電話のメールアドレスをご入力される方はこちらをご確認ください
    電話番号(必須)
    - -
    備考欄 希望条件、物件案内希望日、質問などがございましたらご記入ください。
    お問い合わせを行う前に「個人情報の取り扱いについて」を必ずお読みください。
    「個人情報の取り扱いについて」に同意いただいた場合は「上記にご同意の上 確認画面へ進む」のボタンをクリックしてください。

    個人情報の取り扱いについて

    皆さまが送付された個人情報はアットホーム(株)のサーバを経由し、お問い合わせ先の不動産会社にメールまたはFAXにて転送されるためアットホーム(株)にも保管されます。アットホーム(株)で保管された個人情報の取り扱いについては、【こちら】をご覧ください。
    また、本画面でご記入いただいた個人情報は、お問い合わせ先の不動産会社でも保管します。 お問い合わせ先の不動産会社が保管する個人情報の取り扱いについては、不動産会社に直接お問い合わせください。

    情報提供会社

    情報提供会社

    ACRE(株) 首都圏中央グループ

    国土交通大臣免許(3)第8239号

    交通:
    東京メトロ千代田線/大手町駅 徒歩1分
    東京都千代田区丸の内1丁目8番1号 丸の内トラストタワーN館 19階
    TEL:
    03-5860-3660
    FAX:
    03-5860-3661
    所属団体:
    (公社)東京都宅地建物取引業協会会員
    (公社)首都圏不動産公正取引協議会加盟

    取引態様:仲介

    • 会社情報
    • 00162272
    スマートフォンで
    この不動産会社を見る
    QRコード
    • お問い合わせ
    • 提携サイト等より掲載されている物件情報につきましては、不動産会社詳細情報にリンクされていないものがあります。
    • 物件に関するお問合せは、物件詳細ページの「情報提供会社」に表示されている不動産会社へ直接お願いいたします。
    • 間取図は、現況を優先させていただきます。
    • 映像は物件の一部を撮影したものです。物件の契約にあたっての最終判断はご自身の判断に基づいて行ってください。
    • 仲介手数料について仲介手数料

    アットホームは物件情報の適正化に努めております。 内容に誤りがある場合にはこちらへご連絡ください。


    物件画像: