賃貸や不動産はアットホーム-賃貸マンション・賃貸物件・不動産なら アットホーム

神奈川県横浜市中区長者町9丁目(関内駅)の貸店舗:物件詳細

  • 物件詳細
  • 情報の見方
  • 印刷用画面
交通
所在地
駅徒歩 賃料
管理費等
敷金/保証金
礼金
使用部分面積
坪数/坪単価
物件種目
築年月

JR根岸線/関内

神奈川県横浜市中区長者町9丁目

7分

39.45万円

73,040円

なし / 198万円

46.75万円

87.77m²

26.55坪/1.4859万円

貸店舗

1996年8月(築29年4ヶ月)

おすすめコメント

JR根岸線 関内 徒歩7分 複数路線利用可能 飲食可能です(バー・スナックなどにおすすめ)

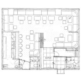
間取図

間取図

その他の画像
    • お問い合わせ
    交通

    JR根岸線 関内駅 徒歩7分

    その他の交通

    京急本線 日ノ出町駅 徒歩3分

    所在地 神奈川県横浜市中区長者町9丁目
    物件種目 貸店舗
    賃料 39.45万円 管理費等 73,040円
    敷金 / 保証金 なし / 198万円 礼金 46.75万円
    敷引 坪単価 1.4859万円
    保証金償却 権利金
    造作譲渡 その他一時金
    維持費等 保険等
    使用部分面積 87.77m² 坪数 26.55坪
    築年月 1996年8月(築29年4ヶ月) 階建 / 階 地上7階地下1階建 / 4階
    駐車場 バイク置き場
    駐輪場 土地面積
    接道状況 用途地域
    間取り 建物構造 SRC
    建物名・部屋番号 ニューシティー21ビル 409・410
    リフォーム履歴
    リノベーション履歴
    特記事項 飲食店可
    備考
    管理形態/管理員の勤務形態:-/-
    リース店舗 店舗設備:内装什器(ボトル棚、イス、テーブル他)
    エアコン、冷蔵庫、給湯器、ガスコンロ、
    2槽シンク他
    エネルギー消費性能
    断熱性能
    目安光熱費
    バス・トイレ トイレ2ヶ所、トイレ
    キッチン
    設備・サービス 個別空調、冷蔵庫、給湯、都市ガス、エアコン
    その他 エレベーター
    契約期間 2年 条件等
    引渡可能時期 即時 現況
    更新料 なし 物件番号 6988082940
    情報公開日 2025年10月21日 次回更新予定日 2025年11月18日
    ケータイ用バーコード

    QRコード

    スマートフォンでこの物件を見る
    スマートフォンからもこの物件をご覧になれます。
    ※「-」と表示されている項目については、情報提供会社にご確認ください。

    クイックお問い合わせ

    ここから簡単にお問い合わせをすることができます。
    (SSLでの暗号化での送信を希望されるお客さまは こちら よりお問い合わせください)

    お問い合わせ内容(必須)
    物件のお問い合わせ理由(必須)
    お名前・ご担当者様名(必須) 姓  名 
    メールアドレス(必須)
    ※携帯電話のメールアドレスをご入力される方はこちらをご確認ください
    電話番号(必須)
    - -
    備考欄 希望条件、物件案内希望日、質問などがございましたらご記入ください。
    お問い合わせを行う前に「個人情報の取り扱いについて」を必ずお読みください。
    「個人情報の取り扱いについて」に同意いただいた場合は「上記にご同意の上 確認画面へ進む」のボタンをクリックしてください。

    個人情報の取り扱いについて

    皆さまが送付された個人情報はアットホーム(株)のサーバを経由し、お問い合わせ先の不動産会社にメールまたはFAXにて転送されるためアットホーム(株)にも保管されます。アットホーム(株)で保管された個人情報の取り扱いについては、【こちら】をご覧ください。
    また、本画面でご記入いただいた個人情報は、お問い合わせ先の不動産会社でも保管します。 お問い合わせ先の不動産会社が保管する個人情報の取り扱いについては、不動産会社に直接お問い合わせください。

    情報提供会社

    情報提供会社

    (株)ネクストビレッジ

    神奈川県知事免許(1)第32626号

    交通:
    JR東海道本線/川崎駅 徒歩12分 【バス】4分 貝塚 停歩1分
    神奈川県川崎市川崎区貝塚1丁目1-5 
    TEL:
    044-222-1575
    FAX:
    044-330-1578
    所属団体:
    (公社)神奈川県宅地建物取引業協会会員
    (公社)首都圏不動産公正取引協議会加盟

    取引態様:仲介

    • 会社情報
    • 00278387
    スマートフォンで
    この不動産会社を見る
    QRコード
    • お問い合わせ
    • 提携サイト等より掲載されている物件情報につきましては、不動産会社詳細情報にリンクされていないものがあります。
    • 物件に関するお問合せは、物件詳細ページの「情報提供会社」に表示されている不動産会社へ直接お願いいたします。
    • 間取図は、現況を優先させていただきます。
    • 映像は物件の一部を撮影したものです。物件の契約にあたっての最終判断はご自身の判断に基づいて行ってください。
    • 仲介手数料について仲介手数料

    アットホームは物件情報の適正化に努めております。 内容に誤りがある場合にはこちらへご連絡ください。


    物件画像: