賃貸や不動産はアットホーム-賃貸マンション・賃貸物件・不動産なら アットホーム

富山県富山市綾田町1丁目(稲荷町駅)の貸店舗:物件詳細

  • 物件詳細
  • 情報の見方
  • 印刷用画面
交通
所在地
駅徒歩 賃料
管理費等
敷金/保証金
礼金
使用部分面積
坪数/坪単価
物件種目
築年月

富山地鉄本線/稲荷町 新着

富山県富山市綾田町1丁目

7分

42万円

11,000円

なし / 6ヶ月

2ヶ月

156.51m²

47.34坪/0.8872万円

貸店舗

2001年1月(築25年2ヶ月)

おすすめコメント

幹線沿いの1階店舗区画!視認性良好、集客性◎。飲食・物販・サービス業など多用途対応可で開業チャンス。

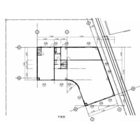
間取図

間取図

間取図

間取図

その他の画像
  • 外観
  • 外観
  • 室内
  • 室内
    • お問い合わせ
    交通

    富山地鉄本線 稲荷町駅 徒歩7分

    その他の交通

    富山地鉄本線 新庄田中駅 徒歩9分

    富山地鉄不二越上滝線 栄町駅 徒歩16分

    所在地 富山県富山市綾田町1丁目
    物件種目 貸店舗
    賃料 42万円 管理費等 11,000円
    敷金 / 保証金 なし / 6ヶ月 礼金 2ヶ月
    敷引 坪単価 0.8872万円
    保証金償却 解約時20% 権利金
    造作譲渡 その他一時金
    維持費等 保険等
    使用部分面積 156.51m² 坪数 47.34坪
    築年月 2001年1月(築25年2ヶ月) 階建 / 階 1階建 / 1階
    駐車場 有 無料
    賃料に含む
    バイク置き場
    駐輪場 土地面積
    接道状況 用途地域
    間取り 建物構造 木造
    アピールポイント この1階店舗区画は、視認性とアクセス性を兼ね備えた絶好のロケーションに位置しており、通行量・車通りをそのまま「集客導線」に変える力を持っています。幹線道路沿いならではの導入性を活かし、看板展開やガラス面ディスプレイを通じて、通行者の目を自然と引きつける店舗演出が可能です。
    面積や形状、設備の状況次第では、飲食店・カフェ・物販店・サービス業・クリニック・サロンなど、さまざまな業種展開が視野に入ります。

    また、1階路面という立地特性は、来店動線の取りやすさ・導入誘導のしやすさに直結します。フットワークの軽さや導線づくりの柔軟性を求める業種にとっては、まさに“出店しやすい土台”といえるでしょう。
    貸し方(分割貸し・部分使用)についても、オーナー様との交渉次第で対応可能性が見込めるため、初期コストや運用フェーズの自由設計を図る余地があります。
    この物件は、単なる“店舗スペース”としてではなく、ブランドを育て、地域に根ざし、持続的な集客と収益を支える拠点になり得ます。お問い合わせを心よりお待ちしております。
    建物名・部屋番号  
    リフォーム履歴
    リノベーション履歴
    特記事項 24時間利用可、土日・祝日利用可、飲食店可、駐車場3台分以上、24時間セキュリティー、IT重説対応物件、都道府県道沿いに面する
    備考
    管理形態/管理員の勤務形態:-/-
    IT重説対応物件
    増築相談可能(約70坪まで)※賃料などは別途相談
    エネルギー消費性能
    断熱性能
    目安光熱費
    バス・トイレ
    キッチン
    設備・サービス 看板取付スペースあり
    火災警報器(報知機)
    その他
    契約期間 5年 条件等
    引渡可能時期 即時 現況
    更新料 なし 物件番号 6988051606
    情報公開日 2026年2月17日 次回更新予定日 2026年3月3日
    ケータイ用バーコード

    QRコード

    スマートフォンでこの物件を見る
    スマートフォンからもこの物件をご覧になれます。
    ※「-」と表示されている項目については、情報提供会社にご確認ください。

    この物件の周辺情報

    周辺施設 albisアピア店
    距離 886m
    周辺施設 ファミリーマート富山綾田町店
    距離 359m
    周辺施設 富山県立大学看護学部
    距離 964m
    周辺施設 富山市立奥田中学校
    距離 991m
    周辺施設 富山県立中央病院
    距離 987m
    周辺施設 富山稲荷郵便局
    距離 941m
    周辺施設 北陸銀行中央病院出張所
    距離 1019m
    周辺施設 稲荷公園
    距離 308m

    クイックお問い合わせ

    ここから簡単にお問い合わせをすることができます。
    (SSLでの暗号化での送信を希望されるお客さまは こちら よりお問い合わせください)

    お問い合わせ内容(必須)
    物件のお問い合わせ理由(必須)
    お名前・ご担当者様名(必須) 姓  名 
    メールアドレス(必須)
    ※携帯電話のメールアドレスをご入力される方はこちらをご確認ください
    電話番号(必須)
    - -
    備考欄 希望条件、物件案内希望日、質問などがございましたらご記入ください。
    お問い合わせを行う前に「個人情報の取り扱いについて」を必ずお読みください。
    「個人情報の取り扱いについて」に同意いただいた場合は「上記にご同意の上 確認画面へ進む」のボタンをクリックしてください。

    個人情報の取り扱いについて

    皆さまが送付された個人情報はアットホーム(株)のサーバを経由し、お問い合わせ先の不動産会社にメールまたはFAXにて転送されるためアットホーム(株)にも保管されます。アットホーム(株)で保管された個人情報の取り扱いについては、【こちら】をご覧ください。
    また、本画面でご記入いただいた個人情報は、お問い合わせ先の不動産会社でも保管します。 お問い合わせ先の不動産会社が保管する個人情報の取り扱いについては、不動産会社に直接お問い合わせください。

    情報提供会社

    情報提供会社

    (株)エステートブラザー テナントの窓口金沢店

    石川県知事免許(1)第4538号

    交通:
    IRいしかわ鉄道/野々市駅 徒歩7分 【バス】 御経塚 停歩1分
    石川県野々市市野代3丁目128-2 ラ・フォーレF1 202
    TEL:
    076-229-7052
    FAX:
    076-229-7081
    所属団体:
    所属団体未加入会員

    取引態様:仲介

    • 会社情報
    • 40412412
    スマートフォンで
    この不動産会社を見る
    QRコード
    • お問い合わせ
    • 提携サイト等より掲載されている物件情報につきましては、不動産会社詳細情報にリンクされていないものがあります。
    • 物件に関するお問合せは、物件詳細ページの「情報提供会社」に表示されている不動産会社へ直接お願いいたします。
    • 間取図は、現況を優先させていただきます。
    • 映像は物件の一部を撮影したものです。物件の契約にあたっての最終判断はご自身の判断に基づいて行ってください。
    • 仲介手数料について仲介手数料

    アットホームは物件情報の適正化に努めております。 内容に誤りがある場合にはこちらへご連絡ください。


    物件画像: