賃貸や不動産はアットホーム-賃貸マンション・賃貸物件・不動産なら アットホーム

香川県高松市下田井町(水田駅)の貸店舗:物件詳細

  • 物件詳細
  • 情報の見方
  • 印刷用画面
交通
所在地
駅徒歩 賃料
管理費等
敷金/保証金
礼金
使用部分面積
坪数/坪単価
物件種目
築年月

高松琴平電鉄長尾線/水田

香川県高松市下田井町

25分

16.5万円

9,900円

2ヶ月 / なし

1ヶ月

105.56m²

31.93坪/0.5168万円

貸店舗・事務所

1997年2月(築29年3ヶ月)

おすすめコメント

県道10号線(高松長尾大内線)沿いの1階部分31.93坪の店舗物件です。事務所として使用も可能です。幹線道路沿いのため市内へのアクセスも便利です。駐車場は敷地内に8台、近隣に2台あります。

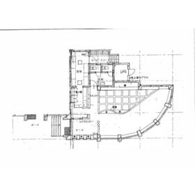
間取図

間取図

<
その他の画像
  • ショッピング施設
  • コンビニ
  • コンビニ
  • ショッピング施設
  • 銀行
  • 役所
  • 銀行
  • 銀行
>
    • お問い合わせ
    交通

    高松琴平電鉄長尾線 水田駅 徒歩25分

    その他の交通

    高松琴平電鉄長尾線 西前田駅 徒歩27分

    所在地 香川県高松市下田井町
    物件種目 貸店舗・事務所
    賃料 16.5万円 管理費等 9,900円
    敷金 / 保証金 2ヶ月 / なし 礼金 1ヶ月
    敷引 坪単価 0.5168万円
    保証金償却 権利金
    造作譲渡 その他一時金
    維持費等 保険等
    使用部分面積 105.56m² 坪数 31.93坪
    築年月 1997年2月(築29年3ヶ月) 階建 / 階 3階建 / 1階
    駐車場 有 無料(空き8台)
    近隣(物件北側)にも2台分 有
    バイク置き場
    駐輪場 土地面積
    接道状況 用途地域
    間取り 建物構造 RC
    建物名・部屋番号 下田井町貸店舗事務所
    リフォーム履歴
    リノベーション履歴
    特記事項 飲食店可、駐車場3台分以上、天井高2.5M以上
    備考
    管理形態/管理員の勤務形態:-/-
    主要採光面:南向き
    エネルギー消費性能
    断熱性能
    目安光熱費
    バス・トイレ 専有部分に男女別トイレあり
    キッチン
    設備・サービス 給湯、プロパンガス、エアコン
    その他
    契約期間 2年 条件等
    引渡可能時期 相談 現況
    更新料 物件番号 6988042236
    情報公開日 2025年11月4日 次回更新予定日 2026年4月19日
    ケータイ用バーコード

    QRコード

    スマートフォンでこの物件を見る
    スマートフォンからもこの物件をご覧になれます。
    ※「-」と表示されている項目については、情報提供会社にご確認ください。

    この物件の周辺情報

    周辺施設 業務スーパーエブリイ六条店
    距離 523m
    周辺施設 ファミリーマート高松小村町店
    距離 922m
    周辺施設 ミニストップ小村町店
    距離 734m
    周辺施設 ハローズ六条店
    距離 772m
    周辺施設 JA香川県川島支店
    距離 1911m
    周辺施設 高松市山田総合センター
    距離 2091m
    周辺施設 香川銀行川島支店
    距離 2182m
    周辺施設 百十四銀行川島支店
    距離 2285m

    クイックお問い合わせ

    ここから簡単にお問い合わせをすることができます。
    (SSLでの暗号化での送信を希望されるお客さまは こちら よりお問い合わせください)

    お問い合わせ内容(必須)
    物件のお問い合わせ理由(必須)
    お名前・ご担当者様名(必須) 姓  名 
    メールアドレス(必須)
    ※携帯電話のメールアドレスをご入力される方はこちらをご確認ください
    電話番号(必須)
    - -
    備考欄 希望条件、物件案内希望日、質問などがございましたらご記入ください。
    お問い合わせを行う前に「個人情報の取り扱いについて」を必ずお読みください。
    「個人情報の取り扱いについて」に同意いただいた場合は「上記にご同意の上 確認画面へ進む」のボタンをクリックしてください。

    個人情報の取り扱いについて

    皆さまが送付された個人情報はアットホーム(株)のサーバを経由し、お問い合わせ先の不動産会社にメールまたはFAXにて転送されるためアットホーム(株)にも保管されます。アットホーム(株)で保管された個人情報の取り扱いについては、【こちら】をご覧ください。
    また、本画面でご記入いただいた個人情報は、お問い合わせ先の不動産会社でも保管します。 お問い合わせ先の不動産会社が保管する個人情報の取り扱いについては、不動産会社に直接お問い合わせください。

    情報提供会社

    情報提供会社

    (有)東和住宅

    香川県知事免許(7)第3480号

    交通:
    高松琴平電鉄長尾線/高田駅 徒歩4分 【バス】 ことでん高田駅 停歩4分
    香川県高松市亀田町410-1 
    TEL:
    087-847-4050
    FAX:
    087-847-8836
    所属団体:
    (公社)香川県宅地建物取引業協会会員
    四国地区不動産公正取引協議会加盟

    取引態様:仲介

    • 会社情報
    • 50800320
    スマートフォンで
    この不動産会社を見る
    QRコード
    • お問い合わせ
    • 提携サイト等より掲載されている物件情報につきましては、不動産会社詳細情報にリンクされていないものがあります。
    • 物件に関するお問合せは、物件詳細ページの「情報提供会社」に表示されている不動産会社へ直接お願いいたします。
    • 間取図は、現況を優先させていただきます。
    • 映像は物件の一部を撮影したものです。物件の契約にあたっての最終判断はご自身の判断に基づいて行ってください。
    • 仲介手数料について仲介手数料

    アットホームは物件情報の適正化に努めております。 内容に誤りがある場合にはこちらへご連絡ください。


    物件画像: