賃貸や不動産はアットホーム-賃貸マンション・賃貸物件・不動産なら アットホーム

愛知県名古屋市中区大須2丁目(大須観音駅)の貸店舗:物件詳細

  • 物件詳細
  • 情報の見方
  • 印刷用画面
交通
所在地
駅徒歩 賃料
管理費等
敷金/保証金
礼金
使用部分面積
坪数/坪単価
物件種目
築年月

名古屋市鶴舞線/大須観音

愛知県名古屋市中区大須2丁目

8分

42.075万円

25,750円

なし / 8ヶ月

なし

83.34m²

25.21坪/1.669万円

貸店舗

2022年3月(築3年10ヶ月)

おすすめコメント

☆名古屋鶴舞線「大須観音」駅から徒歩5分。

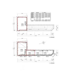
間取図

間取図

店舗d30.83㎡(9.3坪)、店舗c83.34㎡(25.2坪)、店舗e88.81㎡(26.8坪)

外観

外観

<
その他の画像
  • 外観
  • 外観
  • 外観
  • 外観
  • 外観
  • 外観
  • その他
  • レジャー・観光
  • レジャー・観光
  • 銀行
  • 郵便局
  • コンビニ
  • 販売店
  • 販売店
>
    • お問い合わせ
    交通

    名古屋市鶴舞線 大須観音駅 徒歩8分

    その他の交通

    名古屋市鶴舞線 上前津駅 徒歩8分

    名古屋市名城線 矢場町駅 徒歩15分

    所在地 愛知県名古屋市中区大須2丁目
    物件種目 貸店舗
    賃料 42.075万円 管理費等 25,750円
    敷金 / 保証金 なし / 8ヶ月 礼金 なし
    敷引 坪単価 1.669万円
    保証金償却 解約時50% 権利金
    造作譲渡 その他一時金 なし
    維持費等 保険等 要 店舗総合
    使用部分面積 83.34m² 坪数 25.21坪
    築年月 2022年3月(築3年10ヶ月) 階建 / 階 2階建 / 1階
    駐車場 バイク置き場
    駐輪場 土地面積
    接道状況 南 接面4.6m ・ 西 接面31.5m 用途地域 商業地域
    間取り 建物構造 鉄骨造
    アピールポイント アーケードの喧騒から一歩通り抜け、オープンエアな青空の下、寺社に続く小路はのんびりと落ち着いた雰囲気の中、目の前の建物にはアパレルショップ、古着店、理容店などのテナントが入居する、買い物や散策が楽しいそんなエリアです。
    ◇詳細やご相談などお気軽にお問い合わせください。
    建物名・部屋番号 大須二丁目貸店舗
    リフォーム履歴
    リノベーション履歴
    特記事項 土日・祝日利用可、飲食店可、角部屋
    備考
    管理形態/管理員の勤務形態:-/-
    主要採光面:西向き
    3区画テナント同時募集中
    区画により賃貸借条件が異なります。

    〈店舗c〉
    専有面積 30.83㎡
    賃料   194,370円
    共益費  10,230円

    〈店舗e〉
    専有面積 88.81㎡
    賃料   383,240円
    共益費  29,480円

    保証金賃料の8ヶ月 償却50%
    その他、商店街復興組合発展会費 月額1,000円が必要です。
     

    ・重飲食不可
    エネルギー消費性能
    断熱性能
    目安光熱費
    バス・トイレ
    キッチン
    設備・サービス 看板取付スペースあり、シャッター付き
    都市ガス、暖房、冷房
    その他
    契約期間 10年 条件等 定期借家定期借家
    引渡可能時期 相談 現況 居住中
    仲介手数料 1ヶ月    
    更新料 物件番号 6987941595
    情報公開日 2025年10月24日 次回更新予定日 2025年12月24日
    ケータイ用バーコード

    QRコード

    スマートフォンでこの物件を見る
    スマートフォンからもこの物件をご覧になれます。
    ※「-」と表示されている項目については、情報提供会社にご確認ください。

    この物件の周辺情報

    周辺施設 地下鉄鶴舞線「大須観音」駅 2番出口
    距離 400m
    周辺施設 大須観音
    距離 130m
    周辺施設 大須仁王門通商店街アーケード
    距離 74m
    周辺施設 あいち銀行大須支店
    距離 80m
    周辺施設 名古屋大須郵便局
    距離 160m
    周辺施設 セブンイレブン名古屋大須2丁目南店
    距離 150m
    周辺施設 V・drug大須店
    距離 43m
    周辺施設 シモジマ大須店
    距離 190m

    クイックお問い合わせ

    ここから簡単にお問い合わせをすることができます。
    (SSLでの暗号化での送信を希望されるお客さまは こちら よりお問い合わせください)

    お問い合わせ内容(必須)
    物件のお問い合わせ理由(必須)
    お名前・ご担当者様名(必須) 姓  名 
    メールアドレス(必須)
    ※携帯電話のメールアドレスをご入力される方はこちらをご確認ください
    電話番号(必須)
    - -
    備考欄 希望条件、物件案内希望日、質問などがございましたらご記入ください。
    お問い合わせを行う前に「個人情報の取り扱いについて」を必ずお読みください。
    「個人情報の取り扱いについて」に同意いただいた場合は「上記にご同意の上 確認画面へ進む」のボタンをクリックしてください。

    個人情報の取り扱いについて

    皆さまが送付された個人情報はアットホーム(株)のサーバを経由し、お問い合わせ先の不動産会社にメールまたはFAXにて転送されるためアットホーム(株)にも保管されます。アットホーム(株)で保管された個人情報の取り扱いについては、【こちら】をご覧ください。
    また、本画面でご記入いただいた個人情報は、お問い合わせ先の不動産会社でも保管します。 お問い合わせ先の不動産会社が保管する個人情報の取り扱いについては、不動産会社に直接お問い合わせください。

    情報提供会社

    情報提供会社

    (株)大創

    愛知県知事免許(11)第12657号

    交通:
    名古屋市鶴舞線/上前津駅 徒歩4分
    愛知県名古屋市中区大須2丁目32-17 
    TEL:
    052-221-6061
    FAX:
    052-221-6130
    所属団体:
    (公社)愛知県宅地建物取引業協会会員
    東海不動産公正取引協議会加盟

    取引態様:仲介

    • 会社情報
    • 40004563
    スマートフォンで
    この不動産会社を見る
    QRコード
    • お問い合わせ
    • 提携サイト等より掲載されている物件情報につきましては、不動産会社詳細情報にリンクされていないものがあります。
    • 物件に関するお問合せは、物件詳細ページの「情報提供会社」に表示されている不動産会社へ直接お願いいたします。
    • 間取図は、現況を優先させていただきます。
    • 映像は物件の一部を撮影したものです。物件の契約にあたっての最終判断はご自身の判断に基づいて行ってください。
    • 仲介手数料について仲介手数料

    アットホームは物件情報の適正化に努めております。 内容に誤りがある場合にはこちらへご連絡ください。


    物件画像: