賃貸や不動産はアットホーム-賃貸マンション・賃貸物件・不動産なら アットホーム

兵庫県姫路市大善町(京口駅)の貸店舗:物件詳細

  • 物件詳細
  • 情報の見方
  • 印刷用画面
交通
所在地
駅徒歩 賃料
管理費等
敷金/保証金
礼金
使用部分面積
坪数/坪単価
物件種目
築年月

JR播但線/京口

兵庫県姫路市大善町

8分

14.3万円

なし

1ヶ月 / なし

1ヶ月

70.63m²

21.36坪/0.6694万円

貸店舗

1996年3月(築29年10ヶ月)

おすすめコメント

1棟独立店舗です。312号線沿い。現在営業中で現状渡し。ご内覧は事前にお申し付け下さい。

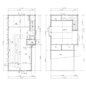
間取図

間取図

  • お問い合わせ
交通

JR播但線 京口駅 徒歩8分

その他の交通

JR山陽本線 東姫路駅 徒歩13分

所在地 兵庫県姫路市大善町
物件種目 貸店舗
賃料 14.3万円 管理費等 なし
敷金 / 保証金 1ヶ月 / なし 礼金 1ヶ月
敷引 坪単価 0.6694万円
保証金償却 権利金
造作譲渡 造作譲渡無償 その他一時金
維持費等 保険等
使用部分面積 70.63m² 坪数 21.36坪
築年月 1996年3月(築29年10ヶ月) 階建 / 階 2階建 / 1階~2階部分
駐車場 有 無料(空き2台) バイク置き場
駐輪場 土地面積 96.08m²(公簿)
接道状況 北 6.0m 公道 ・ 西 18.4m 公道 接面18.3m ・ 二方道路 用途地域 準住居
間取り 建物構造 木造
建物名・部屋番号 大善町 貸店舗
リフォーム履歴
リノベーション履歴
特記事項 居抜き、土日・祝日利用可、飲食店可、駐車場2台分、国道沿いに面する
備考
管理形態/管理員の勤務形態:-/-
主要採光面:西向き
1棟独立店舗です。312号線沿い。現在営業中で現状渡し。ご内覧は事前にお申し付け下さい。
エネルギー消費性能
断熱性能
目安光熱費
バス・トイレ トイレ
キッチン
設備・サービス
その他
契約期間 2年 条件等
引渡可能時期 相談 現況 使用中
更新料 物件番号 6987881126
情報公開日 2025年11月19日 次回更新予定日 2026年1月1日
ケータイ用バーコード

QRコード

スマートフォンでこの物件を見る
スマートフォンからもこの物件をご覧になれます。
※「-」と表示されている項目については、情報提供会社にご確認ください。

クイックお問い合わせ

ここから簡単にお問い合わせをすることができます。
(SSLでの暗号化での送信を希望されるお客さまは こちら よりお問い合わせください)

お問い合わせ内容(必須)
物件のお問い合わせ理由(必須)
お名前・ご担当者様名(必須) 姓  名 
メールアドレス(必須)
※携帯電話のメールアドレスをご入力される方はこちらをご確認ください
電話番号(必須)
- -
備考欄 希望条件、物件案内希望日、質問などがございましたらご記入ください。
お問い合わせを行う前に「個人情報の取り扱いについて」を必ずお読みください。
「個人情報の取り扱いについて」に同意いただいた場合は「上記にご同意の上 確認画面へ進む」のボタンをクリックしてください。

個人情報の取り扱いについて

皆さまが送付された個人情報はアットホーム(株)のサーバを経由し、お問い合わせ先の不動産会社にメールまたはFAXにて転送されるためアットホーム(株)にも保管されます。アットホーム(株)で保管された個人情報の取り扱いについては、【こちら】をご覧ください。
また、本画面でご記入いただいた個人情報は、お問い合わせ先の不動産会社でも保管します。 お問い合わせ先の不動産会社が保管する個人情報の取り扱いについては、不動産会社に直接お問い合わせください。

情報提供会社

情報提供会社

(株)泰宏土地

兵庫県知事免許(9)第450616号

交通:
JR山陽本線/姫路駅 徒歩10分
兵庫県姫路市福沢町65-1 
TEL:
079-292-3600
FAX:
079-292-3601
所属団体:
(一社)兵庫県宅地建物取引業協会会員
(公社)近畿地区不動産公正取引協議会加盟

取引態様:仲介

  • 会社情報
  • 50016404
スマートフォンで
この不動産会社を見る
QRコード
  • お問い合わせ
  • 提携サイト等より掲載されている物件情報につきましては、不動産会社詳細情報にリンクされていないものがあります。
  • 物件に関するお問合せは、物件詳細ページの「情報提供会社」に表示されている不動産会社へ直接お願いいたします。
  • 間取図は、現況を優先させていただきます。
  • 映像は物件の一部を撮影したものです。物件の契約にあたっての最終判断はご自身の判断に基づいて行ってください。
  • 仲介手数料について仲介手数料

アットホームは物件情報の適正化に努めております。 内容に誤りがある場合にはこちらへご連絡ください。


物件画像: