賃貸や不動産はアットホーム-賃貸マンション・賃貸物件・不動産なら アットホーム

東京都渋谷区幡ヶ谷2丁目(幡ヶ谷駅)の貸店舗:物件詳細

  • 物件詳細
  • 情報の見方
  • 印刷用画面
交通
所在地
駅徒歩 賃料
管理費等
敷金/保証金
礼金
使用部分面積
坪数/坪単価
物件種目
築年月

京王線/幡ヶ谷

東京都渋谷区幡ヶ谷2丁目

1分

41.18万円

16,500円

なし / 6ヶ月

1.1ヶ月

56.66m²

17.13坪/2.4027万円

貸店舗

2026年5月(新築)

おすすめコメント

活気ある6号通り商店街沿いの2階店舗!業種・業態等、お気軽にご相談ください。

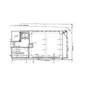
間取図

間取図

その他の画像
    • お問い合わせ
    交通

    京王線 幡ヶ谷駅 徒歩1分

    所在地 東京都渋谷区幡ヶ谷2丁目
    物件種目 貸店舗
    賃料 41.18万円 管理費等 16,500円
    敷金 / 保証金 なし / 6ヶ月 礼金 1.1ヶ月
    敷引 坪単価 2.4027万円
    保証金償却 解約時22% 権利金
    造作譲渡 その他一時金
    維持費等 保険等
    使用部分面積 56.66m² 坪数 17.13坪
    築年月 2026年5月(新築) 階建 / 階 5階建 / 2階
    駐車場 バイク置き場
    駐輪場 土地面積
    接道状況 用途地域 近隣商業
    間取り 建物構造 RC
    アピールポイント 物販・サービス店・その他業種・業態ご相談下さい 
    1階-西・1階-東も同時募集 

    担当:千野(090-7634-6815)迄お気軽にお問合せ下さい。
    建物名・部屋番号  
    リフォーム履歴
    リノベーション履歴
    特記事項 飲食店可
    備考
    管理形態/管理員の勤務形態:-/-
    *物販・サービス店・その他ご相談ください。
    *契約期間ご相談可
    *1階-西・1階-東も同時募集 

    担当:千野(090-7634-6815)迄お気軽にお問合せ下さい。
    エネルギー消費性能
    断熱性能
    目安光熱費
    バス・トイレ
    キッチン
    設備・サービス
    その他
    契約期間 7年 条件等 定期借家定期借家
    引渡可能時期 相談 現況 未完成
    更新料 物件番号 6987506270
    情報公開日 2025年9月1日 次回更新予定日 2026年2月27日
    ケータイ用バーコード

    QRコード

    スマートフォンでこの物件を見る
    スマートフォンからもこの物件をご覧になれます。
    ※「-」と表示されている項目については、情報提供会社にご確認ください。

    クイックお問い合わせ

    ここから簡単にお問い合わせをすることができます。
    (SSLでの暗号化での送信を希望されるお客さまは こちら よりお問い合わせください)

    お問い合わせ内容(必須)
    物件のお問い合わせ理由(必須)
    お名前・ご担当者様名(必須) 姓  名 
    メールアドレス(必須)
    ※携帯電話のメールアドレスをご入力される方はこちらをご確認ください
    電話番号(必須)
    - -
    備考欄 希望条件、物件案内希望日、質問などがございましたらご記入ください。
    お問い合わせを行う前に「個人情報の取り扱いについて」を必ずお読みください。
    「個人情報の取り扱いについて」に同意いただいた場合は「上記にご同意の上 確認画面へ進む」のボタンをクリックしてください。

    個人情報の取り扱いについて

    皆さまが送付された個人情報はアットホーム(株)のサーバを経由し、お問い合わせ先の不動産会社にメールまたはFAXにて転送されるためアットホーム(株)にも保管されます。アットホーム(株)で保管された個人情報の取り扱いについては、【こちら】をご覧ください。
    また、本画面でご記入いただいた個人情報は、お問い合わせ先の不動産会社でも保管します。 お問い合わせ先の不動産会社が保管する個人情報の取り扱いについては、不動産会社に直接お問い合わせください。

    情報提供会社

    情報提供会社

    ACRE(株) 渋谷支社

    国土交通大臣免許(3)第8239号

    交通:
    東急東横線/渋谷駅 徒歩5分
    東京都渋谷区東1丁目27-1 財日ビル4階
    TEL:
    03-6427-7050
    FAX:
    03-6427-7092
    所属団体:
    (公社)東京都宅地建物取引業協会会員
    (公社)首都圏不動産公正取引協議会加盟

    取引態様:仲介

    • 会社情報
    • 00160057
    スマートフォンで
    この不動産会社を見る
    QRコード
    • お問い合わせ
    • 提携サイト等より掲載されている物件情報につきましては、不動産会社詳細情報にリンクされていないものがあります。
    • 物件に関するお問合せは、物件詳細ページの「情報提供会社」に表示されている不動産会社へ直接お願いいたします。
    • 間取図は、現況を優先させていただきます。
    • 映像は物件の一部を撮影したものです。物件の契約にあたっての最終判断はご自身の判断に基づいて行ってください。
    • 仲介手数料について仲介手数料

    アットホームは物件情報の適正化に努めております。 内容に誤りがある場合にはこちらへご連絡ください。


    物件画像: