賃貸や不動産はアットホーム-賃貸マンション・賃貸物件・不動産なら アットホーム

東京都中野区若宮3丁目(都立家政駅)の貸店舗:物件詳細

  • 物件詳細
  • 情報の見方
  • 印刷用画面
交通
所在地
駅徒歩 賃料
管理費等
敷金/保証金
礼金
使用部分面積
坪数/坪単価
物件種目
築年月

西武新宿線/都立家政

東京都中野区若宮3丁目

3分

38.5万円

55,000円

3ヶ月 / なし

なし

60.09m²

18.17坪/2.1181万円

貸店舗・事務所

2025年10月(新築)

おすすめコメント

◎新築♪1階路面店◎業種ご相談下さい!

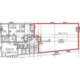
間取図

間取図

  • お問い合わせ
交通

西武新宿線 都立家政駅 徒歩3分

その他の交通

西武新宿線 鷺ノ宮駅 徒歩10分

西武新宿線 野方駅 徒歩12分

所在地 東京都中野区若宮3丁目
物件種目 貸店舗・事務所
賃料 38.5万円 管理費等 55,000円
敷金 / 保証金 3ヶ月 / なし 礼金 なし
敷引 3ヶ月 坪単価 2.1181万円
保証金償却 権利金
造作譲渡 その他一時金
維持費等 保険等 要 3年 49,270円 火災
使用部分面積 60.09m² 坪数 18.17坪
築年月 2025年10月(新築) 階建 / 階 4階建 / 1階
駐車場 バイク置き場
駐輪場 土地面積
接道状況 用途地域
間取り 建物構造 RC
アピールポイント ◎新築♪1階路面店
◎業種ご相談下さい!
建物名・部屋番号 Heureux中野若宮 1階
リフォーム履歴
リノベーション履歴
特記事項 スケルトン、飲食店可
備考
賃貸保証等:加入要(加入必須(ROOMid)賃料等総額の100%)
管理形態/管理員の勤務形態:-/-
※消費税込
※重飲食・風俗営業不可
※短期解約時違約金有
※解約予告6ヶ月前
※原状回復義務有
※2~4階:住居
※看板・広告:外壁不可、ガラス窓可、A看板可
※電灯75A、動力50A、ガス16号、水道20mm
エネルギー消費性能
断熱性能
目安光熱費
バス・トイレ
キッチン
設備・サービス 水道メーター口径20mm、電気容量(電灯)15KVA、電気容量(動力)17KW
動力あり
その他
契約期間 3年 条件等
引渡可能時期 即時 現況
更新料 新賃料 1ヶ月 物件番号 6987506190
情報公開日 2025年9月1日 次回更新予定日 2025年12月29日
ケータイ用バーコード

QRコード

スマートフォンでこの物件を見る
スマートフォンからもこの物件をご覧になれます。
※「-」と表示されている項目については、情報提供会社にご確認ください。

クイックお問い合わせ

ここから簡単にお問い合わせをすることができます。
(SSLでの暗号化での送信を希望されるお客さまは こちら よりお問い合わせください)

お問い合わせ内容(必須)
物件のお問い合わせ理由(必須)
お名前・ご担当者様名(必須) 姓  名 
メールアドレス(必須)
※携帯電話のメールアドレスをご入力される方はこちらをご確認ください
電話番号(必須)
- -
備考欄 希望条件、物件案内希望日、質問などがございましたらご記入ください。
お問い合わせを行う前に「個人情報の取り扱いについて」を必ずお読みください。
「個人情報の取り扱いについて」に同意いただいた場合は「上記にご同意の上 確認画面へ進む」のボタンをクリックしてください。

個人情報の取り扱いについて

皆さまが送付された個人情報はアットホーム(株)のサーバを経由し、お問い合わせ先の不動産会社にメールまたはFAXにて転送されるためアットホーム(株)にも保管されます。アットホーム(株)で保管された個人情報の取り扱いについては、【こちら】をご覧ください。
また、本画面でご記入いただいた個人情報は、お問い合わせ先の不動産会社でも保管します。 お問い合わせ先の不動産会社が保管する個人情報の取り扱いについては、不動産会社に直接お問い合わせください。

情報提供会社

情報提供会社

(株)総合店舗開発

神奈川県知事免許(4)第25863号

交通:
東急東横線/反町駅 徒歩1分
神奈川県横浜市神奈川区松本町1丁目2-3 第2カヤギヤビル1階
TEL:
045-326-2736
FAX:
045-326-2737
所属団体:
(公社)神奈川県宅地建物取引業協会会員
(公社)首都圏不動産公正取引協議会加盟

取引態様:仲介

  • 会社情報
  • 00013994
スマートフォンで
この不動産会社を見る
QRコード
  • お問い合わせ
  • 提携サイト等より掲載されている物件情報につきましては、不動産会社詳細情報にリンクされていないものがあります。
  • 物件に関するお問合せは、物件詳細ページの「情報提供会社」に表示されている不動産会社へ直接お願いいたします。
  • 間取図は、現況を優先させていただきます。
  • 映像は物件の一部を撮影したものです。物件の契約にあたっての最終判断はご自身の判断に基づいて行ってください。
  • 仲介手数料について仲介手数料

アットホームは物件情報の適正化に努めております。 内容に誤りがある場合にはこちらへご連絡ください。


物件画像: