賃貸や不動産はアットホーム-賃貸マンション・賃貸物件・不動産なら アットホーム

東京都中央区日本橋茅場町2丁目(茅場町駅)の貸店舗:物件詳細

  • 物件詳細
  • 情報の見方
  • 印刷用画面
交通
所在地
駅徒歩 賃料
管理費等
敷金/保証金
礼金
使用部分面積
坪数/坪単価
物件種目
築年月

東京メトロ日比谷線/茅場町

東京都中央区日本橋茅場町2丁目

1分

73.61万円

131,450円

なし / 8ヶ月

なし

79.00m²

23.89坪/3.0803万円

貸店舗・事務所

1973年3月(築52年10ヶ月)

おすすめコメント

茅場町駅徒歩1分とアクセス良好です。機械警備がついており、安心してご利用できます。床はOAフロアで室外に男女別トイレがあります。8人前後での利用がおすすめです。

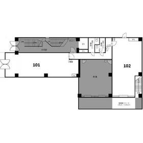
間取図

間取図

外観

外観

その他の画像
  • キッチン
  • トイレ
  • 共有部分
  • 共有部分
  • 共有部分
  • 外観
    • お問い合わせ
    交通

    東京メトロ日比谷線 茅場町駅 徒歩1分

    その他の交通

    東京メトロ東西線 茅場町駅 徒歩1分

    都営浅草線 日本橋駅 徒歩4分

    所在地 東京都中央区日本橋茅場町2丁目
    物件種目 貸店舗・事務所
    賃料 73.61万円 管理費等 131,450円
    敷金 / 保証金 なし / 8ヶ月 礼金 なし
    敷引 坪単価 3.0803万円
    保証金償却 解約時2ヶ月 権利金
    造作譲渡 その他一時金
    維持費等 保険等
    使用部分面積 79.00m² 坪数 23.89坪
    築年月 1973年3月(築52年10ヶ月) 階建 / 階 地上8階地下1階建 / 1階
    駐車場 バイク置き場
    駐輪場 土地面積
    接道状況 用途地域
    間取り 建物構造 SRC
    アピールポイント 茅場町駅徒歩1分で複数路線利用可能です。機械警備もついているので安
    心してご利用できます。充実した設備で床はOAフロア、トイレは室外に
    男女別のトイレがあります。8人前後での利用がおすすめで他コンパクト
    サイズもありますので、内見や気になった際はお気軽にお問い合わせく
    ださい。
    建物名・部屋番号 第1井上ビル 1階102号室
    リフォーム履歴
    リノベーション履歴
    特記事項 OAフロア、飲食店不可、24時間セキュリティー
    備考
    賃貸保証等:利用可(月額賃料の1ヵ月)
    管理形態/管理員の勤務形態:-/-
    エネルギー消費性能
    断熱性能
    目安光熱費
    バス・トイレ 共用部分に男女別トイレあり
    キッチン
    設備・サービス 個別空調、エアコン、暖房、冷房
    その他 エレベーター
    契約期間 2年 条件等
    引渡可能時期 相談 現況
    仲介手数料 1ヶ月 適格請求書発行
    更新料 新賃料 1ヶ月 物件番号 6987277517
    情報公開日 2025年11月13日 次回更新予定日 2025年12月25日
    ケータイ用バーコード

    QRコード

    スマートフォンでこの物件を見る
    スマートフォンからもこの物件をご覧になれます。
    ※「-」と表示されている項目については、情報提供会社にご確認ください。

    この物件の周辺情報

    周辺施設 まいばすけっと新川2丁目店
    距離 297m
    周辺施設 ローソン日本橋茅場町店
    距離 84m
    周辺施設 セブンイレブン日本橋茅場町2丁目店
    距離 267m
    周辺施設 カフェ・ベローチェ茅場町駅前店
    距離 41m
    周辺施設 スターバックスコーヒー茅場町店
    距離 42m
    周辺施設 スギ薬局茅場町店
    距離 212m
    周辺施設 日本橋茅場町郵便局
    距離 298m
    周辺施設 きらぼし銀行茅場町支店
    距離 286m

    クイックお問い合わせ

    ここから簡単にお問い合わせをすることができます。
    (SSLでの暗号化での送信を希望されるお客さまは こちら よりお問い合わせください)

    お問い合わせ内容(必須)
    物件のお問い合わせ理由(必須)
    お名前・ご担当者様名(必須) 姓  名 
    メールアドレス(必須)
    ※携帯電話のメールアドレスをご入力される方はこちらをご確認ください
    電話番号(必須)
    - -
    備考欄 希望条件、物件案内希望日、質問などがございましたらご記入ください。
    お問い合わせを行う前に「個人情報の取り扱いについて」を必ずお読みください。
    「個人情報の取り扱いについて」に同意いただいた場合は「上記にご同意の上 確認画面へ進む」のボタンをクリックしてください。

    個人情報の取り扱いについて

    皆さまが送付された個人情報はアットホーム(株)のサーバを経由し、お問い合わせ先の不動産会社にメールまたはFAXにて転送されるためアットホーム(株)にも保管されます。アットホーム(株)で保管された個人情報の取り扱いについては、【こちら】をご覧ください。
    また、本画面でご記入いただいた個人情報は、お問い合わせ先の不動産会社でも保管します。 お問い合わせ先の不動産会社が保管する個人情報の取り扱いについては、不動産会社に直接お問い合わせください。

    情報提供会社

    情報提供会社

    (株)ライトハウス オフィスリーシング事業部

    東京都知事免許(1)第106093号

    交通:
    JR山手線/神田駅 徒歩3分
    東京都千代田区神田須田町1丁目26 ラシーヌ神田ビル6階
    TEL:
    03-6262-9750
    FAX:
    03-6262-9751
    所属団体:
    (公社)全日本不動産協会会員
    (公社)首都圏不動産公正取引協議会加盟

    取引態様:仲介

    • 会社情報
    • 00276094
    スマートフォンで
    この不動産会社を見る
    QRコード
    • お問い合わせ
    • 提携サイト等より掲載されている物件情報につきましては、不動産会社詳細情報にリンクされていないものがあります。
    • 物件に関するお問合せは、物件詳細ページの「情報提供会社」に表示されている不動産会社へ直接お願いいたします。
    • 間取図は、現況を優先させていただきます。
    • 映像は物件の一部を撮影したものです。物件の契約にあたっての最終判断はご自身の判断に基づいて行ってください。
    • 仲介手数料について仲介手数料

    アットホームは物件情報の適正化に努めております。 内容に誤りがある場合にはこちらへご連絡ください。


    物件画像: