賃貸や不動産はアットホーム-賃貸マンション・賃貸物件・不動産なら アットホーム

東京都大田区西蒲田7丁目(蒲田駅)の貸店舗:物件詳細

  • 物件詳細
  • 情報の見方
  • 印刷用画面
交通
所在地
駅徒歩 賃料
管理費等
敷金/保証金
礼金
使用部分面積
坪数/坪単価
物件種目
築年月

JR京浜東北線/蒲田

東京都大田区西蒲田7丁目

4分

26.4万円

6ヶ月 / なし

1ヶ月

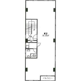
79.35m²

24.00坪/1.0999万円

貸店舗・事務所

1980年1月(築45年11ヶ月)

おすすめコメント

◎事務所に最適です! ◎蒲田駅徒歩圏内

間取図

間取図

その他の画像
    • お問い合わせ
    交通

    JR京浜東北線 蒲田駅 徒歩4分

    その他の交通

    東急池上線 蒲田駅 徒歩5分

    東急多摩川線 蒲田駅 徒歩6分

    所在地 東京都大田区西蒲田7丁目
    物件種目 貸店舗・事務所
    賃料 26.4万円 管理費等
    敷金 / 保証金 6ヶ月 / なし 礼金 1ヶ月
    敷引 坪単価 1.0999万円
    保証金償却 権利金
    造作譲渡 その他一時金
    維持費等 保険等
    使用部分面積 79.35m² 坪数 24.00坪
    築年月 1980年1月(築45年11ヶ月) 階建 / 階 5階建 / 2階
    駐車場 バイク置き場
    駐輪場 土地面積
    接道状況 用途地域
    間取り 建物構造 RC
    アピールポイント ◎事務所に最適です! ◎蒲田駅徒歩圏内
    建物名・部屋番号 花井ビル 2階
    リフォーム履歴
    リノベーション履歴
    特記事項 飲食店不可
    備考
    賃貸保証等:加入要(エルズサポート)
    管理形態/管理員の勤務形態:-/-
    ※消費税込 
    ※店舗相談
    ※ミニキッチン・エアコン2基・LED照明
    ※旧耐震
    ※EV無
    エネルギー消費性能
    断熱性能
    目安光熱費
    バス・トイレ 専有部分にトイレあり
    キッチン
    設備・サービス エアコン2台以上、エアコン
    その他
    契約期間 3年 条件等
    引渡可能時期 即時 現況
    更新料 新賃料 1ヶ月 物件番号 6987239602
    情報公開日 2025年8月5日 次回更新予定日 2025年11月18日
    ケータイ用バーコード

    QRコード

    スマートフォンでこの物件を見る
    スマートフォンからもこの物件をご覧になれます。
    ※「-」と表示されている項目については、情報提供会社にご確認ください。

    クイックお問い合わせ

    ここから簡単にお問い合わせをすることができます。
    (SSLでの暗号化での送信を希望されるお客さまは こちら よりお問い合わせください)

    お問い合わせ内容(必須)
    物件のお問い合わせ理由(必須)
    お名前・ご担当者様名(必須) 姓  名 
    メールアドレス(必須)
    ※携帯電話のメールアドレスをご入力される方はこちらをご確認ください
    電話番号(必須)
    - -
    備考欄 希望条件、物件案内希望日、質問などがございましたらご記入ください。
    お問い合わせを行う前に「個人情報の取り扱いについて」を必ずお読みください。
    「個人情報の取り扱いについて」に同意いただいた場合は「上記にご同意の上 確認画面へ進む」のボタンをクリックしてください。

    個人情報の取り扱いについて

    皆さまが送付された個人情報はアットホーム(株)のサーバを経由し、お問い合わせ先の不動産会社にメールまたはFAXにて転送されるためアットホーム(株)にも保管されます。アットホーム(株)で保管された個人情報の取り扱いについては、【こちら】をご覧ください。
    また、本画面でご記入いただいた個人情報は、お問い合わせ先の不動産会社でも保管します。 お問い合わせ先の不動産会社が保管する個人情報の取り扱いについては、不動産会社に直接お問い合わせください。

    情報提供会社

    情報提供会社

    (株)総合店舗開発

    神奈川県知事免許(4)第25863号

    交通:
    東急東横線/反町駅 徒歩1分
    神奈川県横浜市神奈川区松本町1丁目2-3 第2カヤギヤビル1階
    TEL:
    045-326-2736
    FAX:
    045-326-2737
    所属団体:
    (公社)神奈川県宅地建物取引業協会会員
    (公社)首都圏不動産公正取引協議会加盟

    取引態様:仲介

    • 会社情報
    • 00013994
    スマートフォンで
    この不動産会社を見る
    QRコード
    • お問い合わせ
    • 提携サイト等より掲載されている物件情報につきましては、不動産会社詳細情報にリンクされていないものがあります。
    • 物件に関するお問合せは、物件詳細ページの「情報提供会社」に表示されている不動産会社へ直接お願いいたします。
    • 間取図は、現況を優先させていただきます。
    • 映像は物件の一部を撮影したものです。物件の契約にあたっての最終判断はご自身の判断に基づいて行ってください。
    • 仲介手数料について仲介手数料

    アットホームは物件情報の適正化に努めております。 内容に誤りがある場合にはこちらへご連絡ください。


    物件画像: