賃貸や不動産はアットホーム-賃貸マンション・賃貸物件・不動産なら アットホーム

愛媛県松山市生石町(土居田駅)の貸店舗:物件詳細

  • 物件詳細
  • 情報の見方
  • 印刷用画面
交通
所在地
駅徒歩 賃料
管理費等
敷金/保証金
礼金
使用部分面積
坪数/坪単価
物件種目
築年月

伊予鉄道郡中線/土居田

愛媛県松山市生石町

18分

38.5万円

なし

なし / 4ヶ月

2ヶ月

171.53m²

51.88坪/0.742万円

貸店舗・事務所

1994年5月(築31年7ヶ月)

おすすめコメント  スタッフ: 尾上

敷地内駐車場6台込みです。フォトスタジオで使用されていたテナントで天井が高く、色々な用途で使用できると思います。ご内覧可能となっておりますのでぜひお気軽にお問合せくださいませ。

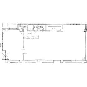
間取図

間取図

<
その他の画像
>
    • お問い合わせ
    交通

    伊予鉄道郡中線 土居田駅 徒歩18分

    その他の交通

    JR予讃線 松山駅 徒歩21分

    伊予鉄道環状線 JR松山駅前駅 徒歩25分

    所在地 愛媛県松山市生石町
    物件種目 貸店舗・事務所
    賃料 38.5万円 管理費等 なし
    敷金 / 保証金 なし / 4ヶ月 礼金 2ヶ月
    敷引 坪単価 0.742万円
    保証金償却 権利金
    造作譲渡 その他一時金
    維持費等 保険等
    使用部分面積 171.53m² 坪数 51.88坪
    築年月 1994年5月(築31年7ヶ月) 階建 / 階 3階建 / 1階
    駐車場 有 無料(空き6台)
    敷地内駐車場6台込みです。
    バイク置き場
    駐輪場 土地面積
    接道状況 用途地域 1種住居
    間取り 建物構造 RC
    アピールポイント 敷地内駐車場6台込みです。
    フォトスタジオで使用されていたテナントで天井が高く、色々な用途で使用できると思います。
    ご内覧可能となっておりますのでぜひお気軽にお問合せくださいませ。
    建物名・部屋番号 フォトヒルズ 1F
    リフォーム履歴
    リノベーション履歴
    特記事項 土日・祝日利用可、1フロア1テナント、駐車場3台分以上、角部屋
    備考
    賃貸保証等:加入要(保証会社加入必要:(初回)賃料の100%・更新料:有り)
    管理形態/管理員の勤務形態:-/-
    敷地内駐車場6台込み。
    エネルギー消費性能
    断熱性能
    目安光熱費
    バス・トイレ 専有部分にトイレあり
    キッチン
    設備・サービス エアコン2台以上、収納スペース、給湯、プロパンガス、ビルトインエアコン
    その他
    契約期間 2年 条件等
    引渡可能時期 相談 現況
    仲介手数料 1ヶ月    
    更新料 物件番号 6987233018
    情報公開日 2025年8月4日 次回更新予定日 2025年11月13日
    ケータイ用バーコード

    QRコード

    スマートフォンでこの物件を見る
    スマートフォンからもこの物件をご覧になれます。
    ※「-」と表示されている項目については、情報提供会社にご確認ください。

    この物件の周辺情報

    周辺施設 セブンスター南江戸店
    距離 724m
    周辺施設 マルナカ土居田店
    距離 1147m
    周辺施設 スシロー松山生石店
    距離 594m
    周辺施設 モスバーガー松山フライブルク通り店
    距離 528m
    周辺施設 マクドナルド松山フライブルク通り店
    距離 638m
    周辺施設 しゃぶしゃぶ温野菜松山新空港通り店
    距離 880m
    周辺施設 くすりのレデイ新空港通り店
    距離 890m
    周辺施設 明屋書店空港通店
    距離 682m

    クイックお問い合わせ

    ここから簡単にお問い合わせをすることができます。
    (SSLでの暗号化での送信を希望されるお客さまは こちら よりお問い合わせください)

    お問い合わせ内容(必須)
    物件のお問い合わせ理由(必須)
    お名前・ご担当者様名(必須) 姓  名 
    メールアドレス(必須)
    ※携帯電話のメールアドレスをご入力される方はこちらをご確認ください
    電話番号(必須)
    - -
    備考欄 希望条件、物件案内希望日、質問などがございましたらご記入ください。
    お問い合わせを行う前に「個人情報の取り扱いについて」を必ずお読みください。
    「個人情報の取り扱いについて」に同意いただいた場合は「上記にご同意の上 確認画面へ進む」のボタンをクリックしてください。

    個人情報の取り扱いについて

    皆さまが送付された個人情報はアットホーム(株)のサーバを経由し、お問い合わせ先の不動産会社にメールまたはFAXにて転送されるためアットホーム(株)にも保管されます。アットホーム(株)で保管された個人情報の取り扱いについては、【こちら】をご覧ください。
    また、本画面でご記入いただいた個人情報は、お問い合わせ先の不動産会社でも保管します。 お問い合わせ先の不動産会社が保管する個人情報の取り扱いについては、不動産会社に直接お問い合わせください。

    情報提供会社

    情報提供会社

    (株)ハウスメイトショップ 松山東店

    国土交通大臣免許(4)第7558号

    交通:
    伊予鉄道横河原線/いよ立花駅
    愛媛県松山市束本1丁目5-3 
    TEL:
    089-904-9114
    FAX:
    089-998-7760
    所属団体:
    (公社)愛媛県宅地建物取引業協会会員
    不動産公正取引協議会加盟

    取引態様:仲介

    • 会社情報
    • 50015736
    スマートフォンで
    この不動産会社を見る
    QRコード
    • お問い合わせ
    • 提携サイト等より掲載されている物件情報につきましては、不動産会社詳細情報にリンクされていないものがあります。
    • 物件に関するお問合せは、物件詳細ページの「情報提供会社」に表示されている不動産会社へ直接お願いいたします。
    • 間取図は、現況を優先させていただきます。
    • 映像は物件の一部を撮影したものです。物件の契約にあたっての最終判断はご自身の判断に基づいて行ってください。
    • 仲介手数料について仲介手数料

    アットホームは物件情報の適正化に努めております。 内容に誤りがある場合にはこちらへご連絡ください。


    物件画像: