賃貸や不動産はアットホーム-賃貸マンション・賃貸物件・不動産なら アットホーム

香川県綾歌郡宇多津町浜六番丁(宇多津駅)の貸店舗:物件詳細

  • 物件詳細
  • 情報の見方
  • 印刷用画面
交通
所在地
駅徒歩 賃料
管理費等
敷金/保証金
礼金
使用部分面積
坪数/坪単価
物件種目
築年月

JR予讃線/宇多津

香川県綾歌郡宇多津町浜六番丁

3分

44万円

なし

1.5ヶ月 / なし

なし

363.00m²

109.80坪/0.4008万円

貸店舗・事務所(一括)

2001年2月(築24年10ヶ月)

おすすめコメント

宇多津駅前の好立地で1・2階使用可能なテナント物件です♪駐車場スペース10台以上ございます!ぜひお問い合わせください!

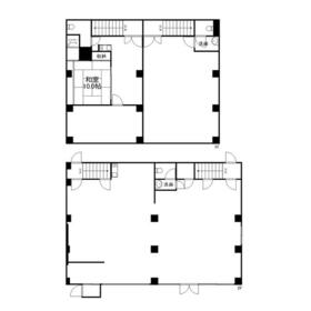
間取図

間取図

<
その他の画像
>
    • お問い合わせ
    交通

    JR予讃線 宇多津駅 徒歩3分

    その他の交通

    本四備讃線 宇多津駅 徒歩3分

    所在地 香川県綾歌郡宇多津町浜六番丁
    物件種目 貸店舗・事務所(一括)
    賃料 44万円 管理費等 なし
    敷金 / 保証金 1.5ヶ月 / なし 礼金 なし
    敷引 1.5ヶ月 坪単価 0.4008万円
    保証金償却 権利金
    造作譲渡 その他一時金
    維持費等 保険等 要 業種によって金額が異なります。
    使用部分面積 363.00m² 坪数 109.80坪
    築年月 2001年2月(築24年10ヶ月) 階建 / 階 2階建 / 1階
    駐車場 有 無料(空き10台)
    別途近隣駐車場あり
    バイク置き場
    駐輪場 土地面積
    接道状況 用途地域
    間取り 建物構造 鉄骨造
    建物名・部屋番号  
    リフォーム履歴
    リノベーション履歴
    特記事項 土日・祝日利用可、1フロア1テナント、駐車場3台分以上、天井高2.5M以上、IT重説対応物件、保証人不要
    備考
    賃貸保証等:加入要(初回保証委託料→賃料の100% 次年度より継続保証委託料→賃料の10%要)
    管理形態/管理員の勤務形態:-/-
    IT重説対応物件
    エネルギー消費性能
    断熱性能
    目安光熱費
    バス・トイレ トイレ2ヶ所、専有部分に男女別トイレあり、多機能トイレ
    キッチン
    設備・サービス 看板取付スペースあり
    エアコン2台以上、都市ガス、動力あり、ビルトインエアコン、エアコン、インターネット対応
    その他
    契約期間 2年 条件等
    引渡可能時期 即時 現況
    仲介手数料 1ヶ月    
    更新料 物件番号 6987198129
    情報公開日 2025年8月1日 次回更新予定日 2025年11月7日
    ケータイ用バーコード

    QRコード

    スマートフォンでこの物件を見る
    スマートフォンからもこの物件をご覧になれます。
    ※「-」と表示されている項目については、情報提供会社にご確認ください。

    この物件の周辺情報

    周辺施設 セブンイレブンKiosk宇多津駅店
    距離 168m
    周辺施設 宇多津駅
    距離 192m
    周辺施設 ユープラザうたづ
    距離 335m
    周辺施設 宇多津ゴルフ練習場
    距離 480m
    周辺施設 宇多津郵便局
    距離 281m
    周辺施設 ディスカウントドラッグコスモス宇多津店
    距離 316m
    周辺施設 コープうたづ
    距離 510m
    周辺施設 新鮮市場きむら宇多津店
    距離 517m

    クイックお問い合わせ

    ここから簡単にお問い合わせをすることができます。
    (SSLでの暗号化での送信を希望されるお客さまは こちら よりお問い合わせください)

    お問い合わせ内容(必須)
    物件のお問い合わせ理由(必須)
    お名前・ご担当者様名(必須) 姓  名 
    メールアドレス(必須)
    ※携帯電話のメールアドレスをご入力される方はこちらをご確認ください
    電話番号(必須)
    - -
    備考欄 希望条件、物件案内希望日、質問などがございましたらご記入ください。
    お問い合わせを行う前に「個人情報の取り扱いについて」を必ずお読みください。
    「個人情報の取り扱いについて」に同意いただいた場合は「上記にご同意の上 確認画面へ進む」のボタンをクリックしてください。

    個人情報の取り扱いについて

    皆さまが送付された個人情報はアットホーム(株)のサーバを経由し、お問い合わせ先の不動産会社にメールまたはFAXにて転送されるためアットホーム(株)にも保管されます。アットホーム(株)で保管された個人情報の取り扱いについては、【こちら】をご覧ください。
    また、本画面でご記入いただいた個人情報は、お問い合わせ先の不動産会社でも保管します。 お問い合わせ先の不動産会社が保管する個人情報の取り扱いについては、不動産会社に直接お問い合わせください。

    情報提供会社

    情報提供会社

    Emi不動産

    香川県知事免許(1)第4574号

    交通:
    JR予讃線/丸亀駅
    香川県丸亀市南条町1番地1 丸亀ビル2階
    TEL:
    0877-85-5074
    所属団体:
    (公社)全日本不動産協会会員
    四国地区不動産公正取引協議会加盟

    取引態様:仲介

    • 会社情報
    • 50107034
    スマートフォンで
    この不動産会社を見る
    QRコード
    • お問い合わせ
    • 提携サイト等より掲載されている物件情報につきましては、不動産会社詳細情報にリンクされていないものがあります。
    • 物件に関するお問合せは、物件詳細ページの「情報提供会社」に表示されている不動産会社へ直接お願いいたします。
    • 間取図は、現況を優先させていただきます。
    • 映像は物件の一部を撮影したものです。物件の契約にあたっての最終判断はご自身の判断に基づいて行ってください。
    • 仲介手数料について仲介手数料

    アットホームは物件情報の適正化に努めております。 内容に誤りがある場合にはこちらへご連絡ください。


    物件画像: