賃貸や不動産はアットホーム-賃貸マンション・賃貸物件・不動産なら アットホーム

香川県丸亀市城西町2丁目(丸亀駅)の貸店舗:物件詳細

  • 物件詳細
  • 情報の見方
  • 印刷用画面
交通
所在地
駅徒歩 賃料
管理費等
敷金/保証金
礼金
使用部分面積
坪数/坪単価
物件種目
築年月

JR予讃線/丸亀

香川県丸亀市城西町2丁目

12分

49.5万円

3ヶ月 / なし

2ヶ月

402.01m²

121.60坪/0.4071万円

貸店舗

1974年7月(築51年10ヶ月)

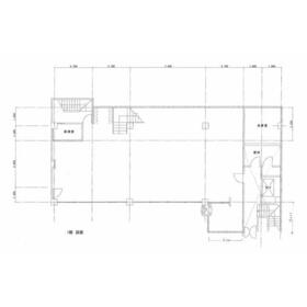
間取図

間取図

その他の画像
    • お問い合わせ
    交通

    JR予讃線 丸亀駅 徒歩12分

    所在地 香川県丸亀市城西町2丁目
    物件種目 貸店舗
    賃料 49.5万円 管理費等
    敷金 / 保証金 3ヶ月 / なし 礼金 2ヶ月
    敷引 坪単価 0.4071万円
    保証金償却 権利金
    造作譲渡 その他一時金
    維持費等 保険等
    使用部分面積 402.01m² 坪数 121.60坪
    築年月 1974年7月(築51年10ヶ月) 階建 / 階 6階建 / 1階~2階部分
    駐車場 バイク置き場
    駐輪場 土地面積
    接道状況 用途地域
    間取り 建物構造 RC
    建物名・部屋番号  
    リフォーム履歴
    リノベーション履歴
    特記事項
    備考
    賃貸保証等:加入要(賃料総額の100%)
    管理形態/管理員の勤務形態:-/-
    エネルギー消費性能
    断熱性能
    目安光熱費
    バス・トイレ トイレ2ヶ所
    キッチン
    設備・サービス
    その他 エレベーター
    契約期間 3年 条件等
    引渡可能時期 即時 現況
    更新料 物件番号 6987068952
    情報公開日 2026年1月26日 次回更新予定日 2026年4月14日
    ケータイ用バーコード

    QRコード

    スマートフォンでこの物件を見る
    スマートフォンからもこの物件をご覧になれます。
    ※「-」と表示されている項目については、情報提供会社にご確認ください。

    この物件の周辺情報

    周辺施設 観音寺信用金庫丸亀支店
    距離 38m
    周辺施設 丸亀市立城西小学校
    距離 159m
    周辺施設 はなまるうどん丸亀城西店
    距離 235m
    周辺施設 丸亀市立西中学校
    距離 264m
    周辺施設 医療法人社団清風会中山病院
    距離 270m
    周辺施設 香川県立丸亀高校
    距離 218m
    周辺施設 香川県立丸亀高等学校武道館
    距離 254m
    周辺施設 丸亀郵便局
    距離 273m

    クイックお問い合わせ

    ここから簡単にお問い合わせをすることができます。
    (SSLでの暗号化での送信を希望されるお客さまは こちら よりお問い合わせください)

    お問い合わせ内容(必須)
    物件のお問い合わせ理由(必須)
    お名前・ご担当者様名(必須) 姓  名 
    メールアドレス(必須)
    ※携帯電話のメールアドレスをご入力される方はこちらをご確認ください
    電話番号(必須)
    - -
    備考欄 希望条件、物件案内希望日、質問などがございましたらご記入ください。
    お問い合わせを行う前に「個人情報の取り扱いについて」を必ずお読みください。
    「個人情報の取り扱いについて」に同意いただいた場合は「上記にご同意の上 確認画面へ進む」のボタンをクリックしてください。

    個人情報の取り扱いについて

    皆さまが送付された個人情報はアットホーム(株)のサーバを経由し、お問い合わせ先の不動産会社にメールまたはFAXにて転送されるためアットホーム(株)にも保管されます。アットホーム(株)で保管された個人情報の取り扱いについては、【こちら】をご覧ください。
    また、本画面でご記入いただいた個人情報は、お問い合わせ先の不動産会社でも保管します。 お問い合わせ先の不動産会社が保管する個人情報の取り扱いについては、不動産会社に直接お問い合わせください。

    情報提供会社

    情報提供会社

    (有)ハッピー不動産

    香川県知事免許(5)第3964号

    交通:
    JR予讃線/丸亀駅 徒歩27分 【バス】 番神 停歩1分
    香川県丸亀市田村町1622-1 
    TEL:
    0877-22-6820
    FAX:
    0877-23-7048
    所属団体:
    (公社)全日本不動産協会会員
    四国地区不動産公正取引協議会加盟

    取引態様:仲介

    • 会社情報
    • 50021280
    スマートフォンで
    この不動産会社を見る
    QRコード
    • お問い合わせ
    • 提携サイト等より掲載されている物件情報につきましては、不動産会社詳細情報にリンクされていないものがあります。
    • 物件に関するお問合せは、物件詳細ページの「情報提供会社」に表示されている不動産会社へ直接お願いいたします。
    • 間取図は、現況を優先させていただきます。
    • 映像は物件の一部を撮影したものです。物件の契約にあたっての最終判断はご自身の判断に基づいて行ってください。
    • 仲介手数料について仲介手数料

    アットホームは物件情報の適正化に努めております。 内容に誤りがある場合にはこちらへご連絡ください。


    物件画像: