賃貸や不動産はアットホーム-賃貸マンション・賃貸物件・不動産なら アットホーム

東京都大田区中央3丁目(大森駅)の貸店舗:物件詳細

  • 物件詳細
  • 情報の見方
  • 印刷用画面
交通
所在地
駅徒歩 賃料
管理費等
敷金/保証金
礼金
使用部分面積
坪数/坪単価
物件種目
築年月

JR京浜東北線/大森

東京都大田区中央3丁目

20分

35万円

3ヶ月 / なし

1ヶ月

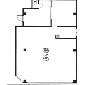
106.80m²

32.30坪/1.0834万円

貸店舗

1993年8月(築32年4ヶ月)

おすすめコメント

学習塾、訪問介護ステーション、などに最適、業種相談

間取図

間取図

その他の画像
    • お問い合わせ
    交通

    JR京浜東北線 大森駅 徒歩20分

    所在地 東京都大田区中央3丁目
    物件種目 貸店舗
    賃料 35万円 管理費等
    敷金 / 保証金 3ヶ月 / なし 礼金 1ヶ月
    敷引 坪単価 1.0834万円
    保証金償却 権利金
    造作譲渡 その他一時金 仲介手数料:350,000円
    維持費等 保険等
    使用部分面積 106.80m² 坪数 32.30坪
    築年月 1993年8月(築32年4ヶ月) 階建 / 階 5階建 / 1階
    駐車場 バイク置き場
    駐輪場 土地面積
    接道状況 用途地域
    間取り 建物構造 鉄骨造
    アピールポイント 学習塾、訪問介護ステーション、などに最適、業種相談。東急バス入新井第四小学校徒歩3分。
    建物名・部屋番号 エムズアレイ 1階
    リフォーム履歴
    リノベーション履歴
    特記事項
    備考
    賃貸保証等:加入要(日本セーフティー株式会社、利用料金:賃料の1か月)
    管理形態/管理員の勤務形態:-/-
    エネルギー消費性能
    断熱性能
    目安光熱費
    バス・トイレ
    キッチン
    設備・サービス
    その他
    契約期間 3年 条件等
    引渡可能時期 相談 現況 使用中
    仲介手数料 1ヶ月    
    更新料 新賃料 1ヶ月 物件番号 6986904077
    情報公開日 2025年7月4日 次回更新予定日 2025年11月17日
    ケータイ用バーコード

    QRコード

    スマートフォンでこの物件を見る
    スマートフォンからもこの物件をご覧になれます。
    ※「-」と表示されている項目については、情報提供会社にご確認ください。

    この物件の周辺情報

    周辺施設 サミットストア大田中央店
    距離 130m
    周辺施設 まいばすけっと大森中央店
    距離 183m
    周辺施設 ローソン大森赤十字病院店
    距離 328m
    周辺施設 ほっともっと大田中央店
    距離 362m
    周辺施設 大田中央八郵便局
    距離 429m
    周辺施設 城南信用金庫大田文化の森支店
    距離 380m
    周辺施設 大田区新井宿特別出張所
    距離 469m
    周辺施設 大森警察署
    距離 1924m

    クイックお問い合わせ

    ここから簡単にお問い合わせをすることができます。
    (SSLでの暗号化での送信を希望されるお客さまは こちら よりお問い合わせください)

    お問い合わせ内容(必須)
    物件のお問い合わせ理由(必須)
    お名前・ご担当者様名(必須) 姓  名 
    メールアドレス(必須)
    ※携帯電話のメールアドレスをご入力される方はこちらをご確認ください
    電話番号(必須)
    - -
    備考欄 希望条件、物件案内希望日、質問などがございましたらご記入ください。
    お問い合わせを行う前に「個人情報の取り扱いについて」を必ずお読みください。
    「個人情報の取り扱いについて」に同意いただいた場合は「上記にご同意の上 確認画面へ進む」のボタンをクリックしてください。

    個人情報の取り扱いについて

    皆さまが送付された個人情報はアットホーム(株)のサーバを経由し、お問い合わせ先の不動産会社にメールまたはFAXにて転送されるためアットホーム(株)にも保管されます。アットホーム(株)で保管された個人情報の取り扱いについては、【こちら】をご覧ください。
    また、本画面でご記入いただいた個人情報は、お問い合わせ先の不動産会社でも保管します。 お問い合わせ先の不動産会社が保管する個人情報の取り扱いについては、不動産会社に直接お問い合わせください。

    情報提供会社

    情報提供会社

    (有)ケイ・ハウジング

    東京都知事免許(8)第58666号

    交通:
    JR京浜東北線/大森駅 徒歩3分
    東京都大田区大森北1丁目30-2 杉山ビル2F
    TEL:
    03-3765-1999
    FAX:
    03-3765-8121
    所属団体:
    (公社)東京都宅地建物取引業協会会員
    (公社)首都圏不動産公正取引協議会加盟

    取引態様:仲介

    • 会社情報
    • 00140523
    スマートフォンで
    この不動産会社を見る
    QRコード
    • お問い合わせ
    • 提携サイト等より掲載されている物件情報につきましては、不動産会社詳細情報にリンクされていないものがあります。
    • 物件に関するお問合せは、物件詳細ページの「情報提供会社」に表示されている不動産会社へ直接お願いいたします。
    • 間取図は、現況を優先させていただきます。
    • 映像は物件の一部を撮影したものです。物件の契約にあたっての最終判断はご自身の判断に基づいて行ってください。
    • 仲介手数料について仲介手数料

    アットホームは物件情報の適正化に努めております。 内容に誤りがある場合にはこちらへご連絡ください。


    物件画像: