賃貸や不動産はアットホーム-賃貸マンション・賃貸物件・不動産なら アットホーム

岩手県盛岡市大通2丁目(盛岡駅)の貸店舗:物件詳細

  • 物件詳細
  • 情報の見方
  • 印刷用画面
交通
所在地
駅徒歩 賃料
管理費等
敷金/保証金
礼金
使用部分面積
坪数/坪単価
物件種目
築年月

東北新幹線/盛岡

岩手県盛岡市大通2丁目

13分

42万円

42,000円

3ヶ月 / なし

なし

158.38m²

47.90坪/0.8767万円

貸店舗

1962年12月(築63年5ヶ月)

おすすめコメント

居酒屋居抜き物件♪

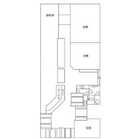
間取図

間取図

<
その他の画像
>
    • お問い合わせ
    交通

    東北新幹線 盛岡駅 徒歩13分

    その他の交通

    JR東北本線 盛岡駅 徒歩12分

    いわて銀河鉄道線 盛岡駅 徒歩14分

    所在地 岩手県盛岡市大通2丁目
    物件種目 貸店舗
    賃料 42万円 管理費等 42,000円
    敷金 / 保証金 3ヶ月 / なし 礼金 なし
    敷引 坪単価 0.8767万円
    保証金償却 権利金
    造作譲渡 造作譲渡無償 その他一時金
    維持費等 ゴミ処理代:4,950円/月 保険等
    使用部分面積 158.38m² 坪数 47.90坪
    築年月 1962年12月(築63年5ヶ月) 階建 / 階 地上4階地下1階建 / 2階
    駐車場 バイク置き場
    駐輪場 土地面積
    接道状況 用途地域 商業地域
    間取り 建物構造 RC
    建物名・部屋番号  
    リフォーム履歴
    リノベーション履歴
    特記事項 居抜き、24時間利用可、土曜日利用可、土日・祝日利用可、飲食店可
    備考
    管理形態/管理員の勤務形態:-/-
    居酒屋居抜き 内装リフォーム要相談
    エネルギー消費性能
    断熱性能
    目安光熱費
    バス・トイレ 男女別トイレ、トイレ2ヶ所、トイレ
    キッチン
    設備・サービス 看板取付スペースあり
    給湯、都市ガス
    その他 エレベーター
    契約期間 3年 条件等
    引渡可能時期 即時 現況
    更新料 物件番号 6986870229
    情報公開日 2026年4月3日 次回更新予定日 2026年4月17日
    ケータイ用バーコード

    QRコード

    スマートフォンでこの物件を見る
    スマートフォンからもこの物件をご覧になれます。
    ※「-」と表示されている項目については、情報提供会社にご確認ください。

    クイックお問い合わせ

    ここから簡単にお問い合わせをすることができます。
    (SSLでの暗号化での送信を希望されるお客さまは こちら よりお問い合わせください)

    お問い合わせ内容(必須)
    物件のお問い合わせ理由(必須)
    お名前・ご担当者様名(必須) 姓  名 
    メールアドレス(必須)
    ※携帯電話のメールアドレスをご入力される方はこちらをご確認ください
    電話番号(必須)
    - -
    備考欄 希望条件、物件案内希望日、質問などがございましたらご記入ください。
    お問い合わせを行う前に「個人情報の取り扱いについて」を必ずお読みください。
    「個人情報の取り扱いについて」に同意いただいた場合は「上記にご同意の上 確認画面へ進む」のボタンをクリックしてください。

    個人情報の取り扱いについて

    皆さまが送付された個人情報はアットホーム(株)のサーバを経由し、お問い合わせ先の不動産会社にメールまたはFAXにて転送されるためアットホーム(株)にも保管されます。アットホーム(株)で保管された個人情報の取り扱いについては、【こちら】をご覧ください。
    また、本画面でご記入いただいた個人情報は、お問い合わせ先の不動産会社でも保管します。 お問い合わせ先の不動産会社が保管する個人情報の取り扱いについては、不動産会社に直接お問い合わせください。

    情報提供会社

    情報提供会社

    不動産ショップ ダイナリアルティ(株)

    岩手県知事免許(2)第2645号

    交通:
    JR東北本線/盛岡駅 徒歩36分 【バス】10分 イオンモール盛岡南 停歩15分
    岩手県盛岡市本宮6丁目30-21-1F 
    TEL:
    019-613-3661
    FAX:
    019-613-3662
    所属団体:
    (公社)全日本不動産協会会員
    全国賃貸管理ビジネス協会会員
    東北地区不動産公正取引協議会加盟

    取引態様:仲介

    • 会社情報
    • 20005897
    スマートフォンで
    この不動産会社を見る
    QRコード
    • お問い合わせ
    • 提携サイト等より掲載されている物件情報につきましては、不動産会社詳細情報にリンクされていないものがあります。
    • 物件に関するお問合せは、物件詳細ページの「情報提供会社」に表示されている不動産会社へ直接お願いいたします。
    • 間取図は、現況を優先させていただきます。
    • 映像は物件の一部を撮影したものです。物件の契約にあたっての最終判断はご自身の判断に基づいて行ってください。
    • 仲介手数料について仲介手数料

    アットホームは物件情報の適正化に努めております。 内容に誤りがある場合にはこちらへご連絡ください。


    物件画像: