賃貸や不動産はアットホーム-賃貸マンション・賃貸物件・不動産なら アットホーム

岡山県岡山市北区上中野2丁目(備前西市駅)の貸店舗:物件詳細

  • 物件詳細
  • 情報の見方
  • 印刷用画面
交通
所在地
駅徒歩 賃料
管理費等
敷金/保証金
礼金
使用部分面積
坪数/坪単価
物件種目
築年月

宇野線/備前西市

岡山県岡山市北区上中野2丁目

18分

72.1072万円

288.4288万円 / なし

72.1072万円

409.65m²

123.91坪/0.5819万円

貸店舗・事務所(一括)

1983年1月(築43年)

おすすめコメント  スタッフ: 営業Y

ロードサイドのオフィス街♪店舗にもオススメです!

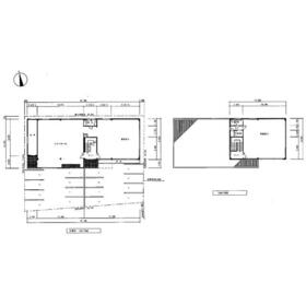
間取図

間取図

外観

外観

<
その他の画像
  • 室内
  • 室内
  • 室内
  • トイレ
  • トイレ
  • トイレ
  • トイレ
  • トイレ
  • 洗面
  • その他
  • 室内
  • 室内
  • 室内
  • 室内
  • 室内
  • 室内
  • 室内
  • 室内
  • 室内
  • 室内
  • 室内
  • トイレ
  • トイレ
  • キッチン
  • 収納
  • 外観
  • 収納
  • 収納
  • その他
  • ショッピング施設
  • ショッピング施設
  • ショッピング施設
  • コンビニ
  • 飲食店
  • 病院
  • 郵便局
  • 銀行
>
    • お問い合わせ
    交通

    宇野線 備前西市駅 徒歩18分

    その他の交通

    宇野線 大元駅 徒歩20分

    所在地 岡山県岡山市北区上中野2丁目
    物件種目 貸店舗・事務所(一括)
    賃料 72.1072万円 管理費等
    敷金 / 保証金 288.4288万円 / なし 礼金 72.1072万円
    敷引 坪単価 0.5819万円
    保証金償却 権利金
    造作譲渡 その他一時金
    維持費等 保険等 要 家財
    使用部分面積 409.65m² 坪数 123.91坪
    築年月 1983年1月(築43年) 階建 / 階 2階建
    駐車場 有 88,000円/月(空き16台)
    敷地内すべての駐車場になります。
    バイク置き場
    駐輪場 土地面積
    接道状況 用途地域
    間取り 建物構造 鉄骨造
    アピールポイント ロードサイドのオフィス街♪店舗にもオススメです!
    建物名・部屋番号  
    リフォーム履歴
    リノベーション履歴
    特記事項 土日・祝日利用可、飲食店不可、駐車場3台分以上、IT重説対応物件
    備考
    賃貸保証等:加入要(初回保証料賃料総額100%)
    管理形態/管理員の勤務形態:-/-
    主要採光面:南向き
    IT重説対応物件
    ・現況渡し(図面と異なる場合は現況を優先いたします)
    ・冷暖房設備費用:129,283円/月
    ・警備保障費別途
    エネルギー消費性能
    断熱性能
    目安光熱費
    バス・トイレ トイレ2ヶ所、専有部分に男女別トイレあり
    キッチン
    設備・サービス 収納スペース、室内洗濯機置場、給湯
    その他
    契約期間 2年 条件等
    引渡可能時期 相談 現況
    仲介手数料 72.1072万円    
    更新料 物件番号 6986851021
    情報公開日 2025年11月5日 次回更新予定日 2026年1月2日
    ケータイ用バーコード

    QRコード

    スマートフォンでこの物件を見る
    スマートフォンからもこの物件をご覧になれます。
    ※「-」と表示されている項目については、情報提供会社にご確認ください。

    この物件の周辺情報

    周辺施設 ファッションセンターしまむら下中野店
    距離 375m
    周辺施設 業務スーパー下中野店
    距離 359m
    周辺施設 天満屋ハピーズ下中野店
    距離 384m
    周辺施設 ファミリーマート岡山下中野西店
    距離 195m
    周辺施設 ほっともっと下中野店
    距離 190m
    周辺施設 おおもと病院
    距離 1100m
    周辺施設 岡山大元郵便局
    距離 826m
    周辺施設 中国銀行大元支店
    距離 866m

    クイックお問い合わせ

    ここから簡単にお問い合わせをすることができます。
    (SSLでの暗号化での送信を希望されるお客さまは こちら よりお問い合わせください)

    お問い合わせ内容(必須)
    物件のお問い合わせ理由(必須)
    お名前・ご担当者様名(必須) 姓  名 
    メールアドレス(必須)
    ※携帯電話のメールアドレスをご入力される方はこちらをご確認ください
    電話番号(必須)
    - -
    備考欄 希望条件、物件案内希望日、質問などがございましたらご記入ください。
    お問い合わせを行う前に「個人情報の取り扱いについて」を必ずお読みください。
    「個人情報の取り扱いについて」に同意いただいた場合は「上記にご同意の上 確認画面へ進む」のボタンをクリックしてください。

    個人情報の取り扱いについて

    皆さまが送付された個人情報はアットホーム(株)のサーバを経由し、お問い合わせ先の不動産会社にメールまたはFAXにて転送されるためアットホーム(株)にも保管されます。アットホーム(株)で保管された個人情報の取り扱いについては、【こちら】をご覧ください。
    また、本画面でご記入いただいた個人情報は、お問い合わせ先の不動産会社でも保管します。 お問い合わせ先の不動産会社が保管する個人情報の取り扱いについては、不動産会社に直接お問い合わせください。

    情報提供会社

    情報提供会社

    富士ホームサービス(株) 岡山支店

    国土交通大臣免許(8)第4288号

    交通:
    JR山陽本線/岡山駅 徒歩10分 【バス】3分 イオンモール岡山前 停歩2分
    岡山県岡山市北区幸町8-25 
    TEL:
    086-223-3860
    FAX:
    086-231-4565
    所属団体:
    (公社)岡山県宅地建物取引業協会会員
    不動産公正取引協議会加盟

    取引態様:仲介

    • 会社情報
    • 50023685
    スマートフォンで
    この不動産会社を見る
    QRコード
    • お問い合わせ
    • 提携サイト等より掲載されている物件情報につきましては、不動産会社詳細情報にリンクされていないものがあります。
    • 物件に関するお問合せは、物件詳細ページの「情報提供会社」に表示されている不動産会社へ直接お願いいたします。
    • 間取図は、現況を優先させていただきます。
    • 映像は物件の一部を撮影したものです。物件の契約にあたっての最終判断はご自身の判断に基づいて行ってください。
    • 仲介手数料について仲介手数料

    アットホームは物件情報の適正化に努めております。 内容に誤りがある場合にはこちらへご連絡ください。


    物件画像: