賃貸や不動産はアットホーム-賃貸マンション・賃貸物件・不動産なら アットホーム

熊本県熊本市北区武蔵ケ丘1丁目(武蔵塚駅)の貸店舗:物件詳細

  • 物件詳細
  • 情報の見方
  • 印刷用画面
交通
所在地
駅徒歩 賃料
管理費等
敷金/保証金
礼金
使用部分面積
坪数/坪単価
物件種目
築年月

JR豊肥本線/武蔵塚

熊本県熊本市北区武蔵ケ丘1丁目

1分

24.2万円

3ヶ月 / なし

なし

68.00m²

20.56坪/1.1765万円

貸店舗・事務所

2025年12月(新築)

おすすめコメント

武蔵塚駅目の前!角地!視認性と集客率は良好です。

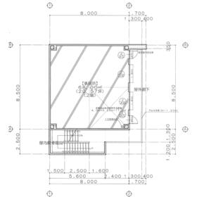
間取図

間取図

外観

外観

その他の画像
    • お問い合わせ
    交通

    JR豊肥本線 武蔵塚駅 徒歩1分

    その他の交通

    JR豊肥本線 光の森駅 徒歩23分

    所在地 熊本県熊本市北区武蔵ケ丘1丁目
    物件種目 貸店舗・事務所
    賃料 24.2万円 管理費等
    敷金 / 保証金 3ヶ月 / なし 礼金 なし
    敷引 坪単価 1.1765万円
    保証金償却 権利金
    造作譲渡 その他一時金
    維持費等 保険等
    クレジットカード決済 賃料可
    使用部分面積 68.00m² 坪数 20.56坪
    築年月 2025年12月(新築) 階建 / 階 3階建 / 2階
    駐車場 有 無料(空き2台) バイク置き場
    駐輪場 土地面積
    接道状況 用途地域
    間取り 建物構造 鉄骨造
    アピールポイント 2025年10月竣工予定の新築物件。駐車場2台分無料。
    建物名・部屋番号  
    リフォーム履歴
    リノベーション履歴
    特記事項 駐車場2台分
    備考
    管理形態/管理員の勤務形態:-/-
    主要採光面:北東向き
    エネルギー消費性能
    断熱性能
    目安光熱費
    バス・トイレ
    キッチン
    設備・サービス
    その他
    契約期間 2年 条件等
    引渡可能時期 相談 現況 完成済
    仲介手数料 1ヶ月    
    更新料 なし 物件番号 6986794271
    情報公開日 2025年11月12日 次回更新予定日 2025年12月24日
    ケータイ用バーコード

    QRコード

    スマートフォンでこの物件を見る
    スマートフォンからもこの物件をご覧になれます。
    ※「-」と表示されている項目については、情報提供会社にご確認ください。

    この物件の周辺情報

    周辺施設 ゆめマート武蔵ヶ丘
    距離 433m
    周辺施設 ファミリーマートJR武蔵塚駅前店
    距離 91m
    周辺施設 熊本市立武蔵中学校
    距離 877m
    周辺施設 あゆみ保育園
    距離 387m

    クイックお問い合わせ

    ここから簡単にお問い合わせをすることができます。
    (SSLでの暗号化での送信を希望されるお客さまは こちら よりお問い合わせください)

    お問い合わせ内容(必須)
    物件のお問い合わせ理由(必須)
    お名前・ご担当者様名(必須) 姓  名 
    メールアドレス(必須)
    ※携帯電話のメールアドレスをご入力される方はこちらをご確認ください
    電話番号(必須)
    - -
    備考欄 希望条件、物件案内希望日、質問などがございましたらご記入ください。
    お問い合わせを行う前に「個人情報の取り扱いについて」を必ずお読みください。
    「個人情報の取り扱いについて」に同意いただいた場合は「上記にご同意の上 確認画面へ進む」のボタンをクリックしてください。

    個人情報の取り扱いについて

    皆さまが送付された個人情報はアットホーム(株)のサーバを経由し、お問い合わせ先の不動産会社にメールまたはFAXにて転送されるためアットホーム(株)にも保管されます。アットホーム(株)で保管された個人情報の取り扱いについては、【こちら】をご覧ください。
    また、本画面でご記入いただいた個人情報は、お問い合わせ先の不動産会社でも保管します。 お問い合わせ先の不動産会社が保管する個人情報の取り扱いについては、不動産会社に直接お問い合わせください。

    情報提供会社

    情報提供会社

    エイブルネットワーク 熊本健軍店 熊本地所(株)

    熊本県知事免許(8)第3227号

    交通:
    熊本市電健軍線/健軍校前駅 徒歩2分 【バス】2分 熊本都市バス
    熊本県熊本市東区健軍2丁目11-56 ラ・カーサ神水1階
    TEL:
    096-368-2121
    FAX:
    096-368-1611
    所属団体:
    (公社)熊本県宅地建物取引業協会会員
    (一社)九州不動産公正取引協議会加盟

    取引態様:代理

    • 会社情報
    • 80504658
    スマートフォンで
    この不動産会社を見る
    QRコード
    • お問い合わせ
    • 提携サイト等より掲載されている物件情報につきましては、不動産会社詳細情報にリンクされていないものがあります。
    • 物件に関するお問合せは、物件詳細ページの「情報提供会社」に表示されている不動産会社へ直接お願いいたします。
    • 間取図は、現況を優先させていただきます。
    • 映像は物件の一部を撮影したものです。物件の契約にあたっての最終判断はご自身の判断に基づいて行ってください。
    • 仲介手数料について仲介手数料

    アットホームは物件情報の適正化に努めております。 内容に誤りがある場合にはこちらへご連絡ください。


    物件画像: