賃貸や不動産はアットホーム-賃貸マンション・賃貸物件・不動産なら アットホーム

愛媛県松山市味酒町3丁目(古町駅)の貸店舗:物件詳細

  • 物件詳細
  • 情報の見方
  • 印刷用画面
交通
所在地
駅徒歩 賃料
管理費等
敷金/保証金
礼金
使用部分面積
坪数/坪単価
物件種目
築年月

伊予鉄道環状線/古町

愛媛県松山市味酒町3丁目

3分

18万円

3ヶ月 / なし

なし

62.13m²

18.79坪/0.9578万円

貸店舗・事務所

1988年9月(築37年3ヶ月)

おすすめコメント  スタッフ: 渡部 潤

フジグラン松山近くの1階テナントです!古町駅にも近い物件です。店舗等での利用はいかがでしょうか。出店可能業種はお問い合わせ下さい。

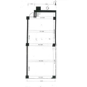
間取図

間取図

その他の画像
    • お問い合わせ
    交通

    伊予鉄道環状線 古町駅 徒歩3分

    その他の交通

    伊予鉄道環状線 宮田町駅 徒歩6分

    伊予鉄道本町線 本町三丁目駅 徒歩6分

    所在地 愛媛県松山市味酒町3丁目
    物件種目 貸店舗・事務所
    賃料 18万円 管理費等
    敷金 / 保証金 3ヶ月 / なし 礼金 なし
    敷引 坪単価 0.9578万円
    保証金償却 権利金
    造作譲渡 その他一時金
    維持費等 保険等
    使用部分面積 62.13m² 坪数 18.79坪
    築年月 1988年9月(築37年3ヶ月) 階建 / 階 11階建 / 1階
    駐車場 有 無料(空き2台)
    7番、8番
    バイク置き場
    駐輪場 土地面積
    接道状況 用途地域 近隣商業
    間取り 建物構造 SRC
    建物名・部屋番号 ライオンズマンション味酒町 103号(東端)
    リフォーム履歴
    リノベーション履歴
    特記事項
    備考
    賃貸保証等:加入要(家賃保証会社加入要)
    管理形態/管理員の勤務形態:-/-
    駐車場:前面2台駐車可能 
    家賃保証会社加入要
    塾・飲食店不可
    エネルギー消費性能
    断熱性能
    目安光熱費
    バス・トイレ
    キッチン
    設備・サービス
    その他
    契約期間 2年 条件等
    引渡可能時期 2025年10月上旬予定 現況 完成済
    更新料 物件番号 6986769621
    情報公開日 2025年6月23日 次回更新予定日 2025年11月11日
    ケータイ用バーコード

    QRコード

    スマートフォンでこの物件を見る
    スマートフォンからもこの物件をご覧になれます。
    ※「-」と表示されている項目については、情報提供会社にご確認ください。

    この物件の周辺情報

    周辺施設 カルディコーヒーファームフジグラン松山店
    距離 244m
    周辺施設 セブンイレブンいよてつ古町駅店
    距離 163m
    周辺施設 タリーズコーヒーフジグラン松山店
    距離 321m
    周辺施設 くすりのレデイ宮西店
    距離 52m
    周辺施設 松山市立味酒小学校
    距離 420m
    周辺施設 認定こども園松山隣保館保育園
    距離 284m
    周辺施設 一般財団法人創精会松山記念病院
    距離 834m
    周辺施設 松山本町郵便局
    距離 610m

    クイックお問い合わせ

    ここから簡単にお問い合わせをすることができます。
    (SSLでの暗号化での送信を希望されるお客さまは こちら よりお問い合わせください)

    お問い合わせ内容(必須)
    物件のお問い合わせ理由(必須)
    お名前・ご担当者様名(必須) 姓  名 
    メールアドレス(必須)
    ※携帯電話のメールアドレスをご入力される方はこちらをご確認ください
    電話番号(必須)
    - -
    備考欄 希望条件、物件案内希望日、質問などがございましたらご記入ください。
    お問い合わせを行う前に「個人情報の取り扱いについて」を必ずお読みください。
    「個人情報の取り扱いについて」に同意いただいた場合は「上記にご同意の上 確認画面へ進む」のボタンをクリックしてください。

    個人情報の取り扱いについて

    皆さまが送付された個人情報はアットホーム(株)のサーバを経由し、お問い合わせ先の不動産会社にメールまたはFAXにて転送されるためアットホーム(株)にも保管されます。アットホーム(株)で保管された個人情報の取り扱いについては、【こちら】をご覧ください。
    また、本画面でご記入いただいた個人情報は、お問い合わせ先の不動産会社でも保管します。 お問い合わせ先の不動産会社が保管する個人情報の取り扱いについては、不動産会社に直接お問い合わせください。

    情報提供会社

    情報提供会社

    (株)SANPUKUフューチャー

    愛媛県知事免許(1)第5644号

    交通:
    伊予鉄道横河原線/いよ立花駅 徒歩13分
    愛媛県松山市中村2丁目1-3 三福本社ビル1F
    TEL:
    0120-964-362
    FAX:
    089-913-2332
    所属団体:
    (公社)全日本不動産協会会員
    四国地区不動産公正取引協議会加盟

    取引態様:仲介

    • 会社情報
    • 50105998
    スマートフォンで
    この不動産会社を見る
    QRコード
    • お問い合わせ
    • 提携サイト等より掲載されている物件情報につきましては、不動産会社詳細情報にリンクされていないものがあります。
    • 物件に関するお問合せは、物件詳細ページの「情報提供会社」に表示されている不動産会社へ直接お願いいたします。
    • 間取図は、現況を優先させていただきます。
    • 映像は物件の一部を撮影したものです。物件の契約にあたっての最終判断はご自身の判断に基づいて行ってください。
    • 仲介手数料について仲介手数料

    アットホームは物件情報の適正化に努めております。 内容に誤りがある場合にはこちらへご連絡ください。


    物件画像: