賃貸や不動産はアットホーム-賃貸マンション・賃貸物件・不動産なら アットホーム

兵庫県姫路市増位新町1丁目(野里駅)の貸店舗:物件詳細

  • 物件詳細
  • 情報の見方
  • 印刷用画面
交通
所在地
駅徒歩 賃料
管理費等
敷金/保証金
礼金
使用部分面積
坪数/坪単価
物件種目
築年月

JR播但線/野里

兵庫県姫路市増位新町1丁目

4分

32.23万円

42,870円

3ヶ月 / なし

3ヶ月

121.08m²

36.62坪/0.88万円

貸店舗

2019年1月(築7年)

おすすめコメント

美容室居抜き店舗。内装、什器備品の譲渡については応相談

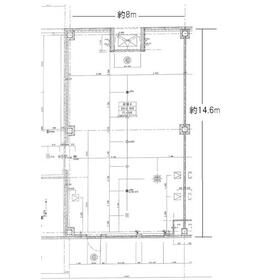
間取図

間取図

その他の画像
    • お問い合わせ
    交通

    JR播但線 野里駅 徒歩4分

    所在地 兵庫県姫路市増位新町1丁目
    物件種目 貸店舗
    賃料 32.23万円 管理費等 42,870円
    敷金 / 保証金 3ヶ月 / なし 礼金 3ヶ月
    敷引 坪単価 0.88万円
    保証金償却 権利金
    造作譲渡 その他一時金
    維持費等 保険等
    使用部分面積 121.08m² 坪数 36.62坪
    築年月 2019年1月(築7年) 階建 / 階 2階建 / 1階
    駐車場 バイク置き場
    駐輪場 土地面積
    接道状況 用途地域 商業地域
    間取り 建物構造 鉄骨造
    アピールポイント JR播但線 野里駅より徒歩すぐ!
    イオン姫路店に隣接の1F!!
    建物名・部屋番号 ミラキタシティ
    リフォーム履歴
    リノベーション履歴
    特記事項
    備考
    管理形態/管理員の勤務形態:-/-
    美容室居抜き!内装譲渡金は応相談!
    エネルギー消費性能
    断熱性能
    目安光熱費
    バス・トイレ
    キッチン
    設備・サービス
    その他
    契約期間 2年 条件等
    引渡可能時期 相談 現況 使用中
    仲介手数料 不要 適格請求書発行
    更新料 物件番号 6986749626
    情報公開日 2025年11月22日 次回更新予定日 2025年12月30日
    ケータイ用バーコード

    QRコード

    スマートフォンでこの物件を見る
    スマートフォンからもこの物件をご覧になれます。
    ※「-」と表示されている項目については、情報提供会社にご確認ください。

    クイックお問い合わせ

    ここから簡単にお問い合わせをすることができます。
    (SSLでの暗号化での送信を希望されるお客さまは こちら よりお問い合わせください)

    お問い合わせ内容(必須)
    物件のお問い合わせ理由(必須)
    お名前・ご担当者様名(必須) 姓  名 
    メールアドレス(必須)
    ※携帯電話のメールアドレスをご入力される方はこちらをご確認ください
    電話番号(必須)
    - -
    備考欄 希望条件、物件案内希望日、質問などがございましたらご記入ください。
    お問い合わせを行う前に「個人情報の取り扱いについて」を必ずお読みください。
    「個人情報の取り扱いについて」に同意いただいた場合は「上記にご同意の上 確認画面へ進む」のボタンをクリックしてください。

    個人情報の取り扱いについて

    皆さまが送付された個人情報はアットホーム(株)のサーバを経由し、お問い合わせ先の不動産会社にメールまたはFAXにて転送されるためアットホーム(株)にも保管されます。アットホーム(株)で保管された個人情報の取り扱いについては、【こちら】をご覧ください。
    また、本画面でご記入いただいた個人情報は、お問い合わせ先の不動産会社でも保管します。 お問い合わせ先の不動産会社が保管する個人情報の取り扱いについては、不動産会社に直接お問い合わせください。

    情報提供会社

    情報提供会社

    (株)T・S・K 不動産事業部

    兵庫県知事免許(3)第451316号

    交通:
    JR山陽本線/姫路駅 【バス】20分 辻井 停歩2分
    兵庫県姫路市辻井6丁目17-28 ソフィア辻井
    TEL:
    079-260-8899
    FAX:
    079-260-8006
    所属団体:
    (一社)兵庫県宅地建物取引業協会会員
    (公社)近畿地区不動産公正取引協議会加盟

    取引態様:貸主

    • 会社情報
    • 50023008
    スマートフォンで
    この不動産会社を見る
    QRコード
    • お問い合わせ
    • 提携サイト等より掲載されている物件情報につきましては、不動産会社詳細情報にリンクされていないものがあります。
    • 物件に関するお問合せは、物件詳細ページの「情報提供会社」に表示されている不動産会社へ直接お願いいたします。
    • 間取図は、現況を優先させていただきます。
    • 映像は物件の一部を撮影したものです。物件の契約にあたっての最終判断はご自身の判断に基づいて行ってください。
    • 仲介手数料について仲介手数料

    アットホームは物件情報の適正化に努めております。 内容に誤りがある場合にはこちらへご連絡ください。


    物件画像: