賃貸や不動産はアットホーム-賃貸マンション・賃貸物件・不動産なら アットホーム

三重県桑名郡木曽岬町大字西対海地の貸店舗:物件詳細

  • 物件詳細
  • 情報の見方
  • 印刷用画面
交通
所在地
駅徒歩 賃料
管理費等
敷金/保証金
礼金
使用部分面積
坪数/坪単価
物件種目
築年月

【バス】木曽岬町体育館 停歩1分

三重県桑名郡木曽岬町大字西対海地


26.5万円

なし / 6ヶ月

なし

218.94m²

66.22坪/0.4002万円

貸店舗・事務所

1983年9月(築42年8ヶ月)

おすすめコメント

◇◇飲食店の出店を募集しています◇◇木曽岬町役場徒歩1分。周辺は企業が多い立地です。ワーカー層の集客が見込めます。

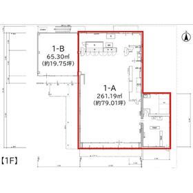
間取図

間取図

<
その他の画像
  • コンビニ
  • 販売店
  • 役所
  • 郵便局
  • 銀行
  • 小学校
  • 中学校
>
    • お問い合わせ
    交通

    【バス】 木曽岬町体育館 停歩1分

    所在地 三重県桑名郡木曽岬町大字西対海地
    物件種目 貸店舗・事務所
    賃料 26.5万円 管理費等
    敷金 / 保証金 なし / 6ヶ月 礼金 なし
    敷引 坪単価 0.4002万円
    保証金償却 解約時50% 権利金
    造作譲渡 その他一時金
    維持費等 保険等
    使用部分面積 218.94m² 坪数 66.22坪
    築年月 1983年9月(築42年8ヶ月) 階建 / 階 2階建 / 1階
    駐車場 有 無料 バイク置き場
    駐輪場 土地面積 1,930.19m²(公簿)
    接道状況 南 8.0m 公道 接面35.6m ・ 西 6.5m 公道 接面53.3m ・ 北 5.6m 公道 接面35.6m ・ 三方道路 用途地域 2種住居
    間取り 建物構造 鉄骨造
    アピールポイント ◇◇飲食店の出店を募集しています◇◇
    木曽岬町役場徒歩1分。周辺は企業が多い立地です。ワーカー層の集客が見込めます。

    ■敷地内駐車場あり(共有約30台)
    ■大型冷蔵庫、大型冷凍庫、冷蔵ドリンクショーケースあり

    お気軽にお問合せください。
    建物名・部屋番号 木曽岬町貸店舗・貸事務所 1-A
    リフォーム履歴
    リノベーション履歴
    特記事項 スケルトン、飲食店可、大型トラック搬入可、駐車場3台分以上
    備考
    管理形態/管理員の勤務形態:-/-
    主要採光面:南向き
    ・22条区域
    ・景観条例
    ・屋外広告物条例
    ・現況渡し
    ・要防火設備設置
    ・要家財保険、保証会社加入
    ・要下水道加入金

    エネルギー消費性能
    断熱性能
    目安光熱費
    バス・トイレ トイレ
    キッチン
    設備・サービス 看板取付スペースあり、シャッター付き、排水設備あり 、水道メーター口径13mm
    シャッター雨戸、冷蔵庫、プロパンガス
    その他
    契約期間 2年 条件等
    引渡可能時期 相談 現況
    更新料 なし 物件番号 6986408995
    情報公開日 2025年5月23日 次回更新予定日 2026年4月21日
    ケータイ用バーコード

    QRコード

    スマートフォンでこの物件を見る
    スマートフォンからもこの物件をご覧になれます。
    ※「-」と表示されている項目については、情報提供会社にご確認ください。

    この物件の周辺情報

    周辺施設 ファミリーマート木曽岬町店
    距離 1800m
    周辺施設 タチヤ木曽岬店
    距離 2100m
    周辺施設 木曽岬町役場
    距離 170m
    周辺施設 木曽岬郵便局
    距離 270m
    周辺施設 桑名三重信用金庫弥富南支店
    距離 2500m
    周辺施設 木曽岬町立木曽岬小学校
    距離 2m
    周辺施設 木曽岬町立木曽岬中学校
    距離 1400m

    クイックお問い合わせ

    ここから簡単にお問い合わせをすることができます。
    (SSLでの暗号化での送信を希望されるお客さまは こちら よりお問い合わせください)

    お問い合わせ内容(必須)
    物件のお問い合わせ理由(必須)
    お名前・ご担当者様名(必須) 姓  名 
    メールアドレス(必須)
    ※携帯電話のメールアドレスをご入力される方はこちらをご確認ください
    電話番号(必須)
    - -
    備考欄 希望条件、物件案内希望日、質問などがございましたらご記入ください。
    お問い合わせを行う前に「個人情報の取り扱いについて」を必ずお読みください。
    「個人情報の取り扱いについて」に同意いただいた場合は「上記にご同意の上 確認画面へ進む」のボタンをクリックしてください。

    個人情報の取り扱いについて

    皆さまが送付された個人情報はアットホーム(株)のサーバを経由し、お問い合わせ先の不動産会社にメールまたはFAXにて転送されるためアットホーム(株)にも保管されます。アットホーム(株)で保管された個人情報の取り扱いについては、【こちら】をご覧ください。
    また、本画面でご記入いただいた個人情報は、お問い合わせ先の不動産会社でも保管します。 お問い合わせ先の不動産会社が保管する個人情報の取り扱いについては、不動産会社に直接お問い合わせください。

    情報提供会社

    情報提供会社

    (有)ソーシンサービス

    愛知県知事免許(2)第24429号

    交通:
    近鉄名古屋線/近鉄蟹江駅 徒歩15分
    愛知県海部郡蟹江町源氏1丁目161 
    TEL:
    0567-69-5235
    FAX:
    0567-69-5230
    所属団体:
    (公社)全日本不動産協会会員
    東海不動産公正取引協議会加盟

    取引態様:仲介

    • 会社情報
    • 40409541
    スマートフォンで
    この不動産会社を見る
    QRコード
    • お問い合わせ
    • 提携サイト等より掲載されている物件情報につきましては、不動産会社詳細情報にリンクされていないものがあります。
    • 物件に関するお問合せは、物件詳細ページの「情報提供会社」に表示されている不動産会社へ直接お願いいたします。
    • 間取図は、現況を優先させていただきます。
    • 映像は物件の一部を撮影したものです。物件の契約にあたっての最終判断はご自身の判断に基づいて行ってください。
    • 仲介手数料について仲介手数料

    アットホームは物件情報の適正化に努めております。 内容に誤りがある場合にはこちらへご連絡ください。


    物件画像: